Где лучше всего устанавливать арки?
Арка делает помещение светлее. Это происходит из-за отсутствия дверей, которые даже в открытом положении занимают место. Если комнаты, между которыми есть проход, темные, арку делают с подсветкой из точечных светильников или светодиодной ленты.
Проход в дизайнерском стиле оформляют:
- Между коридором и гостиной. Арка имеет стандартные размеры дверного проема или широкая — оформлена в стиле, подчеркивающем интерьер помещения.
- Между коридором или гостиной и кухней. Конструкцию монтируют с подсветкой, которая играет роль дополнительного освещения в вечернее время.
- Арка в квартире-студии. Комната, где размещены все функциональные места, отсоединяется от кухни барной стойкой и арочным проходом.
- Частный загородный дом. Здесь арочные проходы ставят не только из гостиной в кухню, но и между комнатами.
- Декоративная арка. Устанавливают для подчеркивания дизайна. Это ниша, оформленная арочной формой, небольшое разграничение пространства на зоны в одной комнате. А также монтируют полуарки, которые, с одной стороны имеют вертикальную колонну, а вверху соединяются с потолком в единое полотно.
Разновидности арок

Межкомнатная арка в стиле модерн
Прежде чем приступить к установке арки, нужно выбрать подходящий вариант конструкции. Они различаются между собой исполнением верхней части.
Модерн
Такая арка имеет вид фрагмента круга с небольшим значением радиуса выгиба. Благодаря своей форме конструкция пригодна для реализации не только в частных домах с высоким потолком, но и в квартирах городского стандарта. Но есть ограничение: комната должна быть не ниже 2,5 м.
Классическая

Классическая арка из дерева
Существуют два варианта определения этого архитектурного элемента. Первый базируется только на типе верхней части. Свод классической арки должен иметь вид полукруга, радиус которого вдвое меньше ширины проема, где располагается конструкция. Если отталкиваться от этого определения, классической может называться любая арка такой формы, даже та, материал или дизайн поверхности которой совсем не вяжутся с классическим стилем. Второй вариант опирается на особенности интерьера. Конструкция должна быть исполнена в стиле классицизма, с лепными узорами на наличниках и колоннами в ионическом, коринфском или дорическом стиле. Форма и габариты верхней части при этом могут и отличаться от приведенных строгих канонов. Перед тем как установить арку, нужно проверить, чтобы высота потолка в доме составляла минимум 3 метра.
Романтическая
Проем с такой конструкцией имеет симметрично закругленные уголки. Вершина арки при этом находится в позиции, параллельной плоскости пола. Радиус закругления углов может быть различным. Поскольку свод имеет небольшую высоту, установка межкомнатной арки такого вида возможна в любых комнатах, даже с низким потолком.
Эллипсоидная

Арки произвольной формы из дерева и пластика
Во многом эта форма сходна с предыдущей, но кривизна в данном случае выражена сильнее, за счет чего сводчатая часть получается несколько выше. Для ее использования проем должен иметь достаточную ширину (при этом высота может быть и небольшой).
Произвольная
Домовладелец может реализовать и более изощренную арочную конструкцию по своему вкусу. Потребуется продумать форму, произвести замеры и подготовить чертеж конфигурации с указанием габаритов ее составляющих.
Стандартная инструкция по установке
Несмотря на большой выбор материала, самостоятельное изготовление состоит из общих правил и поэтапного оформления. Соблюдая этапы работы, можно избежать ошибок, которые приведут к короткому сроку службы конструкции.
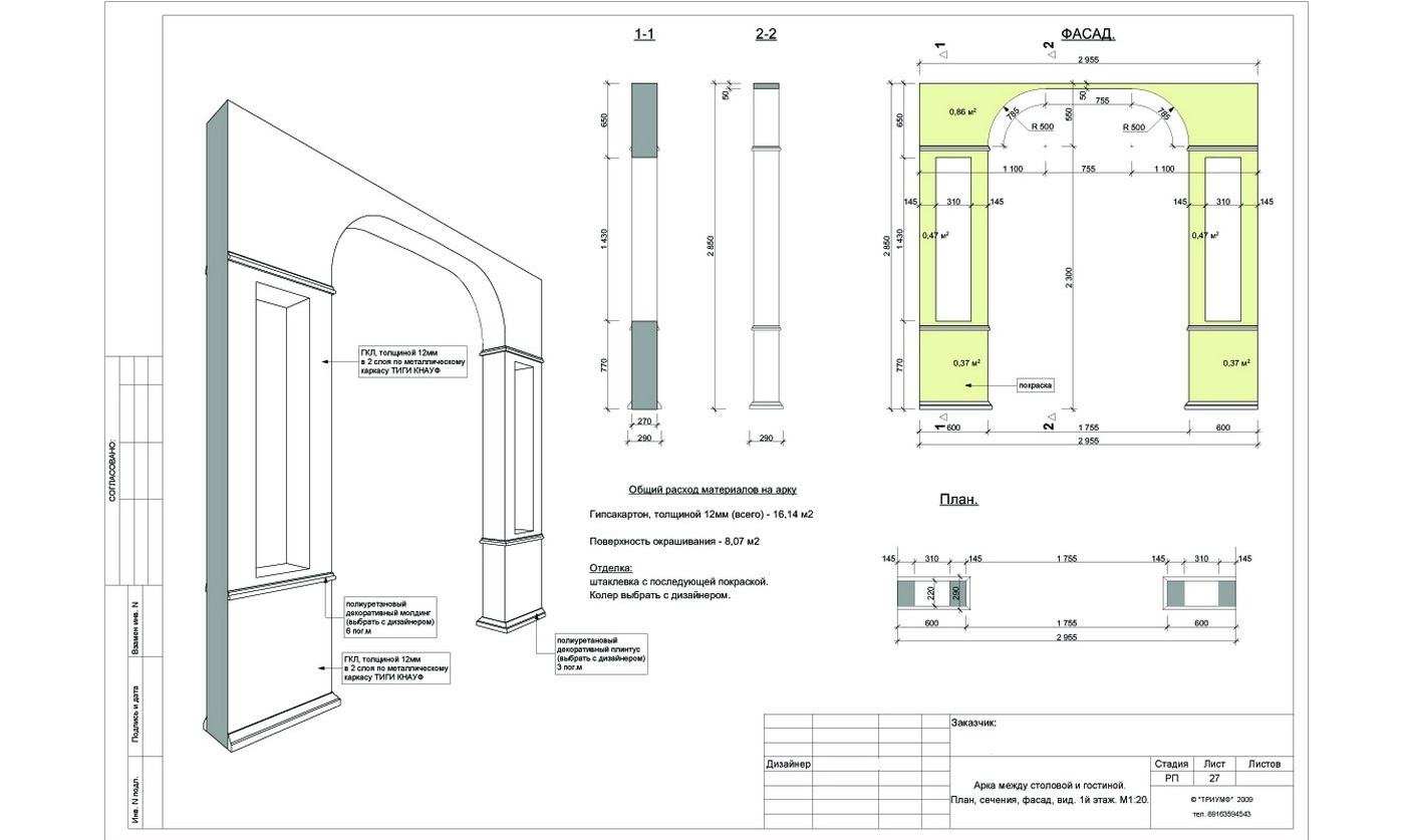
Готовим свод
Для подготовки нужны профили и уровень. Профили фиксируют к основанию дюбелями. Сначала, по обеим сторонам проема монтируют раму, описывающую верх будущей конструкции.
После этого этапа на нужном расстоянии крепят изогнутый в правильную дугу металлический профиль — его боковины надрезают. Между согнутыми профилями на расстоянии 20-25 см фиксируют ребра жесткости.
Установка дуги арки
Дуги арки изготавливают по заранее подготовленному шаблону. Он может быть сделан на фанере или бумаге. Вырезанную из материала дугу с обеих сторон крепят на каркасную основу саморезами.
Мастера для ровности, кроме шаблона, используют другой метод. К подготовленному вырезанному материалу с тыльной стороны крепят изогнутый профиль.
Готовим боковые части
Боковая часть равна расстоянию между дугами. В зависимости от применяемого материала, его изгибают. Для ГКЛ есть 2 метода выгибания листа — сухой и мокрый. Готовую изогнутую панель ставят между дугами в проеме. Деталь имеет размеры, равные своду конструкции.
Монтируем стойку межкомнатной арки
Для гипсокартонной конструкции нужен металлический каркас, на который крепят элементы стойки. Другие материалы крепят на каркасную основу или на клей.
Для изготовления элемента нужное расстояние — от края дуги до низа. Полученную длину отмеряют на материале и отрезают. Потребуется 2 лицевые части и полоса между ними.
Все фиксируемые элементы надо проверять уровнем не только по вертикали, но также ровность между левой и правой частями.
Заключительный момент установки
Последним шагом считают закрытие декоративным молдингом стыковочных мест. Если конструкция из ГКЛ, все стыки армируют, места крепежей закрывают шпатлевкой для стыков. Нужно покрыть конструкцию грунтовкой и финишной шпатлевкой. После высыхания и затирания декорируют (оклеивают, окрашивают).
Арочная конструкция несложная в сборке, если приобрести ее полным комплектом. Однако, она имеет ряд нюансов при самостоятельном монтаже. Ровность арки — это красота, изысканность.
Преимущества использования арок
Среди достоинств такой конструкции, можно выделить следующие пункты:
- неординарная отделка квартир;
- нет нужды в дверях;
- возможность изготовления уникальной арки своими руками;
- зрительное увеличение квартиры;
- выделение зон помещения;
- такие конструкции способны выдерживать серьезные нагрузки, не требуя дополнительного укрепления;
- возможность спрятать минусы комнаты.
Арки применялись во всех исторических периодах – от античности до современности. Их использование в интерьере жилых помещений может стать изюминкой, напоминающей о красоте древнегреческих зданий и придающей стильный вид квартире.
Установка стандартной арки
Самый простой вариант превращения проема в арку заключается в установке готового или сделанного на заказ набора.
Комплектность
В стандартный набор входят следующие детали:
- вертикальные стойки – четыре штуки;
- дуги – две штуки;
- листы для свода и боковых поверхностей конструкции – количество зависит от размеров проема;
- декоративные замки – два или четыре (по желанию заказчика);
- инструкция по сборке.
Прежде чем покупать готовый комплект, необходимо снять замеры с проема, иначе купленные детали могут не подойти по размеру.

Установка
Начать работу следует с подготовки проема. Необходимо добиться, чтобы стены были чистыми и максимально ровными. Когда проем готов, можно приступить к сборке конструкции:
- производятся замеры по месту, при необходимости элементы подрезаются;
- деталь свода вставляется в паз сначала одной, а затем и второй дуги, Крепление деталей осуществляется на клей;
- по периметру проема с двух сторон крепятся профили или деревянные бруски для крепления элементов конструкции;
- подготовленный элемент свода крепится в проеме при помощи монтажной пены, до застывания пены деталь фиксируется струбцинами;
- затем производится установка боковых стоек и монтаж фронтальных панелей (наличников);
- для маскировки зазоров между деталями конструкции могут использоваться молдинги.
Итак, межкомнатная арка – это одновременно декоративный и функциональный элемент, благодаря которому можно визуально расширить помещения или разделить его на зоны. Сделать арку можно и самостоятельно, используя готовые комплекты или гипсокартон.
Post Views: 9 292
Можно ли устанавливать готовые арки в дверной проем
Не такая уж и малая часть арок – готовые конструкции. Это могут быть арочные системы из МДФ или массива, пластиковые арки, арки из ДСП. Так как конструкция уж собрана, монтаж ее будет совсем не сложен. Главное приобрести арочную систему, которая по размерам полностью подойдет данному дверному проему.

Гостиную, столовую, кухню – все чаще разделяют (или объединяют) межкомнатные арки
Обычно приобретается комплект, стандартный состав которого таков:
- 4 шт. наличников;
- Своды;
- Соответственно сводорасширители;
- Банкетки;
- Промежуточные пластины;
- Верхние и боковые квадраты;
- Стыковочные и торцевые планки;
- Шканты;
- Самоклеящиеся заглушки.
Если решено арку монтировать не клеевым способом, а механическим, то в сводах и наличниках нужно сделать отверстия под крепеж. На обратной стороне таких наличников – монтажные пазы, чтобы их вставить в промежуточные пластины, нужно так установить наличники, чтобы края пазов не скрывались за угловой гранью проема. Когда смонтированы пластины внутреннего заполнения, на них надеваются стыковочные панели, и это соединяет боковины со сводчатой частью. Не забудьте заглушками закрыть места креплений.
Деревянная арка
Несколько труднее производится установка деревянных арок своими руками. В этом случае выгнуть свод под задуманную вами форму практически не представляется возможным. Заранее продумайте форму и размер будущей конструкции и только после этого приобретайте детали комплекта.

Схематическое изображение двух вариантов деревянных межкомнатных арок
Монтаж арки своими руками производится по принципу фиксации элементов на заранее отделанный проем. Это позволяет скрыть неровности стены и минимизировать перепады. Таким образом, для начала необходимо завершить выведение формы свода и тщательно прошпаклевать стены.
После подготовки проема можно приступать непосредственно к монтажным работам. Если свод состоит из нескольких частей, его нужно предварительно собрать, скрепив детали специальным клеем. Для цельных элементов этот этап пропускается. Фиксация свода в проеме может осуществляться разными методами. Оптимальным является использование монтажной пены и жидких гвоздей. Также можно прибить детали к деревянной балке, а затем замаскировать места крепления наличниками и молдингами.
После установки свода в проем монтируются боковые части, которые представляют собой деревянные вертикальные панели. Финальный этап – устранение погрешностей и маскировка мест крепления.
Как согнуть гипсокартон
Одна важная деталь: стандартный стеновой гипсокартон гнется плохо. Для изогнутых поверхностей специально придумали тонкий — 6 и 6 мм толщины. Эту гнутую часть проще делать из него. При небольшой кривизне такой тонкий лист может изогнуться легко и без ухищрений. Если тонкий ГВЛ покупать нет желания, есть два способа изогнуть стандартный.
Первый — берете игольчатый валик и хорошо прокатываете вырезанный отрезок с одной стороны. Катать нужно с усилием, чтобы разбивался гипс. Потом лист мочат водой и оставляют на два-три часа. После таких процедур он должен неплохо гнуться. Берете его фиксируете с одной стороны, и постепенно прижимая к каркасу арки, изгибаете, прикручивая постепенно по краям саморезами. Способ неплох, вот только при недостатке опыта и недостаточной обработке гипса лист может лопнуть. Придется или потом маскировать щель, или начинать сначала.
Валиком с иголками прокатывают полосу

Второй способ согнуть гипсокартон: с одной стороны делать ножом насечки примерно через каждые 4-5 см. Насечки должны разрезать бумагу. Такую полосу тоже постепенно крепят, ломая по мере необходимости гипс. Он по линиям надреза лопается от легкого нажатия. Насечки с одной стороны позволяют легко ломать гипс

Подготовительные работы
Прежде, чем начать строительство арки, необходимо приготовить дверной проем, где будет производиться монтаж
Изначально нужно снять дверь и дверную коробку, это позволяет слегка сделать проем больше по размерам, что важно, ведь арка всегда будет визуально делать меньше высоту. После удаления коробки нужно все удалить, очистить от грязи и пыли и остатков строительных материалов
Зачастую используется классическое оформление арок, у которых овальный контур. Такая конструкция состоит из трех частей гипсокартонного материала:
- 2 части гипсокартонного листа одинаковые по форме, они же являются боковыми частями.
- 1 часть гипсокартона будет изогнутой.
Для создания боковых двух частей необходимо разметить гипсокартон:
- Используя рулетку, снимается размер ширины проема и определяется радиус, угол арки.
- Далее, необходимо использовать капроновую нить, по длине, которая будет такая же, как и радиус будущей арки.
- На нитке делается пара петель, в одну из которых нужно вставить шило, а во вторую карандаш.
- Далее, шило нужно воткнуть в ГКЛ, равномерно натянуть нить и начертить дугу карандашом.
- Когда размер радиуса будет перенесен, потребуется лобзиком или канцелярским ножом вырезать одну боковую часть.
- Готовая гипсокартонная дуга арки прикладывается к другому листу гипсокартона, и по ее контурам рисуется новый чертеж, после чего процедура повторяется, вырезая вторую гипсокартонную дугу.
На этом подготовка заканчивается, комната убирается и можно начинать устанавливать каркас для будущей арки.
Установка арки собственными руками
Как правило, набор по сборке межкомнатной арки включает в себя две панели сводов, наличники, внутренние пластины и свода и элементы соединения (имеют два варианта: строгий карниз или витая канитель). LoveHub.ch
Вам необходимо знать лишь три параметра для подбора комплекта арки из МДФ:
- длина (учитывается минимальное значение);
- ширина (минимум);
- глубина проема (максимум).
Дальнейший процесс описан в инструкции к арке (фото из домашнего архива):


Монтажные работы начинаются с верхнего модуля – свода, к нему крепится пластина свода. Полученную конструкцию, закрепляют шурупами.

Собираем колонны из набора. Устанавливаем колонны так, что бы наличники вошли в пазы свода.

Добавляем крепежные и вставные планки (можно использовать клей). Если проем больше стандартного, требуется приобретать комплект, включающий в себя дополнительный элемент – сводорасширитель.
По сути, арка из МДФ напоминает полуфабрикат: остается только добавить клея и вуаля! А в результате работы, вы получаете утончённую арку для интерьера и экономию средств.

В качестве декора для арки используйте краску, ткани или обои, хорошо выглядит на подобных конструкциях венская шпаклевка.
Зная эти небольшие, но важные нюансы, создать межкомнатную арку своими руками сможет каждый желающий.
Особенности арочных конструкций
Установка межкомнатной модели арок своими руками несколько отличается от обычного монтажа дверного короба
Такая конструкция имеет более легкий и изящный вид, а потому важно не испортить все это неаккуратным движением или перекосом основных элементов
Различают множество форм и конфигураций арок. Тем не менее наиболее популярным остается классический вариант с плавно закругленным сводом. Именно с формированием такой формы и возникает наибольшее число трудностей.
Для работы могут использоваться самые разнообразные материалы:
- ДВП или МДФ;
- натуральная древесина;
- пластик;
- гипсокартон;
- и т. д.

Разновидности арочных конструкций в зависимости от материала изготовления
Арка состоит из нескольких частей:
- свод;
- боковая стойка;
- декоративные элементы, например, молдинги.
В основном монтаж производится в направлении сверху вниз. Однако, существуют некоторые отличия в технологии установки арок различного типа. Рассмотрим наиболее популярные варианты и способы их монтажа в проем.

Типовая конструкция межкомнатной арки
Откосы и арки из гипсокартона
Ширина и высота готовой конструкции
Арки всегда выглядят изящно, позволяя удачно сохранить места, необходимые для открытия и закрытия дверей. Арочная конструкция позволяет визуально разделить 2 смежных помещения. Наиболее часто данный дизайнерский элемент возводят для оформления прихожей, увеличивая таким образом ее пространство и эффектно отделяя ее от остальных помещений.

Разделение смежных помещений аркой
Арки классифицируются по своему виду и форме. Все зависит от особенностей конкретного ремонтного помещения, где будет установлена арочная конструкция. В учет берется высота комнатных потолков, ширина дверного проема и конструктивные особенности самой арки. Конструктивно арка должна вписываться в общий интерьер, причем обе ее стороны могут быть представлены в разных стилях. Не рекомендуется возводить арку в дверном проеме при высоте потолков менее 2-ух м, так как это приведет к визуальному уменьшению дверного проема.

Пример расчета арочной конструкции
Ремонтное помещение для возведения арочной конструкции в классическом стиле должно иметь высокий потолок, так как радиус арочного изгиба составляет половину дверного проема. Арочная конструкция в стиле модерн имеет больший радиус изгиба, чем ширина дверного проема, а ее углы — острые или закругленные. Романтический стиль может потребовать арочную конструкцию с прямой вставкой, находящейся по середине, расположенную строго горизонтально или под углом.

Арка в романтическом стиле
Портал создается в П-образной форме в дверном проеме с многоугольными или волнообразными элементами. В готическом стиле верхняя часть арочной конструкции образует острый угол 2-мя сходящимися плоскостями.

Арка в готическом стиле
Арочная конструкция, идущая дугой с правильным радиусом, впишется в помещения с высотой потолочным перекрытием от 3 м. Образованная дуга будет занимать половину высоты дверного межкомнатного проема. Поэтому высота в 2,5 м недостаточна из-за увеличения дверного межкомнатного проема радиусом изгиба. Арочная дверная конструкция, соединяющая в полукруг прямой сегмент с изогнутыми симметричными углами, — отличное решение для широкого дверного проема и интерьерного оформления техно, хай-тек или минимализм.

Арка в стиле хай-тек
Чтобы определить форму арки и используемые для нее материалы, создается ее шаблон в натуральную величину, либо же дверной проем обрисовывается по контуру. Материал создания и отделки зависит от особенностей комнатного интерьера. При этом арочная конструкция может быть оформлена с обеих сторон по-разному в зависимости от стиля соединяемых помещений.
Разновидности форм арок
Начальный этап работ – определение места установки арки. После измерения ширины и высоты дверного проема вычисляется высота арочной конструкции, примерно, это составляет 10% от ширины проема. Изготавливая необходимые детали, по размеру они должны создаваться немного больше, чем те, которые указаны в вычислениях. Делается это из-за необходимости стыковать детали и накладывать их друг на друга. Для начала лучше работать с шаблонами, чтобы избежать ошибки и создать готовую матрицу для изготовления арочной детали без порчи материала.
Расчеты производятся и более просто. Над дверью обмеряется высота арки, к которой прибавляют дополнительно 5-7 см — высота арочного проема. Если высота арки выше дверного проема, перфоратором придется убрать недостающие см для арочной конструкции.

Параметры измерения межкомнатного проема
Выбор конструкции и расчет
Арочный проем из гипсокартона: второй способ (фотоотчет)
Этот способ хорош, если толщина перегородки невелика: попробуй прикрепи профили, если зазор между ними несколько сантиметров, а еще потом крепить перемычки. Начинается все также: вырезается первая стенка арки, крепится и переносится на второй лист.
Сначала тоже вырезаем боковины

После по ширине зазора между двумя листами вырезаются деревянные перекладинки, которые крепятся по краю арки на саморезы.
Вставляют вырезанные по ширине проема деревянные бруски

Вырезанную полосу гипсокартона крепят, начиная с одной из сторон. Чтобы было удобнее, зафиксировать можно струбцинами, благо толщина простенка небольшая. При креплении полосы ориентироваться можно на саморезы, которыми прикручивали бруски. Так точно попадете в перекладину.
При помощи струбцин полосу можно зафиксировать

Потом остается только по углу закрепить специальный перфорированный уголок и сровнять неровности.
По своду арки крепится уголок, все шпаклюется

Шпаклевка позволяет скрыть все огрехи

Ровнять высохшую шпаклевку по своду арки тоже удобнее всей плоскостью наждачной бумаги, закрепленной на терке. Неприятно, что при этом пыль сыпется в глаза, так что без очков работать почти невозможно.
Арка из гипсокартона своими руками готова

Пошаговая инструкция для самостоятельного изготовления
Чтобы не тратить лишние деньги на готовые изделия, отделку арочного проема можно сделать самому. Для этого нужно следовать четко установленной схеме.
Выполнение необходимых замеров
Любой строительный процесс требует точности, которая достигается при предварительном снятии замеров. Начинать надо с самого проема, поэтому отмеряйте первым делом у него ширину и высоту. Размер пролета между стенами проема равен ширине арки. Для того чтобы максимально точно сделать полукруг, этот показатель нужно разделить на два.
Создание несущего каркаса
Чтобы сделать монтаж каркаса, следует выполнить ряд последовательных действий:
- По линиям проема дюбелями прикручивается контур из металлического профиля. Направляющие по вертикали устанавливаются с отступом от поверхности внутрикомнатной стены. Размер отступа равен толщине листа гипсокартона и слою штукатурки (около 0,2 см).
- Устанавливаем параллельно друг другу по два таких профиля с каждой стороны.
Иногда вместо металлического профиля используют деревянные рейки. Технология монтажа каркаса при этом существенно не изменяется.
Изгиб гипсокартонного листа
После установки каркаса принимаются за изгиб ГКЛ. Специалисты рекомендуют использовать гипсокартон, предназначенный специально для арочных конструкций. Он легко принимает нужную форму, если материал промять в продольном направлении.
Если вы решили использовать обычный гипсокартон, то с ним придется повозиться. Установочный элемент вырезается нужного размера в виде прямоугольника. Сгибают его двумя способами: мокрым и сухим.
Мокрый метод занимает много времени и не терпит спешки. Чтобы при сгибании материал не растрескался, его увлажняют водой и делают проколы. В таком виде лист гипсокартона оставляют лежать некоторое время, а затем сгибают его на шаблоне нужной конфигурации.
Под сухим методом понимается нанесение на изнаночную сторону ГКЛ пропилов, параллельных друг другу. Пропил уходит вглубь листа, затрагивая внешний картонный пласт и гипс. Слой картона с лицевой стороны остается целым.
Черновая обшивка каркаса
Если изгиб выполнялся мокрым методом, то в первую очередь необходимо дождаться, пока лист гипсокартона будет полностью сухим. Фиксация материала выполняется вначале клейкой лентой, а затем саморезами. Минимальный шаг между ними должен составлять от 5 до 6 сантиметров.
После крепежа обшивки края гипсокартонного листа зачищаются. А с целью предотвращения сколов изогнутой кромки на нее устанавливают перфорированный пластиковый уголок.
Выравнивание шпатлевкой
Чтобы поверхность стала ровной, нужно сделать отделку арочной конструкции. Для начала наносится грунтовка, а после ее высыхания шпатлевка. Для армирования второго слоя и укрепления углов используют стекловолоконную сетку.
На сетку наносится последний третий слой шпатлевки. Приблизительно через 10 часов она высыхает, после чего можно начинать зачистку неровностей наждачкой. При качественно выполненной работе поверхность будет без шероховатостей, неровностей, в ней не будут видны шляпки саморезов.
Порядок установки
Перед выполнением работы определяемся с высотой и шириной будущей арки (обычно высоту арки определяет высота дверей в квартире, а ширину — толщина стены проема). Освобождаем дверной проем от старых дверных блоков и прочих конструкций (если таковые имеются).
Подготавливаем дверной проем под монтаж будущей арки

Для этого по бокам проема монтируем деревянные бруски (можно металлический профиль) с помощью дюбель гвоздей к стенам и поперечный (горизонтальный) брусок определяющий высоту будущей арки.
Ширина этих брусков должна быть равна внутренней ширине арки с запасом в несколько миллиметров. Поперечный брусок монтируем таким образом, чтобы он был ниже запланированной высоты арки на 5 см. это делается для того, чтоб дуга арки зашла на него внахлест, что придает жесткость конструкции. Зашиваем ненужное пространство с двух сторон проема древесноволокнистой плитой — ДВП.
Готовим свод
Исходя из практики ширина арки обычно не превышает 150 мм а ширина полос ДВП идущих в комплекте с аркой в среднем 200 мм. Поэтому в соответствии с шириной будущей арки размечаем и обрезаем идущую в комплекте окрашенную двп (если это необходимо).

Вставляем обрезанную по ширине полосу двп в паз одной из дуг арки.

Карандашом отмеряем линию обреза, таким образом, чтоб оставался запас в 10-15 мм.
Достаем двп из дуги арки и обрезаем по намеченной линии.

Далее промазав паз в дуге клеем (можно наносить точечно в нескольких местах) вклеиваем двп оставляя запас по 5-7мм с каждой стороны. Для этих операций желательно использовать прозрачный клей, что бы ни портить вид в местах возможного выступания клея.
Аналогично вклеиваем вторую половину дуги арки.
Установка дуги арки

Для фиксации свода арки в проеме к ее внутренней стороне прикручиваем на саморез небольшой обрезок деревянной рейки либо металлическую пластину (толщины деревянной рейки может оказаться много), и с ее помощью крепим дугу.
Готовим боковые части
С помощью рулетки измеряем расстояние от края дуги до пола с одной стороны арки.

В соответствии с этими измерениями отпиливаем по длине две боковые панели арки и полоску.
ДВП отпиливаем на те же 5-7 мм меньше на которые мы оставляли запас в пункте выше. Это делается для жесткости и максимальной симметричности конструкции, что бы верхняя часть установленной арки состыковывалась с нижней.
Наносим в пазы отпиленных и подготовленных панелей клей.

Вклеиваем двп, равняя ее по нижнему краю (в верхней части остается необходимый запас).

Таким же образом монтируем вторую панель и получаем готовую боковую стойку межкомнатной арки.
Монтируем стойку межкомнатной арки
Для этого наносим «жидкие гвозди» на внутренние стороны стойки и приклеиваем ее к вертикальному бруску.

Одна из установленных боковых стоек.
При этом желательно прижать ее на несколько минут пока не схватиться клей. Аналогично изготавливаем вторую стойку арки.
Заключительный момент установки
Остается лишь закрыть декоративным молдингом места стыка верхней и нижней частей арки.

Для этого наносим небольшими каплями клей на боковые элементы молдинга.

И приклеиваем их на место стыка арки.
Измерив, расстояние между боковыми частями декоративных накладок отрезаем необходимой длины средний элемент. Срез должен быть максимально ровным для образования плотного стыка с боковыми элементами молдинга и вклеиваем его. Аналогично приклеиваем молдинги с другой стороны.
На этом установка межкомнатной арки своими руками закончена и можно наслаждаться выполненной работой.
Установка двери-купе своими руками
В настоящее время двери с роликовым механизмом или, как их …
Арка своими руками
Друг все время был не доволен эстетичностью дверного проема из …
Установка межкомнатных дверей в место арок
Прихожая – это связующее звено всех комнат. Она должна обладать …
Реставрация деревянных дверей своими руками
С ужасом вспоминаю свои старые межкомнатные двери. Многолетние слои краски, …
Межкомнатные арки в интерьере квартиры
В настоящее время мало кого можно удивить этим элементом дизайна. …
Врезка замка в деревянную межкомнатную дверь
Если перед вами стоит задача, обозначенная словами «как врезать замок …




































