стеклянные конструкции и фурнитура
- Главная
- О компании
- Миссия
- Услуги
- Как мы работаем
- Реквизиты
- Правовая Информация
- Каталог
- Наши работы
- Контакты
- Скачать каталоги
Мы предлагаем Вам купить стеклянные двери:
Не секрет, что стеклянные двери в Севастополе стали эталоном в дизайне жилой и нежилой недвижимости сразу после своего появления на свет в промышленном дизайне. И до сих пор их установка является признаком того, что их владелец имеет достаток, достаточно высокий статус и что он умел и рационален в своих хозяйственных решениях.
Почему цена на калёную стеклянную дверь выше?
Сразу же следует оговориться: промышленное интерьерное стекло для дверей может быть сырым и каленым. Если вы сравниваете цены на стеклянные двери, цена на различные товарные позиции от различных производителей может варьироваться даже на порядки.
Почему ценится именное каленое стекло и как отличить его от низкопробного сырого?
Приёмы использования дверей из стекла:
Существуют 5 наиболее распространенных приемов, каждый из которых обязательно поможет вам выбрать каленое стекло наилучшего качества, даже если вы не просто не специалист, но даже не любитель в мире создания интерьеров.
Прием 1:
Основным отличием каленого стекла и его наибольшим преимуществом является его толщина: обычно оно достигает 10 мм, но есть и еще более толстые виды каленого стекла. В то же время стандартная толщина сырого, некаленого стекла достигает всего 5 мм.
Прием 2:
Толщина стекла сама по себе – не показатель, так как толщина сырого стекла также может достигать 10 мм и более. Но чего не хватает более дешевому аналогу – так это исключительности гладкости поверхности. Обычное стекло может иметь кривизну, шероховатость, на ней могут располагаться выбоины и щербинки. Каленое же стекло не оставляет шансов подобным несовершенствам. Его поверхность покажется вам гладкой, монолитной даже при максимально тщательном осмотре.
Прием 3:
Каленое стекло благодаря технологии своего изготовления получило собственную «визитную карточку»: с одной стороны его поверхности практически всегда будут скоплены мелкие шарики воздуха. Однако, следует учитывать, что этот момент указывает скорее на ручную работу при изготовлении стекла, а потому некоторые дорогостоящие образцы ординарного стекла также могут иметь некоторое количество пузырьков.
Прием 4:
Если вы решились купить стеклянные двери, просто замечательным помощником для вас станут обычные очки с поляризационными стеклами. Надев их, вы сможете увидеть на каленом стекле паттерн, напоминающий структурированное нефтяное пятно или сетку невода. Такого паттерна при взгляде на обычное стекло вы не увидите.
Прием 5:
Если вы наспех подбираете стеклянные двери, цена сама по себе подскажет вам, какой вид стекла перед вами: суперкачественное каленое стекло порой оказывается на порядок дороже сырого субститута.
В жилой недвижимости абсолютными хитами продаж, пожалуй, являются стеклянные входные двери, стеклянные двери для шкафа и конечно же: межкомнатные двери из стекла.
Давайте рассмотрим обе эти позиции! Стекло как основа во входной группе является скорее символом того, что за такими дверями располагается серьезная организация. Они эстетичны, массивны, никогда не теряют своего вида и не требуют специального ухода, кроме банального мытья. Они отлично подойдут как для уличного фасада, так и для входа в офис в офисном центре.
Касаемо дверей для шкафов, то здесь, наоборот, стекло – просто классика! Оно может быть глянцевым, как зеркало, затемненным только с одной стороны, матовым, а также покрытым изображениями любых дизайнов – от красивейших паттернов до кастомных фотоизображений с высоким изображением.
Покупать Стеклянную дверь для сауны или для бани?
А есть ли случаи, когда без стекла не обойтись? Совершенно необходимым является использование стекла в таких видах дверей как стеклянные двери для сауны. Стеклянная дверь для бани любого типа (русской, турецкой, финской) не имеет особых претензий к своему качеству, однако, ее использование – совершенная необходимость. И это не удивительно: ведь двери любого другого типа банально размокнут, что чревато разбуханием, скалыванием или расслоением двери после недлительно недлительной эксплуатации (в зависимости от дверного материала).
7 978 784 24 04, (8692) 45-09-44 Купить стеклянные входные двери для сауны или для бани в городе Севастополь. Стеклянные двери для шкафа, цена на которые от производителя.
Двери из стекла для бани
Стеклянные двери в бане или сауне — не только яркая деталь интерьера, но и практичная перегородка, удобная в эксплуатации. Такие изделия обрели популярность для установки в саунах совсем недавно, ведь раньше всем требованиям отвечали только двери из массива липы. При этом изделия из стекла представлены в большом разнообразии: отличаются внешним видом, функциональностью, параметрами и другими характеристиками.

Двери из стекла выглядят стильно и красиво в любом помещении
Многообразие стеклянных перегородок, предназначенных для бани, позволяет легко подобрать модель, отвечающую требованиям безопасности, дизайна, практичности
Для этого при выборе нужно обратить внимание на следующие особенности:
- полотно должно быть изготовлено из термостекла толщиной от 8 мм, что обеспечивает прочность и надёжность конструкции;
- стеклянная дверь обязательно дополняется комплектующими, обеспечивающими безопасность и долговечность изделия;
- дверь для бани или сауны устанавливается в деревянный короб, а без него не будет оптимальной теплоизоляции помещения;
- прозрачные двери не всегда уместны в бане, поэтому можно выбрать модели из матового стекла, с рисунком или с тонировочной плёнкой;
- механизм открывания должен быть выполнен из нержавеющей стали, а параметры петель должны выдерживать вес полотна;
- на двери не должно быть острых, торчащих, металлических деталей, которые могут привести к травмам при эксплуатации парилки.

Прозрачные двери практически незаметны, но более красивы модели с рисунком
Распашная дверь
Дверь, состоящая из одного полотна, называется одностворчатой. В бане такая конструкция открывается наружу помещения и обладает плотным притвором, исключающим проникновение холода. Открывание наружу, то есть из парилки, обусловлено требованиями безопасности, которые необходимо учитывать при обустройстве саун и бань.

Распашные двери компактны и обеспечивают сохранение тепла в помещении
Плюсы распашных дверей из стекла для бани выражены в следующем:
- плотный притвор без риска проникновения холодного воздуха;
- множество вариантов оформления: матовое стекло, с рисунком, прозрачное или тонированное;
- удобный и безопасный тип открывания;
- широкий выбор дверей с разными параметрами.
Банные двери этого типа должны быть изготовлены только из закалённого стекла, ведь в противном случае полотно не выдержит температурных перепадов и расколется. Недостаток качественных конструкций заключается в высокой стоимости, но такие модели дверей служат много лет и не теряют свои эксплуатационные характеристики.
Дверь из матового стекла
Матовое термоустойчивое стекло — красивый и практичный материал для двери в бане или сауне. Полотно может быть полностью матовым или же с полупрозрачным узором. Любой вариант уместен для современной бани и эффектно дополнит интерьер. Такие конструкции часто бывают распашными, так как этот тип дверей обеспечивает наилучшую теплоизоляцию помещения.

Двери могут быть из матового цветного стекла
Достоинства изделий из матового стекла выражены в следующих качествах:
- обеспечение комфорта пользователей сауны или бани, так как дверь непрозрачная;
- высокая светопропускная способность;
- сочетаемость с любыми отделочными материалами;
- практичность в уходе и эксплуатации.
Полотна из матового прочного стекла имеют более высокую стоимость, чем прозрачные двери. Конструкция может быть оснащена как металлическими, так и деревянными или пластиковыми ручками, декоративными деталями.
Дверь из комбинированных материалов
Если при планировке бани не предполагается установка двери, выполненной полностью из стекла, то оптимальны варианты конструкций из древесины, в которых присутствуют стеклянные вставки. Такой вариант позволяет сочетать экологичность дерева и практичность стекла, вставка из которого может быть любой формы и размера.

Стекло придаёт полотну интересный вид, а древесина обеспечивает экологичность
Плюсы комбинированных моделей дверей заключаются в таких качествах, как:
- множество вариантов дизайна, благодаря разнообразию форм вставок;
- небольшая светопропускная способность и обеспечение комфорта пользователей бани;
- возможность установки любых петель для распашных дверей;
- небольшой вес по сравнению со стеклянными полотнами.
Отрицательные черты свойственны некачественным изделиям. Если древесина, используемая при создании двери, не прошла правильную обработку, то велика вероятность возникновения щелей, трещин и других дефектов.
Монтаж дверного блока
Самостоятельный монтаж дверей в домашней парной позволит существенно сэкономить собственные деньги. Но необходимо иметь определенные строительные навыки и следовать рекомендациям специалистов.
Выполнение разметки
Перед установкой стеклянных дверей в баню создается проект конструкции, определяются параметры изделия, выполняется разметка участка его расположения. Это первый и самый важный этап строительных работ. От точности выполнения расчетов и качества монтажных работ будет зависеть не только период эксплуатации объекта, но и сохранность тепла в парной.
Для замера дверной конструкции необходимо использовать строительную рулетку. Для монтажа направляющих элементов к полученным результатам добавляется дополнительно 150 мм.
После выполнения всех необходимых замеров осуществляется разметка в стеновом проеме, где планируется установка дверного блока. С каждой стороны необходимо провести ровные линии под деревянную рейку или линейку. Для проверки их горизонтальности рекомендуется воспользоваться строительным уровнем.
Между каркасом двери и стенами проема обязательно должен быть технический зазор не менее 50 мм.
Фиксация направляющих
При установке в бане дверных блоков из стекла необходимо подготовить 2 направляющих элемента. Для устойчивости полотна при передвижении его рекомендуется устанавливать на ролики.
Существует несколько вариантов фиксации направляющих компонентов, но они должны быть установлены точно по горизонтали. На пути полотна при открытии не должно находиться никаких сторонних предметов. При фиксации направляющих деталей на основаниях из древесины применяются саморезы. При их закреплении на бетонных или кирпичных основах применяются дюбеля. Для них в бетоне предварительно необходимо просверлить отверстия.
Брать дюбеля из наборов опытные мастера не советуют. Такие соединения не являются качественными. Лучше отдельно купить пластиковые дюбеля и саморезы немного большего сечения.
После подготовки крепежных элементов собираются каретки. Необходимо в них закрутить крепежные болты и установить на направляющие элементы. При этом сильно зажимать их не рекомендуется. Чтобы стеклянное полотно закрепить максимально надежно, дополнительно можно задействовать крепежные скобы.
На следующем этапе осуществляется монтаж прозрачного полотна стеклянной двери в баню. Изделие вставляется в каретку верхнего направляющего элемента. Изделие необходимо завести в пазы, зафиксировать болтами и одновременно отрегулировать его положение.
При монтаже в сауне дверных блоков со стеклянным полотном для их прижима лучше брать паранитовые прокладки
Это важно учитывать, приобретая изделие в строительном магазине. Плотность паранита также необходимо учитывать. Он не должен быть слишком мягким, так как на таких подкладках дверь долго не продержится
Он не должен быть слишком мягким, так как на таких подкладках дверь долго не продержится.
После установки и фиксации всех составляющих конструкции осуществляется предварительная регулировка, проверяется правильность выполнения монтажных работ. Для этого применяется монтажный уровень. После выравнивания дверного блока на него устанавливается необходимая фурнитура. Дополнительно можно украсить конструкцию различными декоративными компонентами.
Привычная деревянная
Парилка – главное помещение в бане. Влажный горячий пар в русской бане или сухой нагретый воздух в сауне – основное оздоравливающее средство этих процедур. Непередаваемый запах нагретого дерева запоминает каждый, кто хоть раз был в настоящей бане. Поэтому липовая или осиновая вагонка на стенах и потолке парилки – это незыблемо, это неотделимая часть явления. Это же до недавнего времени относилось и к дверям в бане.
Отделочные материалы и конструкции в бане, особенно в парилке, испытывают экстремальные нагрузки от влаги и повышенной температуры. Дерево особенно подвержено таким воздействиям, что издавна учитывалось настоящими мастерами при отделке и оборудовании бани и сауны.
Дверь в парилку из массива липы или дуба (тем более – из экзотических пород) – особая вещь. Она и продается на рынках отдельно от других, выглядит основательнее и цена на неё посущественнее. Её конструкция учитывает возможность рассыхания от резкого колебания влажности и температуры воздуха. Полотно двери набирается из отобранных толстых досок на соединительный клиновидный брус, врезаемый в паз без клея. Этот брус позволяет при деформации дерева от впитывания влаги и усыхания избежать появления щелей, поджимая доски в одном направлении – от широкого конца к узкому. Этим достигается главная цель – не допустить теплопотери, поддержать нужную атмосферу в парилке.
Этой цели соответствуют и размеры подобной двери. Аутентичная деревянная дверь в парилку для русской бани не делается шире 600 мм и выше полутора метров. Считается, что так можно дольше сохранить пар при открывании двери, но для крупного человека это всегда создавало серьезные проблемы.
Особенности конструкции, установки и изготовления дверей для бани
Многие замечали, что в жарко натопленную баню холодный воздух «врывается» наиболее активно, вызывая массу неприятных эмоций. Предотвратить подобные явления хозяева пытаются разными способами: дополнительными шторами на входных проемах, обустройством предбанников или установкой дополнительных дверей. От того, насколько грамотно размещены и сконструированы двери, а также от материала их изготовления во многом зависит комфортность бани и её способность сохранять тепло. Даже совсем маленькая баня не обходится без 2 или 3 входных дверей.
- Первая дверь на входе – она ведет в предбанник,
- вторая – в моечную с парилкой,
- третья может разделять помещение для мытья и парильную комнату.

Кроме привлекательного внешнего вида и требуемых размеров, они должны быть изготовлены из материалов, отвечающих следующим требованиям:
- не слоиться и не корежиться от воздействия влаги;
- сохранять форму даже при резких изменениях температуры;
- хорошо сохранять тепло.

Из какой древесины выбрать деревянную дверь
Особенно жесткие требования предъявляются к дверям, соединяющим предбанник с моечной (парилкой). Их древесина должна без последствий выдерживать длительное воздействие влаги и не бояться резких скачков температуры.

Дуб, лиственница, липа или осина
Максимально соответствуют таким требованиям деревья следующих пород: дуб, лиственница, липа или осина. Чаще всего для производства используется липа – её стоимость не очень высока, а теплопроводные характеристики, стойкость к влаге и изменениям температуры находятся на нужном уровне. Двери из липы отлично сохраняют тепло в парных и не обжигают тело при случайном прикосновении.

Двери из хвойных пород
Для дверей в помещения с высокими температурами не стоит использовать хвойные деревья. Под воздействием тепла из них будет вытекать смола и выделяться эфирные масла. Специфический запах может вызывать ухудшение самочувствия у посетителей, да и липкие смолянистые двери вряд ли вызовут радостные эмоции.

Недорогие хвойники применяют для производства наружных банных дверей, так как температура в предбаннике и на улице не вызывает интенсивного смолоотделения и испарения эфирных масел. Невысокая стоимость материала позволяет снизить расходы на строительство бани, а повысить эстетичность конструкции можно при помощи красивой вагонки.

Какие разновидности конструкции входных дверей для бань бывают и в чем их особенность
Существует 2 основных типа дверей, устанавливаемых в банях: одностворчатые и двухстворчатые с горизонтальным расположением полотен. Выбор того или иного вида зависит от способа протапливания бани.
Одностворчатые двери и двухстворчатые с горизонтальным расположением полотен
Если баня топится «по-белому», то на вход устанавливают обычную дверь с одной створкой. Предпочтение, как правило, отдается небольшим конструкциям из дерева, имеющим внушительную толщину и хорошую теплоизоляцию.

Двери с двумя створками, расположенными одна над другой, монтируют в том случае, если баня топится «по-черному». В процессе протапливания верхняя створка периодически открывается для того, чтобы выпустить угарный газ и не допустить слишком сильного задымления моечной и парной. Такой вариант используется крайне редко, так как при уровне развития банной индустрии, топить баню «по-черному» крайне неудобно.
Щитовые и рамные двери
В обоих случаях деревянные двери могут быть щитовыми или рамными. У щитовой конструкции подвижная часть сколочена из одного слоя досок в полотно, жесткость которому придают поперечные, продольные и диагональные брусья. Створки двери и каркас обрабатываются влагозащитными составами и оббиваются изолирующим материалом.

Рамные двери состоят из отдельных элементов – рам, соединенных друг с другом саморезами или винтами. Одна створка может иметь две, три или больше фрагментов. Каркас каждой рамы изготовлен из небольших брусьев, которые обшиты фанерой или оргалитом. В промежутки между обшивкой закладывают теплоизоляцию.
Подбирая или изготавливая самостоятельно входную дверь для бани нужно помнить о том, что даже самая влагостойкая древесина разбухает от сочетания высокой влажности и резкой смены температуры. По этой причине могут возникнуть сложности с закрыванием дверной створки. Чтобы избежать подобной неприятности, у банных дверей между коробом и створкой оставляют небольшую щель – около 0,5 см. Для того чтобы от влажности не искривлялся сам короб, его делают толстым и массивным.

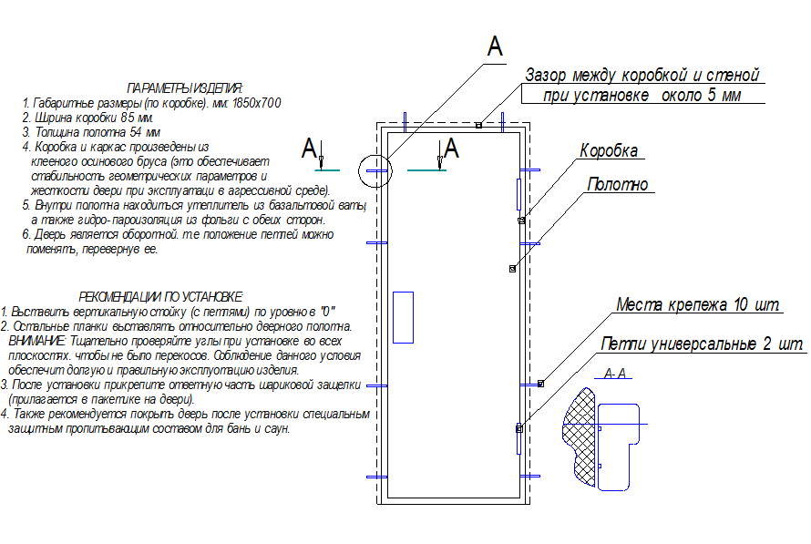
Способ установки стеклянных дверей в парной
Между способами установки дверного полотна в парилку для сауны и бани есть существенное отличие. Если речь идет о сауне, то под дверью нужно оставлять вентиляционную щель для поступления воздуха. Для русской же бани, напротив, делают дополнительный порог, чтобы пар не выходил из парилки, а холодный воздух не просачивался по полу. Следовательно, размер стеклянной двери в парилку будет зависеть от ее типа и температурного режима.
Коробка для стеклянного дверного полотна может быть как деревянной, так и металлической. Если она из металла – монтаж производится во время черновой отделки парилки, а если деревянная, то на завершающем этапе работ.
Вес двери из стекла, как правило, составляет порядка 25 кг, поэтому ее установку следует производить с помощником, особенно, если у вас лишь небольшой опыт в такой работе.
Во время распаковки изделия не стоит убирать далеко деревянные планки, ведь на них можно поместить стекло, чтобы его потом удобно было поднимать. Прежде всего, нужно вынуть стекла из рамы. Для этого ослабляют винты, отгибают петли в обратную сторону и переносят стекла на деревянную подкладку.
В зависимости от того, как будет установлен косяк, дверь будет открываться в ту или иную сторону. Определившись с направлением открытия, нужно вставить дверную коробку в проем, зафиксировав ее клиньями. В процессе установки следует проконтролировать горизонтали по уровню, чтобы дверь легко открывалась и закрывалась.
Затем верхнюю часть дверной коробки со стороны петель фиксируют шурупами, после чего еще раз проверяют уровни. Аналогичные действия производят и с другой стороны коробки. После окончательной перепроверки положения, все крепления затягивают максимально плотно.

Далее приходит черед стекол. Поставить их самостоятельно будет очень сложно – лучше воспользоваться помощью. Стекло вставляют в петли, после чего затягивают крепления на них. При этом один человек придерживает полотно, а другой – занимается крепежами.
При качественной установке в закрытой двери зазоры со всех сторон получаются одинаковыми, а само полотно хорошо примыкает к уплотнителю. Последним этапом работ будет монтаж ручек и защелки.
По большому счету, установка двери не представляет особой сложности. Однако если вы не уверены в своих силах, поручите эту работу профессионалам.
Стоит отметить, что двери из стекла прекрасно подходят не только для русских и финских бань, но и для турецких хаммамов. Благодаря возможности декорирования стекол узорами и рисунками с разной тематикой и уровнем сложности, такие двери идеально дополнят любой интерьер. А установка и подбор стеклянных дверей и комплектующих для хаммама точно такие же, как и для других видов бани.
Целесообразно выбирать для парилки дверь с декорированием или в матовом исполнении, чтобы она была хорошо видна.





































