Классификация блоков по форме и размеру
Классификация газобетона основана на форме и толщине (в миллиметрах):
- прямая – толщина 200/300;
- с ручками для захвата, боковыми пазами – 375/400;
- с ручками – 300/375/400;
- с боковыми пазами – 300/375/400;
- для перегородок – 150/100;
- U-образная – 200/300/400.
Общими для всех марок газобетона являются длина и высота: 625 и 250 миллиметров соответственно. Исключение составляют одна из разновидностей прямых блоков с высотой 300 миллиметров и U-образные, для перемычек монолитных поясов, имеющих длину 500 миллиметров.
Газобетон отличается от газосиликата по составу и технологии изготовления. Газосиликат изготавливают автоклавным способом из песка и извести.

Постройка гаража своими руками, пошаговая инструкция
Гараж из газобетона своими руками можно сделать по инструкции:
- Фундамент.
- Возведение стен.
- Монтаж кровли.
Для сравнения, гараж из газосиликатных блоков строится по схожей технологии. Разница между материалами заключается в показателях прочности, усадки. Газосиликат активнее впитывает воду и уступает в морозостойкости.
Постройка фундамента
Подсчет сделан, выходит, требуется приступать к строительству фундамента. В случае с гаражом из газобетона доступны варианты:
- монолит;
- свайно-ленточный.
Построить гараж можно после предварительной оценки грунта. Монолитный фундамент выбирают, когда подземные воды находятся глубоко и конструкции ничего не угрожает. Когда гаражный блок подмывается, надо выбрать свайно-ленточный фундамент. Его не поведет даже при сильном выпадении осадков.
Возведение стен
Когда строим гараж из газоблока 600х300х200 5х8 метров, лучше сосредоточиться на приготовлении качественного раствора. Для такого материала не придётся делать ничего сверхъестественного. Раствор применяется точно такой же, как и при кладке кирпича. Однако есть, одна особенность – добавление клеевой смеси. С ее помощью блок ложится ровно, и не образуются большие швы. Второй нюанс – лучшая теплоизоляция. Вода сквозь представленную смесь точно не пройдет.
В ёмкость засыпают ведро песка, цемент и добавляется вода
В зависимости от качества материала важно смотреть на консистенцию. Если раствор хорошо берется и его можно распределять по поверхности без подтёков, значит, надо приступать
Первый ряд укалывается по разметке и применяется небольшое количество клея. После проверки отклонения возводить становится проще. Последующие ряды необходимо немного подбивать, чтобы в дальнейшем не происходило усадки.
Монтаж кровли
Односкатный вариант для проекта 600х300х200 5х8 метров является подходящим.
Преимущества:
- простота постройки;
- отвод воды;
- возможность установки любой гидроизоляции.
Чтобы все получилось, на газобетонный блок устанавливаются деревянные перегородки. На них стоит сделать отметки под стойки.
Стандартный проект не предполагает навес, но он может сослужить неплохую службу. Для этого сначала устанавливается каркас из брусков. Количество опор зависит от материала. Некоторые применяют металлочерепицу, другим подойдет обычный шифер.
Постройка гаража своими руками, пошаговая инструкция

Гараж из газобетона своими руками можно сделать по инструкции:
- Фундамент.
- Возведение стен.
- Монтаж кровли.
Для сравнения, гараж из газосиликатных блоков строится по схожей технологии. Разница между материалами заключается в показателях прочности, усадки. Газосиликат активнее впитывает воду и уступает в морозостойкости.
Постройка фундамента
Подсчет сделан, выходит, требуется приступать к строительству фундамента. В случае с гаражом из газобетона доступны варианты:
- монолит;
- свайно-ленточный.
Построить гараж можно после предварительной оценки грунта. Монолитный фундамент выбирают, когда подземные воды находятся глубоко и конструкции ничего не угрожает. Когда гаражный блок подмывается, надо выбрать свайно-ленточный фундамент. Его не поведет даже при сильном выпадении осадков.
Возведение стен
Когда строим гараж из газоблока 600х300х200 5х8 метров, лучше сосредоточиться на приготовлении качественного раствора. Для такого материала не придётся делать ничего сверхъестественного. Раствор применяется точно такой же, как и при кладке кирпича. Однако есть, одна особенность – добавление клеевой смеси. С ее помощью блок ложится ровно, и не образуются большие швы. Второй нюанс – лучшая теплоизоляция. Вода сквозь представленную смесь точно не пройдет.

В ёмкость засыпают ведро песка, цемент и добавляется вода
В зависимости от качества материала важно смотреть на консистенцию. Если раствор хорошо берется и его можно распределять по поверхности без подтёков, значит, надо приступать
Первый ряд укалывается по разметке и применяется небольшое количество клея
После проверки отклонения возводить становится проще. Последующие ряды необходимо немного подбивать, чтобы в дальнейшем не происходило усадки
Первый ряд укалывается по разметке и применяется небольшое количество клея. После проверки отклонения возводить становится проще. Последующие ряды необходимо немного подбивать, чтобы в дальнейшем не происходило усадки.
Монтаж кровли
Односкатный вариант для проекта 600х300х200 5х8 метров является подходящим.
Преимущества:
- простота постройки;
- отвод воды;
- возможность установки любой гидроизоляции.
Чтобы все получилось, на газобетонный блок устанавливаются деревянные перегородки. На них стоит сделать отметки под стойки.
Стандартный проект не предполагает навес, но он может сослужить неплохую службу. Для этого сначала устанавливается каркас из брусков. Количество опор зависит от материала. Некоторые применяют металлочерепицу, другим подойдет обычный шифер.
Расчёт
Точные расчёты требуемых материалов позволят дополнительно сберечь деньги благодаря тому, что вы не будете покупать лишний материал.
Расчёты нужно начинать со следующего:
- Иметь готовый проект здания;
- Выяснить реальные габариты гаража (высота и протяжённость несущих стен, размеры проёма ворот);
- Подобрать газобетонные блоки подходящего размера.
Эти показатели отличаются для каждого гаража.
Чтобы разобраться в последовательности подсчёта, желательно начинать с постройки со средними характеристиками: гараж прямоугольной формы с габаритами 4 м шириной и 6 м длиной при высоте 2,4 м.
Для этого строения с учётом параметров блоков лучше использовать материал с размером 20/30/60 см.
Объём необходимого материала
Кто не желает выполнять подробные расчёты для всех стен, может использовать специальную формулу: (L х Н – Sп) х 1,05 х В = V, где в метрах L – показывают длину по периметру стен, Н – высота стен, Sп – площадь всех проемов постройки, 1,05 – особый коэффициент, В – толщина блоков, V – объём газобетонных блоков.
Результат расчётов увеличивают до целого числа. Это подходит как при подсчёте поштучного количества материала, так и при подсчёте объёма блоков для постройки.
Расчёт объёма производят и по простой схеме:
- Рассчитывают объём 1 блока;
- Полученное значение умножают на требуемое для здания число блоков.
Получаем в результате 0,2×0,3×0,6= 0,036 м3 (объём гипсоблока), после этого подсчитываем объём строительного материала на весь гараж габаритами 4х6 м 0,036 ×232=8,352 м3.
Подробный расчёт материала
Для 1 ряда стены длиной 6 метров с учетом размеров блока 20/30/60 см потребуется только 10 штук. Чтобы сложить 1 ряд стены 4 м длиной, потребуется 7 блоков (округление выполняется в большую сторону).
Высота будущей постройки влияет на необходимое количество рядов. Укладывают строительный материал по кругу гаража, добиваясь толщины стены около 20 см. Постройка со стенами высотой 2.4 м потребует выкладки 8 рядов материала. Последней стадией является расчёт общего числа блоков.
Для этого потребуются ранее полученные данные, в результате получается:
- Длинная стена потребует укладки 80 блоков;
- Короткая стена потребует укладки 56 блоков;
- Стена, в которой сделан проём ворот, потребует укладки 16 блоков.
При подсчёте общего числа требуемого материала число блоков для длинной стены множится на 2. Последующий расчёт проводится элементарно — все цифры складывают: 160+56+16=232 блоков. Полученное значение нужно для страховки (возможна случайная поломка нескольких блоков при транспортировке) увеличить до 235 штук. По этому принципу проводят расчёт для гаража любого требуемого для ваших условий размера.
Характеристики и особенности газобетона
Газобетон – современный строительный материал, получаемый вспениванием водной смеси цемента, песка, извести при помощи алюминиевой пудры. Способы затвердения: автоклавный при температуре до 200 градусов или воздушный.
Пористый материал имеет низкие показатели:
- удельного веса;
- теплопроводности;
- коэффициента сжатия;
- горючести.
В строительстве гаражей используются марки сибита (газобетона, полученного автоклавным способом) от D300 до D800.
По соотношению цены и качества для строительства гаража предпочтительнее газобетон марок D400-D600, имеющих показатели:
- D400:
- удельный вес – 400 килограммов/кубический метр;
- показатель прочности – 2,17 Мегапаскаля;
- коэффициент теплопроводности – 0,096;
- пористость – 75 %.
- D500:
- 500 килограммов/кубический метр;
- 2,5 Мегапаскаля;
- 0,112;
- 55-75 %.
- D600:
- 600 килограммов/кубический метр;
- 3,2 Мегапаскаля;
- 0,141;
- 40-55 %.
Выбор марки газобетона зависит от климатических условий, состояния грунта (залегания грунтовых вод и состава почвы), проекта.
Видео описание
В видеоролике показано производство пенобетона:
Газобетон производят по совершенно другой технологии. Во-первых, в состав бетонного раствора добавляют известь и алюминиевую пудру. Взаимодействуя между собой с участием воды, оба вещества вступают в химическую реакцию, при которой выделяется водород. Так вот он и образует внутри смеси пузырьки. Но химическая реакция может произойти только под давлением и с повышением температуры, поэтому газобетонные блоки производят в специальном оборудовании, которое называется автоклавом. Внутри создается высокое давление, а температура повышается за счет образования насыщенного пара.
Также отметим, что пеноблоки – это материал, сформированный в специальных формах с точными размерами конечного продукта. Газобетонные изделия – это материал с большими размерами, который затем нарезают под требуемые (стандартные) параметры. Для этого используется струна. Получается так, что пенобетон имеет структуру с закрытыми порами, газобетон с открытыми. Поэтому водопоглощение вторых намного больше, чем у первых
Отсюда важное требование к гаражам, возведенным из газоблоков. Стены постройки должны быть обязательно защищены, это может быть штукатурка или любой другой вид облицовки

Что касается плотности, то она у двух материалов практически одинаковая и варьируется в диапазоне 300-1200 кг/м³. Но при этом прочность у газоблоков почти в два раза выше, потому что они изготавливаются автоклавным способом. Хотя надо отдать должное производителям пеноблоков, они уже сегодня предлагают изделия, производство которых налажено с помощью автоклавов.
И другие характеристики:
- усадка у пеноблоков – 1-3 мм/м, у газоблоков – 0,5 мм/м;
- материал из газобетона держит тепло лучше, чем его оппонент, потому что у него структура равномерная;
- степень огнестойкости у двух видов одинаковая, то есть это негорючие материалы.
Плюсы и минусы
Газобетонные блоки превосходят керамзитоблоки по многим показателям. Поэтому перед покупкой сравниваются характеристики некоторых видов пористых материалов, а потом убедиться, что газосиликат лучше остальных. Неоспоримые достоинства:
- качество тепло- и звукоизоляции на высшем уровне — это обусловлено пористой структурой изделий;
- газобетонные блоки не сгорают при экстремально высоких и температурах, что обеспечивает пожарную безопасность дома;
- материал экологически чистый, поскольку изготавливается из природных компонентов: песка, извести и портландцемента, поэтому про вред здоровью можно забыть;
- хоть материал уступает шлакоблокам по прочности, но все равно способен выдерживать сильные механические удары;
- масса изделия совсем легкая, что уменьшает расходы на строительство фундамента и повышается скорость работы.
Однако этот материал не лишен минусов:
- возводя стены из газобетона, следует помнить, что их паропроницаемость очень высокая, и материал будет впитывать влагу, проблема решаемая, если воспользоваться отделкой гаража;
- следующий недостаток — это низкая прочность из-за пористости, если автолюбитель вздумает подвесить полку и уложить на нее тяжелые предметы, то крепежи могут слететь.

Чтобы не произошло проблем с трещинами и деформацией стен, необходимо правильно выполнять работу. А для подвеса гаражной мебели применяются металлические анкера. В крайнем случае можно построить металлический стенд, который не придется закреплять к стене.
Устройство погреба в гараже

Просторный погреб позволит сохранить свежие овощи и консервацию в зимний период. Желательно, чтобы постройка погреба была запланирована до возведения гаража.
Заливка основания

Сначала необходимо подготовить основание для погреба:
- Подготовьте котлован, его габариты выбирают с учётом своих потребностей;
- На дно ямы насыпьте щебень средней фракции слоем 3 см, допустимо его заменить битым кирпичом;
- Сверху этой подушки заливают стяжку толщиной 5-8 см. Позвольте бетону застыть перед продолжением работы;
- На залитой стяжке расстелите рубероид в 2 слоя. Нужно располагать его так, чтобы материал выступал за пределы стен на 15 см.
Потолок и стены погреба

Последовательность создания стен подвала зависит от выбранного для них материала
Кирпичную кладку делают по простой технологии, важно только, чтобы стены располагались вертикально. Также не забывайте хорошо затирать швы кладки
Ещё проще возвести стены подвала их монолитного бетона. Работу выполняют в 3 этапа:
- Из прочных и ровных досок сбейте опалубку;
- Забейте трубы или стальные прутья по периметру основания и к ним привяжите опалубку;
- Смешайте раствор и залейте опалубку.
Для экономии сил и времени желательно приобрести готовые ЖБ плиты и из них сложить стены погреба. Все бетонные элементы нужно обработать смолой и после этого утеплить. Отделку делают по желанию хозяина гаража, удобнее всего использовать для этого вагонку.

Гидроизоляция
Без защиты погреба от влаги у вас появится много проблем. Помещение размещено под землей, по этой причине влагозащита должна быть эффективней, чем у надземных строений.

Для хорошей гидроизоляции стен достаточно просто обработать их внешнюю поверхность горячим битумом. Если на участке слишком много влаги, то стены желательно кроме битума оклеить рубероидом. Сверху него создают водяной замок из хорошо утрамбованной глины. Желательно для этой цели найти жирную глину.
Вентиляция

Хороший воздухообмен в подвале имеет огромное значение. Без него всё, что вы захотите сохранить, испортится очень быстро.
Проще всего сделать естественную вентиляцию – для этого способа не нужно много труда и финансовых затрат. Сначала заготовьте вентиляционные или пластиковые канализационные трубы для создания вытяжного и приточного отверстий.
Под потолком пробейте отверстие, в него выведите вытяжную трубу. Верхний край вытяжки должен размещаться выше кровли гаража на 40-50 см, через неё будет удаляться тёплый и влажный воздух из погреба.
В 7-10 см от поверхности пола делают ещё одно отверстие и в него выводят приточную трубу. Её тоже выводят на улицу в 30 см над поверхностью почвы.
На трубы надевают металлические сетки для защиты от мусора. Кроме того, они перекроют путь в подвал насекомым и грызунам. Для регулирования потока воздуха на вентиляционные отверстия устанавливают створки.
Минус естественной вентиляции в том, что эта конструкция может эффективно работать только в холодный период. Летом на улице и в помещение температура одинакова, и вентиляция функционирует плохо. По этой причине рациональней использовать принудительное проветривание.
В конце постройки подвала потребуется сделать только крышку люка и прочную лестницу. Стеллажи и полки делают как удобно хозяину. Погреб перед использованием нужно продезинфицировать и хорошо просушить. Можно для этого использовать недорогой способ сушки погреба – сожгите в нём 10 таблеток сухого спирта.
Возведение стен

После того как основание затвердеет, начинайте возведение стен из сибита. Для скрепления блоков применяется специальный клей. Он наносится тонким слоем. Можно применять и цементный раствор, но тогда в месте соединения будут образовываться мостики холода. Сибит легко режется ножовкой, проблем с обработкой блоков у вас не будет.
Первый ряд укладываете на слой гидроизоляции, ее сделайте из рубероида. Для кладки применяйте цепной способ — швы верхнего ряда прикрывают места соединения нижнего.
Чтобы кладка получилась более качественной, сначала выложите углы. Между ними натяните бечевку, по ней вы будете выкладываете остальные блоки. Не забывайте во время кладки проверять ее вертикальность — отвесом, горизонтальность — строительным уровнем.
Торцевые стены выкладывайте различной высоты. Делается это для того, чтобы крыша после постройки имела небольшой наклон. Во время дождя вода будет стекать на почву.
Построить гараж из газобетона: сложности и ошибки
Первым недочетом можно назвать покупку некачественного стройматериала, у которого отсутствует маркировка, сертификат и лицензия. Это касается газобетона, цемента, арматуры, клея, крепежа и гидроизоляции. Другие трудности возникают в результате следующих ошибок:
- неправильное составление проекта, не включающего вентиляцию, дренаж, утепление, коммуникации, ориентацию на грунтовые воды;
- несоответствие параметров блоков, низкая плотность газобетона, крупные ячейки;
- несоблюдение технологических норм строительства при рытье котлована, заливке фундамента, возведении стен, укладке крыши;
- проведение работ при температуре ниже + 5 °C;
- отсутствие периода выжидания усадки фундамента 1 год, немедленное строительство стен;
- неправильный выбор типа основания: желательно предпочесть монолит.
При выборе газобетона смотрят на его светло-серый цвет. Желтый оттенок говорит о превышении количества песка в составе, отсутствии должной прочности.
Расчеты и проекты
Зависят от квадратуры постройки. В проекте указывается длина, ширина и высота стен. На основании этих данных делается расчет площади. Газобетон имеет разные размеры, исходя из этого рассчитывается количество штук или кубометров. Чтобы произвести точный расчет стройматериала, нужно не учитывать проемы под окна, двери и ворота. Если планируется построить гараж из газобетона своими руками, желательно заранее сделать проект будущей постройки.
При выполнении проекта коттежда с гаражом учитывается площадь, подвод необходимых коммуникаций — электричество, вентиляция, водоснабжение, а также удобство подъезда, возможность дополнительных пристроек. Если планируется строительство гаража под ключ или с мансардой, тогда лучше обратиться в компании, занимающиеся планировкой построек, где будут произведены точные расчеты необходимых материалов и предложены:
- план кровли;
- элементы проемов;
- экспликация полов;
- архитектурные узлы в конструкциях.
Гараж в цокольном этаже
Цокольным этажом является техническая часть здания, не более чем на половину углубленная в грунт. Над поверхностью земли цокольный этаж возвышается не более чем на два метра. Возведение цокольного этажа обходится не дешево. Зато в него можно поместить все техпомещения, включая гараж.
Проектирование гаража в цоколе усложнено тем, что нужно рассчитать наклонный пандус для заезда, а также надежную систему водоотведения, без которой гараж будет заливать во время выпадения осадков и таяния снега. Кроме того, автомобильное помещение необходимо обеспечить самой надежной системой вентилирования, а стены и перекрытия особенно тщательно защитить от возгорания.
Иногда вместо пандуса сооружают специальные подъемные устройства, которые позволяют избежать наклонного заезда, но требуют применения достаточно сложного и дорогостоящего оборудования.
Преимущества и недостатки материала
У газобетона есть плюсы и минусы, которых не очень много.
Отмечают следующие хорошие стороны:
- технические характеристики: прочность, плотность, устойчивость к морозам, легкость, долговечность;
- легкость монтажа;
- быстрота укладки;
- возможность проведения строительных работ своими руками;
- доступная стоимость;
- материал без проблем распиливается, формуется, коммуникации прокладываются легко;
- стены пожароустойчивы;
- экологичность;
- минимальные усадка и растрескивание;
- стабильность к температурам;
- устойчивость к климатическим факторам, ландшафту;
- возможна любая отделка.
Плохими сторонами считают следующие свойства:
- необходима дополнительная наружная изоляция, которая может быть выполнена по отношению к фундаменту;
- нагрузки должны быть минимальными, поэтому постройки возводятся не более 2 этажей;
- материал легко раскалывается при падении, проявляя хрупкость.
Расчёт
Точные расчёты требуемых материалов позволят дополнительно сберечь деньги благодаря тому, что вы не будете покупать лишний материал.
Расчёты нужно начинать со следующего:
- Иметь готовый проект здания;
- Выяснить реальные габариты гаража (высота и протяжённость несущих стен, размеры проёма ворот);
- Подобрать газобетонные блоки подходящего размера.
Эти показатели отличаются для каждого гаража.
Чтобы разобраться в последовательности подсчёта, желательно начинать с постройки со средними характеристиками: гараж прямоугольной формы с габаритами 4 м шириной и 6 м длиной при высоте 2,4 м.
Для этого строения с учётом параметров блоков лучше использовать материал с размером 20/30/60 см.
Объём необходимого материала
Кто не желает выполнять подробные расчёты для всех стен, может использовать специальную формулу: (L х Н – Sп) х 1,05 х В = V, где в метрах L – показывают длину по периметру стен, Н – высота стен, Sп – площадь всех проемов постройки, 1,05 – особый коэффициент, В – толщина блоков, V – объём газобетонных блоков.
Результат расчётов увеличивают до целого числа. Это подходит как при подсчёте поштучного количества материала, так и при подсчёте объёма блоков для постройки.
Расчёт объёма производят и по простой схеме:
- Рассчитывают объём 1 блока;
- Полученное значение умножают на требуемое для здания число блоков.
Получаем в результате 0,2×0,3×0,6= 0,036 м3 (объём гипсоблока), после этого подсчитываем объём строительного материала на весь гараж габаритами 4х6 м 0,036 ×232=8,352 м3.
Подробный расчёт материала
Для 1 ряда стены длиной 6 метров с учетом размеров блока 20/30/60 см потребуется только 10 штук. Чтобы сложить 1 ряд стены 4 м длиной, потребуется 7 блоков (округление выполняется в большую сторону).
Высота будущей постройки влияет на необходимое количество рядов. Укладывают строительный материал по кругу гаража, добиваясь толщины стены около 20 см. Постройка со стенами высотой 2.4 м потребует выкладки 8 рядов материала. Последней стадией является расчёт общего числа блоков.
Для этого потребуются ранее полученные данные, в результате получается:
- Длинная стена потребует укладки 80 блоков;
- Короткая стена потребует укладки 56 блоков;
- Стена, в которой сделан проём ворот, потребует укладки 16 блоков.
При подсчёте общего числа требуемого материала число блоков для длинной стены множится на 2. Последующий расчёт проводится элементарно — все цифры складывают: 160+56+16=232 блоков. Полученное значение нужно для страховки (возможна случайная поломка нескольких блоков при транспортировке) увеличить до 235 штук. По этому принципу проводят расчёт для гаража любого требуемого для ваших условий размера.
Смотровая яма
Построить удобную смотровую яму несложно, если перед работой приготовить:
- Подготовить яму требуемой глубины и ширины — чаще всего хватает 1.8-2 м длины, 80 см ширины и 1,5 метра глубины;
- На дно насыпать и утрамбовать слой глины, сверху него сделать песчаную подушку 10-15 см толщиной. Полученный слой застелить рулонным рубероидом и сверху него сделать бетонную стяжку примерно 10 см толщиной;
- Стенки ямы выложить из кирпича, желательно использовать материал, подходящий для обустройства сырых помещений (делают кладку толщиной в полкирпича);
- На стенах смотровой ямы битумной мастикой создают гидроизоляционный слой. Перед работой материал нужно подогреть и обработать стены валиком или широкой кистью;
- После создания гидроизоляционного слоя по поверхности стен (при необходимости) проводят электропроводку и штукатурят;
- При желании стены красят масляной краской;
- По верхнему краю ямы уложите сваренную из уголков рамку. К ней приваривают арматуру или толстую проволоку — она нужна для закрепления этого ограждения в бетонную стяжку пола;
- На яму изготовьте и закрепите крышку, она спасет от случайных падений людей. Дополнительно она защитит яму от влаги и предотвратит потерю в яме небольших предметов;
- Сложите из кирпича или сделайте из дерева удобную лестницу.
Характеристики и особенности газобетона
Газобетон – современный строительный материал, получаемый вспениванием водной смеси цемента, песка, извести при помощи алюминиевой пудры. Способы затвердения: автоклавный при температуре до 200 градусов или воздушный.
Пористый материал имеет низкие показатели:
- удельного веса;
- теплопроводности;
- коэффициента сжатия;
- горючести.
В строительстве гаражей используются марки сибита (газобетона, полученного автоклавным способом) от D300 до D800.
По соотношению цены и качества для строительства гаража предпочтительнее газобетон марок D400-D600, имеющих показатели:

- D400:
- удельный вес – 400 килограммов/кубический метр;
- показатель прочности – 2,17 Мегапаскаля;
- коэффициент теплопроводности – 0,096;
- пористость – 75 %.
- D500:
- 500 килограммов/кубический метр;
- 2,5 Мегапаскаля;
- 0,112;
- 55-75 %.
- D600:
- 600 килограммов/кубический метр;
- 3,2 Мегапаскаля;
- 0,141;
- 40-55 %.
Выбор марки газобетона зависит от климатических условий, состояния грунта (залегания грунтовых вод и состава почвы), проекта.

Из каких блоков лучше строить гараж
Лучшим вариантом материала для возведения гаража считаются газо, шлако, пенно и керамзитобетонные блоки. Данные виды стройматериалов выполнены из легкого бетона, поэтому возводить гараж будет просто и быстро.
Подготовительные работы
Подготовительные работы по постройке гаража начинаются с выбора места для установления и очищения территории от мусора. После этого переходят к написанию схем и чертежа.
Проектирование
Предварительно нужно составить схему. На ней указываются точные размеры строения: его высота, ширина, длина. Определяется наличие смотровой ямы, погреба, наличие свободного пространства для мастерской, зоны отдыха, складского помещения. Затем рассчитывают примерный расход материалов.

Расчет материалов
Расчет материалов удобно проводить в интернете при помощи онлайн-калькулятора. При расчете количества блоков учитывают:
- площадь поверхности блоков выбранного вида;
- общую площадь будущего строения;
- площадь гаражных стен с учетом проема для ворот;
- толщину кладки.
Необходимые материалы:
- специальный клей зимний или летний;
- бетон для возведения фундамента;
- песок, цемент;
- деревянные доски или балки для возведения каркаса крыши;
- материалы для гидроизоляции;
- стальные балки для перекрытий;
- отделочные материалы.
Специальные оборудования и инструмент сделают работу легкой и быстрой. Пригодится ножовка, мастерок, шпатель, болгарка, дрель, рубанок, молоток, строительный уровень.

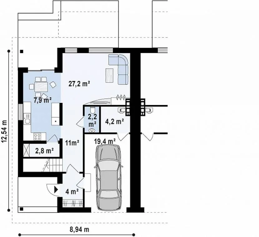
Встроенный гараж
Встроенным называют такой гараж, который располагается на одном фундаменте с домом и является его конструкционной частью. У такого архитектурного решения есть свои достоинства и недостатки. Например, отдельный фундамент под гараж из газобетона может быть менее сложный и дорогостоящий, чем фундамент дома. Поэтому пристройка выходит дешевле. С другой стороны, гараж как часть коттеджа получается более теплым, к нему проще подвести все коммуникации, он изначально входит в планировку первого этажа.
Планировка первого этажа коттеджа с встроенным гаражом Источник stroydom-taldom.ru





































