Основные требования
Основными требованиями к стенду для разборки и сборки двигателей являются универсальность и удобство в эксплуатации
Также важно, сколько уровней свободы предусмотрено в конструкции, какой тоннаж должно выдерживать выбранное оборудование
В данное время в магазинах представлен немалый ассортимент для выбора. Конструкцию можно собрать самостоятельно. Это сэкономит средства и поможет подобрать параметры в соответствии со своими пожеланиями для личного удобства в эксплуатации.
Самодельная установка должна быть прочной и надежной. Все металлические элементы собираются при помощи сварки. В этом случае лучше обратиться за помощью к специалисту. Он сможет качественно сварить все детали воедино. В этом случае можно гарантировать безопасность обслуживающего персонала в процессе выполнения своей деятельности.
Снятие навесного оборудования
Также для удобства выполнения работ автомобиль лучше загнать на смотровую яму. Сразу же после этого снимается «минусовая» клемма с АКБ.
Перед началом работ нужно слить с двигателя масло и жидкость с системы охлаждения.
Чтобы удобнее было производить снятие и отсоединение навесных элементов двигателя, разу же с авто нужно демонтировать капот. Это обеспечит лучший доступ к верхним навесным элементам.
Затем отсоединяются все патрубки и проводка с двигателя – патрубки системы охлаждения, идущие к двигателю от радиатора, патрубки, идущие на печку.
Что касается проводки, то потребуется отсоединение всех соединений, идущих к датчикам:
- давления масла,
- температуры ОЖ,
- электромагнитного клапана карбюратора,
- датчика момента искрообразования,
также понадобиться отсоединение проводов со свечей, стартера, генератора. В дальнейшем придется генератор и вовсе демонтировать.
| 4. Снятие датчика ОЖ | 5. Снятие электромагнитного клапана |
| 8. Отключение проводов высокогонапряжения |
Также понадобится отсоединить:
- топливный патрубок с бензонасоса,
- шланг вакуумного усилителя тормозов,
- корпус воздушного фильтра с карбюратора,
- от самого карбюратора – тросики привода дроссельной и воздушной заслонок.
Вообще снятие двигателя «Ока» должно сопровождаться предварительным демонтажем КПП и привода, но можно этого и не делать.
Поскольку двигатель все равно будет разбираться, при способе извлечения мотора без КПП, потребуется снятие головки блока цилиндра до изъятия мотора из авто.
| 10. Снятие патрубка карбюратора | 11. Снятие шланга вакуума тормозов и подогрева коллектора | 12. Снятие корпуса воздушного фильтра |
| 13. Снятие привода воздушной заслонки | 14. Снятие привода дросселя |
Привод гидравлического гаражного крана
Существует несколько видов гидравлического привода:
- с гидроцилиндрами;
- с гидроцилиндрами и лебедками ручного управления.
Когда оператор повышает уровень давления в цилиндрическом блоке, масляная жидкость воздействует на поршневую часть, выталкивая телескопический шток, в это время происходит подъем стрелового оборудования.
По характеру движения выходного звена гидравлического силового агрегата выделяют следующие виды приводов:
- Вращательного движения. Конструкция такого механизма включает в себя гидродвигатель, оборудованный ведомым звеном с неограниченным вращательным движением.
- Поступательного движения. В этом случае используется гидроцилиндр с возвратно-поступательным движением звена ведомого типа (штока поршневого механизма, плунжера).
- Поворотного движения. Механизм крана оборудован поворотным гидравлическим мотором, ведомое звено которого совершает возвратно-поворотное движение на угол менее 270°.
- Регулируемый. В этом случае скорость звена выходного типа можно отрегулировать при помощи изменения частоты вращения коленчатого вала силового агрегата, который активирует работу насоса высокого давления.
- С замкнутой схемой циркуляции рабочей жидкости. Это значит, что топливо возвращается во всасывающую гидравлическую линию насосного механизма. Такой привод имеет небольшой вес и обеспечивает высокие показатели частоты вращения ротора без опасности попадания воздуха в систему.

Как сделать гидравлический кран гусь своими руками
Уважаемые посетители сайта «Лабуда блог» из представленного материала вы узнаете, как самостоятельно собрать гаражный гидравлический кран гусь, рассмотрим чертежи, пошаговые фото сборки, а так же видео испытания самодельного крана для демонтажа двигателя.
Каждый автомобилист за свою практику эксплуатирования автомобиля наверняка сталкивался с поломками двигателя, а не редко и с его заменой или капитальным ремонтом, но чтоб извлечь ДВС с посадочного места потребуется надежная лебедка или кран. Покупка специального оборудования обойдется как минимум 10 К, а устанавливать лебедку на потолок гаража не у всех есть такая возможность, потому как гаражные перекрытия довольно слабые.
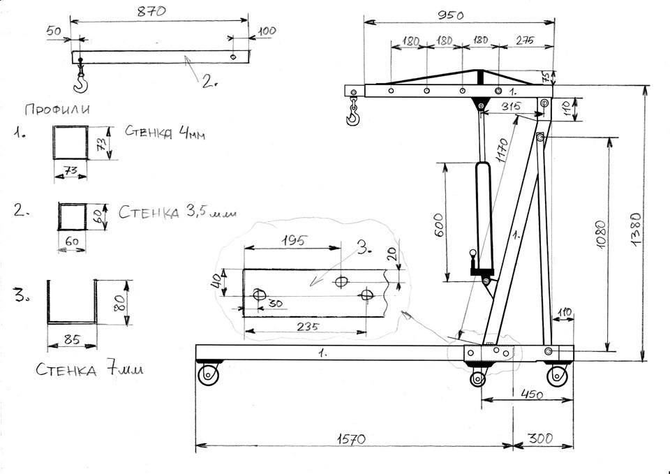
Сделать кран типа «гусь» с системой гидравлического поднятия стрелы вполне можно и самостоятельно, для чего понадобится 7 метров профиля 80х80 мм и 3 мм толщина стенки. Пара труб 89 по 700 мм и 76-900 мм. Домкрат пятитонник 5т, пластины толщиной 8 мм 4 шт. Автор в данном случае купил только колеса 2 шт обычных, 2 шт поворотных, 1 м шпильки М-14 В ходе испытаний самодельный кран спокойно поднимает 250-300 кг, так же перевозились бетонные бордюры общим весом 500 кг, все отлично.
Устройство и принцип действия самодельного гидравлического крана «Гусь» по сути довольно простое, да и само название говорит само за себя) Состоит из опоры (разборная) с колесиками для передвижению по гаражу и подкату под автомобиль, вертикальной стойки с домкратом и непосредственно самой выдвижной стрелы с цепью и крюком.
Высота подъема короткой стрелы в нижней точке 90 см в верхней точке. Длинная стрела, низ 80 см, а в верхней 1800 мм и с выкрученным штоком домкрата низ 1400 мм и верх 2250 мм.
И так, давайте рассмотрим, что конкретно понадобится для сборки гаражного крана?
Материалы
- проф труба 80х80 длинной 7 м
- труба 89 мм по 700 мм 2 шт
- труба 76 длинна 900 мм
- колеса 6 шт, 2 поворотные, 2 обычных и 2 с тормозом
- металлические пластины 8 мм 4 шт
- домкрат 5 т
- цепь и крюк, шпилька М-14 длинна 1000 мм
Инструменты
- сварочный инвертор
- УШМ (болгарка)
- дрель
- набор гаечных ключей
Пошаговая инструкция по сборке гидравлического крана гусь своими руками.



Для начала следует ознакомиться с чертежами и схемами, а потом переходим к сборке.








Чертеж на тетрадном листе составил автор представленного ниже крана.

Сначала изготавливается стыковая часть часть опоры, она же будет разборной.



Приваривается вертикальная стойка с распоркой в нижней опорной плоскости.

Установка и крепление домкрата.





Стрела на полный вылет.

Эксперимент в гараже, подъем скутера)

Вес мопеда 120 кг

Вот такой кран вполне можно сделать своими руками с минимальными затратами. Просто, бюджетно и компактно, потому как кран разборный.

Так же автор снял небольшое видео испытаний.
голоса
Рейтинг статьи
Самодельный гаражный кран. Гусь для снятия двигателя
Подъемник в гараже действительно нужен. Его очень удобно использовать, когда возникает необходимость тщательного технического осмотра, разборки двигателя. Безусловно, можно приобрести готовый кран для гаража. Производители в широком спектре представляют электромеханические, гидравлические подъемные механизмы.
Но опытные гаражники знают точно: самодельный гаражный кран будет ближе к сердцу. И есть реальная возможность изготовить подъемный механизм своими собственными руками, с минимальными затратами. Давайте рассмотрим на конкретном примере.
Видео: гидравлический гаражный кран
Стоит посмотреть видео, на котором подробно рассматривается принцип устройства гидравлического гаражного крана.
Здесь много полезной информации. И можно представить себе наглядно данное подъемное устройство.
Делаем гаражный кран
Гаражники рассказывают, что кран в гараж можно сделать своими руками. При этом устройство получается вполне надежным и безопасным, отличается долговечностью. Данный факт уже проверен на личном опыте автолюбителей. Узнаем, как сделать кран для гаража, который принято еще называть «гусем».
Вот каким опытом делится эксперт, успешно изготовивший подъемник.
В первую очередь автолюбитель отмечает, что именно разборный самодельный гаражный кран просто необходим, когда нужно сэкономить пространство. Конечно, это особенно актуально в небольших гаражных помещениях, а также там, где стоит несколько машин, мотоциклов. Тут без такого крана просто не обойтись.
Отлично, если удастся достать по демократичной цене металлический профиль. Тогда затраты на изготовление вообще будут минимальными. Вот какие материалы понадобятся.
- Металлический профиль с параметрами 80 на 80 мм, всего 7 метров. Толщина стенки составляла 3 мм.
- Две профилированные трубы.
- Домкрат на 5 тонн.
- 4 металлические пластины с толщиной 8 мм.
- Шпильки М 14, 100 мм.
- Крюк от буксировочной стропы.
Безусловно, очень важно точно убедиться в безопасности такого самодельного гаражного крана. Автолюбители отмечают, что они долго проверяли свои устройства, подвергали их сложным испытаниям. И становится очевидно, что подъемный механизм надежный
Например, гаражник подвесил на подъемник мопед и сел на него: в итоге получился общий вес примерно 250 кг. Выдерживать такие нагрузки вполне достаточно, чтобы потом использовать кран для разборки двигателя
И становится очевидно, что подъемный механизм надежный. Например, гаражник подвесил на подъемник мопед и сел на него: в итоге получился общий вес примерно 250 кг. Выдерживать такие нагрузки вполне достаточно, чтобы потом использовать кран для разборки двигателя.
Рассмотрим фото, которые сделаны при изготовлении крана для гаража.
Простой мощный гидравлический кран

Вам приходится снимать с автомобилей двигатели или транспортировать тяжелые вещи? Тогда вам просто жизненно необходимо иметь такую вещь как небольшой кран! И это не штука, такие краны есть и их можно сделать своими руками! Конструкцию одного из них мы разберем в этой статье. С помощью такого крана вы сможете легко и просто снять двигатель с автомобиля и поставить его на стол для капитального ремонта. Согласитесь, заманчиво звучит!

Сделать такой кран не сложно, это даже очень просто. Вся конструкция сваривается из стальных квадратных труб. Что касается рабочего органа, то в качестве него используется гидравлический домкрат. То есть вам не понадобиться ни электроэнергии, ничего подобного, поднимаем тяжести, просто работая рычагом на домкрате. Что касается технических характеристик, то вообще домкрат способен поднимать тяжесть до 4 тонн, но при этом учитываем, что мы поднимаем тяжести через стрелу, то есть на бОльшую высоту. Эксперимент показал, что таким краном можно поднять мотоцикл с коляской, который весит более 300 кг. При такой нагрузке конструкция немного деформировалась, но потом автор ее укрепил и теперь 300 кг для крана не предел, а больше ему и не нужно! Кстати, домкрат можно использовать и обычный, гидравлический не обязателен. Рассмотрим более подробно, как же сделать такой кран!
Список материалов:
— стальные трубы квадратного сечения; — гидравлический домкрат; — листовая сталь; — гайки, болты и пр.; — краска; — крюк и трос; — колесики.
Список инструментов:
— болгарка; — сварочный аппарат; — дрель.
Процесс изготовления крана:
Шаг первый. Рама
Рама сваривается из стальных труб квадратного сечения. Само собой стойка и основа должны быть максимально крепкими. Чтобы можно было менять угол стрелы, сверлим в стойке и стреле отверстия и ввариваем трубы на их места в качестве втулок. Такая конструкция создает надежное соединение. Соединяется все это стальным стержнем или болтом с гайкой. Основа представляет собой крестовину. Стойку укрепляем отрезками труб.
К основе прикручиваем колесики, чтобы кран можно было транспортировать с грузом. Колеса такие устанавливают на мусорные баки (но лучше не крадите).
Шаг второй. Домкрат
Шаг третий. Стрела

После покраски кран готов к испытаниям. У автора он без труда поднимает мотоцикл весом 318 кг. В завершении автор еще немного укрепил стойку и стрелу. Так что теперь прочности крана вполне должно хватить на поднятие груза весом 400-500 кг. Вот и все, проект окончен, надеюсь, он вам понравился. Удачи и творческих вдохновений, если надумаете повторить. Не забывайте делиться своими наработками и самоделками с нами!
Становитесь автором сайта, публикуйте собственные статьи, описания самоделок с оплатой за текст. Подробнее здесь.
Как сделать подъемный кран своими руками
Высота современных домов становиться все больше, а вот тяжесть бетонных блоков при этом не уменьшается. По этой причине, даже для бытовых целей, неплохо бы было сделать подъемный кран своими руками. Данная конструкция, естественно, не будет обладать большой грузоподъемностью, примерно 200 кг. Конечно, наверно, это не предел, но лучше не экспериментировать. Данный кран является целиком сборной конструкцией, которая весит от 200 до 300 кг, поэтому самостоятельная сборка такого крана не вызовет затруднений. Кроме того, данный кран очень удобен в транспортировке, он вполне умещается в китайском пикапе.
Грузовую лебедку можно выполнить из червячного редуктора с электрическим приводом на 600 Вт, ну а стреловую лебедку можно выполнить из ручного привода, организованного посредством того же самого редуктора.
Как основанием для выносных опор на винтовых упорах можно воспользоваться строительными опорами. Для изготовления барабанов под лебедки можно использовать ротора от электродвигателей, причем их следует подобрать в соответствии с размерами.
Передвижная платформа должна быть оборудована колесиками, ранее стоявшими на тележке транспортера. Это дает возможность для легкого перемещения крана с одной позиции на другую, все, что нужно сделать – это осуществить снятие выносных опор.
Длительность снятия и установки указанных опор займет примерно пять минут. По этой причине конструкцию можно считать достаточно мобильной. Однако, не обошлось и без недостатка, чтобы переместить кран нужно опустить стрелу до нулевого уровня, в противном случае, кран может перевернуться, по причине нарушенного равновесия.
Подъемный кран своими руками обладает пятиметровой стрелой, сделанной из трубы Ø 7,5 см, и квадратного профиля у самого основания, сделанного из пары уголков. Кроме этого, кран обладает порталом, чтобы осуществлять поднятие стрелы, и поворотным механизмом, в основу которого легла ступица от грузового автомобиля.
Как противовесом, можно пользоваться станиной от нерабочего станка в комплекте с четырьмя гусеничными траками, или прочсто кирпичами. Тормоза в составе лебедки не предусматривается, поскольку, необходимость его использования – это большой вопрос.
Поворотный механизм так же не обладает тормозом, поскольку кран не предназначен для работы с высокими скоростями ,а следовательно – инерционные силы слишком малы.
Самый тонкий металл, который используется для данного крана — это примерно 3 мм. Выносная опора и основание, по большей части, выполнены из прямоугольной трубы, с размерами 85 на 50 и 85 на 55. Для изготовления основания башни используется швеллер на 200. Крюковая обойма оборудована мощным подшипником, что значит, что вращение крюка не зависит от полиспаста. В то же время при вращении исключается перехлест либо скручивание трока.
Длина упорных винтов составляет 40 см. Это является причиной того, что установка крана может быть выполнена даже на крайне неровной поверхности.
Теперь на счет колес, тут не все так гладко. Речь идет о маленьком недочете. Суть проблемы заключается в том, что при использовании крана с описанными колесами на рыхлом грунте во время передвижения колеса зарываются в землю, а если почва твердая – то никаких проблем нет. Описанную конструкцию можно считать одноразовой, это значит, что после того как вы выполнили необходимые работы, её следует разбирать на металл или до следующего раза. Именно по этой причине такая конструкция обладает незначительной грузоподъемностью, и не отличается прочностью.
Кран такого типа изготавливается примерно за три дня, при учете того, что подготавливаются все необходимые составляющие. Изготовление редукторов было выполнено из первых попавшихся под руку предметов. В передаточных редукторах заложены следующие передаточные соотношения: 1 к 30 и 1 к 35.
Подключение трехфазного двигателя выполняется в однофазную сеть. Он обладает выходными параметрами на валу — 600 Вт, и конденсаторами емкостью 80 мкф. Вес всех установок, если не учитывать противовесы составит приблизительно 250 кг, при сравнительно невысокой себестоимости. Основная масса используемых компонентов позаимствована из других конструкций, придется позаботиться только о покупке тросов и подшипников.
После того как вы сделается подъемный кран своими руками, вы легко сможете поднимать 150 -200 кг, что вполне внушительно, если учитывать что он не предназначен для промышленных маштабов.
Кран гаражный гидравлический своими руками
На первом этапе
потребуется сварить раму из стальных труб прямоугольного сечения. Она должна быть очень крепкой, чтобы выдерживать серьезные нагрузки. Если требуется, чтобы в кране менялся угол стрелы, то в стойке и стреле высверливаются отверстия, а на их место в качестве втулок устанавливаются трубки. Конструкция соединяется стальным стержнем и простым болтом с гайкой. В основание рамы ляжет устойчивая крестовина, укрепленная отрезками труб или металлическими пластинами.
К нижней части рамы приделываются колеса с тормозами, чтобы при помощи крана можно было перевозить двигатель или другой груз. Колеса подобного типа устанавливают на современные пластиковые контейнеры для мусора, стоящие на улице.
Второй этап
– установка домкрата. Для этого готовятся специальные упоры на стойке и стреле. Они должны быть подвижными, тогда угол крана будет меняться во время работы. Домкрат устанавливается под углом от основания рамы к стреле, он будет принимать на себя основную нагрузку при подъеме тяжестей.
Третий этап
включает установку стрелы, состоящей из отрезка трубы меньшего диаметра, с несколькими отверстиями. Она вставляется внутрь верхней части рамы, соединенной домкратом с основанием крана, и выдвигается на необходимую длину. Затем стрела крепится к основной трубе болтом и гайкой, а на ее конец устанавливается цепь и мощный крюк.
После установки стрелы остается только покрасить кран и приступить к испытаниям. В идеале он должен свободно поднимать до 400-500 кг. При необходимости стойка и стрела укрепляются сильнее, чтобы выдерживать большие нагрузки.
Уважаемые посетители сайта «Лабуда блог
» из представленного материала вы узнаете, как самостоятельно собрать гаражный гидравлический кран гусь, рассмотрим чертежи, пошаговые фото сборки, а так же видео испытания самодельного крана для демонтажа двигателя.
Каждый автомобилист за свою практику эксплуатирования автомобиля наверняка сталкивался с поломками двигателя, а не редко и с его заменой или капитальным ремонтом, но чтоб извлечь ДВС с посадочного места потребуется надежная лебедка или кран. Покупка специального оборудования обойдется как минимум 10 К, а устанавливать лебедку на потолок гаража не у всех есть такая возможность, потому как гаражные перекрытия довольно слабые.
Сделать кран типа «гусь» с системой гидравлического поднятия стрелы вполне можно и самостоятельно, для чего понадобится 7 метров профиля 80х80 мм и 3 мм толщина стенки. Пара труб 89 по 700 мм и 76-900 мм. Домкрат пятитонник 5т, пластины толщиной 8 мм 4 шт. Автор в данном случае купил только колеса 2 шт обычных, 2 шт поворотных, 1 м шпильки М-14 В ходе испытаний самодельный кран спокойно поднимает 250-300 кг, так же перевозились бетонные бордюры общим весом 500 кг, все отлично.
Устройство и принцип действия
самодельного гидравлического крана «Гусь» по сути довольно простое, да и само название говорит само за себя) Состоит из опоры (разборная) с колесиками для передвижению по гаражу и подкату под автомобиль, вертикальной стойки с домкратом и непосредственно самой выдвижной стрелы с цепью и крюком.
Высота подъема короткой стрелы в нижней точке 90 см в верхней точке. Длинная стрела, низ 80 см, а в верхней 1800 мм и с выкрученным штоком домкрата низ 1400 мм и верх 2250 мм.
И так, давайте рассмотрим, что конкретно понадобится для сборки гаражного крана?
Материалы
- проф труба 80х80 длинной 7 м
- труба 89 мм по 700 мм 2 шт
- труба 76 длинна 900 мм
- колеса 6 шт, 2 поворотные, 2 обычных и 2 с тормозом
- металлические пластины 8 мм 4 шт
- домкрат 5 т
- цепь и крюк, шпилька М-14 длинна 1000 мм
Инструменты
- сварочный инвертор
- УШМ (болгарка)
- дрель
- набор гаечных ключей
Пошаговая инструкция по сборке гидравлического крана гусь своими руками.
Для начала следует ознакомиться с чертежами и схемами, а потом переходим к сборке.
Сначала изготавливается стыковая часть часть опоры, она же будет разборной.
Приваривается вертикальная стойка с распоркой в нижней опорной плоскости.
Установка и крепление домкрата.
Стрела на полный вылет.
Эксперимент в гараже, подъем скутера)
Вес мопеда 120 кг
Вот такой кран вполне можно сделать своими руками с минимальными затратами. Просто, бюджетно и компактно, потому как кран разборный.
Спасибо за внимание!
Обновлено: 04.03.2020
103583
Инструкция по сборке и чертежи
Конструкция получила название «гусь» из-за своей Г-образной формы. Механизм отличается удобством в работе, ведь благодаря ему можно подвести стрелу к моторному отсеку. Это снижает затраты труда на обвязку мотора, из-за чего срок выполнения ремонтных работ сокращается.

Конструкция «гуся» простая. Механизм состоит из разборный опоры, оборудованной колесиками. С их помощью его легко передвигать с места на место, подкатывать под автомобиль.
Устройство для гаража имеет вертикальную стойку, на ней устанавливают домкрат. «Гусь» имеет выдвижную стрелу, которая оборудована цепью с крюком. При активации домкрата стрела идет вверх, поднимая груз.
Гидравлический кран чаще всего используют для подъема двигателя. Устройство можно изготовить по готовым чертежам, но чаще всего используется созданная от руки схема крана, своими руками ее начертят даже новички.

Сначала изготавливают разборную часть поры, она является стыковой. После этого приваривают вертикальную стойку. В нижней части обязательно устанавливают распорку. После этого переходят к установке домкрата, он должен быть надежно закреплен. Стрелу делают на полный вылет, она нужна для снятия двигателя. Все части конструкции сваривают. В результате получается надежное, но маневренное устройство.
Когда изделие будет готово, обязательно проводят испытания.
Для этого подвешивают груз, который должен быть на 20% тяжелее того, который нужно поднимать. Если механизм выдерживает нагрузку, его можно использовать в работе. Кран-гусь разборный, поэтому он не займет много места в гараже.
Особенности конструкции и принцип работы
Гидравлический кран выполняется из прочного металла и характеризуется устойчивой конструкцией. Главный принцип строения механизма: устойчивая опора при небольшом собственном весе. Это помогает с легкостью поднимать грузы до трех тонн, но максимально – на два метра над землей.
Гаражный кран применяют для:
- снятия двигателя;
- подъема балок, мостов;
- перемещения габаритных узлов.
Кран содержит гидравлический привод и работает по системе сообщающихся сосудов. Метод позволяет сделать подъем плавным.
Стационарные
Стационарный кран устанавливается в больших автосервисах и надежно крепится к монолитному фундаменту. Механизм обладает стрелой с поворотной системой и оснащен ручным приводом. Позволяет проводить работы лишь с одним автомобилем неотрывно.
Важно заранее рассчитать место установки, так как демонтировать конструкцию без потерь не удастся. Неотъемлемый плюс стационарного крана – большая грузоподъемность
Ее обеспечивает монолитная опора, создающая жесткость системы
Неотъемлемый плюс стационарного крана – большая грузоподъемность. Ее обеспечивает монолитная опора, создающая жесткость системы.
Переносные
Подкатной гидравлический кран обладает колесиками на основании. Опорой же выступают нижние металлические балки, от этого теряются показания грузоподъемности. Лучше выбирать кран с массивной треугольной опорой. По конструкции они подразделяются:
- на литые цельные опоры с ограниченным вылетом стрелы, но хорошими показателями грузоподъемности;
- на телескопические или складные – обладают увеличенным вылетом стрелы, но снижают грузоподъемность в разы.
Важно! Складные агрегаты нуждаются в четком следовании инструкции по поднятию разрешенного груза. Стрела не выдерживает и, при несоблюдении дозволенных норм, срывается
Таль для гаража: изготовление привода
Таль для подъема грузов можно изготовить самостоятельно. За его основу берут тормозной рычаг, который раньше стоял на грузовом автомобиле. В машине такой рычаг способствует подводу колодок и уменьшению зазора между ними.
Чтобы сделать таль своими руками, нужно обладать навыками электросварочных и токарных работ.
Вал разжимного кулака обрезают до нужного размера при помощи токарного станка. Вал оснащают двумя шайбами. Вся конструкция называется намоточным барабаном. Одну шайбу оснащают изнутри кольцом так, чтобы оно не мешало свободному прохождению троса.
Как делать привод:
Перед изготовлением подъемника необходимо подготовить чертежи. Готовое приспособление можно использовать, чтобы поднять и спустить центробежный насос и другие виды грузов. В качестве альтернативы этому виду крана можно сделать гидравлический кран «Гусь».
Для подъема двигателя и кузова в гараже понадобится специальный механизм. Стоят они дорого, поэтому сэкономить можно на самостоятельном изготовлении. Для этого необходимо предварительно ознакомиться с видами подъемных механизмов и их функциональностью. После выбора вида механизма нужно заняться составлением чертежей и плана сборки конструкции. Для самостоятельного изготовления лучше обладать навыками токарных работ и навыками в сборке механизмов.
Источник
Кран для снятия двигателя своими руками, чертежи
Гаражный кран-гусь своими руками может быть сделан из подручных материалов, которые имеются в гараже. Это устройство требуется, когда необходимо отремонтировать автомобиль, например, извлечь из машины двигатель внутреннего сгорания.
Необходимые материалы
Кран делают из профиля длиной 7 м. Лучше всего использовать материал, толщина стенок которого составляет 7 мм. Механизм должен быть прочным, поэтому стоит выбирать профиль с сечением 80×80 мм.
Для изготовления грузоподъемного устройства также потребуется несколько труб. Подходят изделия по 700 мм, сечение которых составляет от 76 до 99 мм.
Для сооружения крана потребуется домкрат, можно взять с ВАЗа. Лучше всего использовать устройство, которое рассчитано на подъем грузов весом до 5 т. Для сооружения механизма необходимы 4 пластины толщиной 8 мм.
Для самостоятельной сборки крана нужно иметь следующий набор инструментов:
- дрель;
- инвертор для сварки;
- гаечные ключи;
- болгарку.
Сборка механизма не отличается сложностью, поэтому ее легко выполнить своими силами. Козловой кран или любое другое устройство после сборки можно покрасить.
Инструкция по сборке и чертежи
Конструкция получила название «гусь» из-за своей Г-образной формы. Механизм отличается удобством в работе, ведь благодаря ему можно подвести стрелу к моторному отсеку. Это снижает затраты труда на обвязку мотора, из-за чего срок выполнения ремонтных работ сокращается.
Конструкция «гуся» простая. Механизм состоит из разборный опоры, оборудованной колесиками. С их помощью его легко передвигать с места на место, подкатывать под автомобиль.
Устройство для гаража имеет вертикальную стойку, на ней устанавливают домкрат. «Гусь» имеет выдвижную стрелу, которая оборудована цепью с крюком. При активации домкрата стрела идет вверх, поднимая груз.
Сначала изготавливают разборную часть поры, она является стыковой. После этого приваривают вертикальную стойку. В нижней части обязательно устанавливают распорку.
После этого переходят к установке домкрата, он должен быть надежно закреплен. Стрелу делают на полный вылет, она нужна для снятия двигателя. Все части конструкции сваривают.
В результате получается надежное, но маневренное устройство.
Когда изделие будет готово, обязательно проводят испытания.
Для этого подвешивают груз, который должен быть на 20% тяжелее того, который нужно поднимать. Если механизм выдерживает нагрузку, его можно использовать в работе. Кран-гусь разборный, поэтому он не займет много места в гараже.
Как пользоваться
Телескопическая стрела механизма может быть установлена в нескольких положениях. Гусь маневренный, им может управлять 1 человек. Оборудование поднимает достаточно тяжелые грузы за счет установленного домкрата, никаких дополнительных аксессуаров и устройств для перемещения тяжестей не нужно.
Для того чтобы поднять двигатель автомобиля, нужно открыть капот, подкатить кран. Его устанавливают так, чтобы «ноги» размещались под машиной, а цепь с крюком нависала над мотором.
После того как ремонт машины будет завершен, мотор опускают на место, снимают крюк. Кран откатывают от автомобиля. Если есть необходимость, его можно разобрать.




































