Погонный метр, это сколько?
Какие же товары измеряют погонными метрами? Погонный метр, это единица измерения длины таких товаров:
- для которых при продаже значения ширины, высоты или диаметра сечения не имеют значения;
- которые при использовании, требуют стыковки между собой его фрагментов;
- предназначенных для ограждений, например, металлических заборов или заборов из другого материала.
Такие товары в магазинах бывают в виде рулонов, бобин, плит и т. п. Например:
- в виде рулонов бывают:
- ковровые покрытия,
- асбестовое полотно,
- линолеум,
- ткани,
- искусственные газонные покрытия,
- полиэтиленовая пленка
- и др.;
- в виде бобин бывают:
- кабели,
- провода,
- нитки,
- и др.;
- в виде плит/отрезов бывают:
- облицовочные камни,
- ламинат,
- фанера,
- материал для мебели,
- и др.
- в виде длинных «палок «бывают:
- плинтусы,
- карнизы,
- доски для настила пола,
- рейки,
- и др.
Чтобы при покупке необходимого вам товара, измеряемого в п. м, не ошибиться в правильности определения количества этого товара, надо обязательно точно знать параметры помещения, изделия, материала, для которого вы приобретаете этот товар.
Как же правильно рассчитать количество товара? Ниже приведены примеры расчетов.
Расчет при покупке коврового покрытия
Допустим, вы хотите купить ковровое покрытие для комнаты площадью 20 м 2 (длиной 5 м и шириной 4 м)
Вам важно, чтобы по длине комната была покрыта полностью, что касается ширины, то допустимо, что по краям комнаты могут быть места не застеленные. Вы приходите в магазин и перед вами большой выбор ковровых покрытий, как вам правильно сориентироваться в ситуации?
Особенностью выбора коврового покрытия, является то, что оно должно быть цельным куском, без стыковки, поэтому критерием выбора должна быть его ширина.
Таким образом, вы должны купить 5 м того покрытия, ширина которого вас больше устроит.
Расчет для покупки линолеума
Вы идете покупать линолеум для кухни шириной 2,5 м и длиной 5 м. В магазине вы можете увидеть рулоны разной ширины: 1,5 м, 2,0 м и 2,5 м. Сколько линолеума вы должны купить? Вы должны выбрать линолеум шириной 2,5 метра (т. е. по ширине кухни) и купить его 5 п. м. и одним куском застелить кухонный пол. Но это тот идеальный случай, когда ширина линолеума совпадает с шириной кухни.
А, что делать, если кухня шириной 3 метра? В этом случае одним куском пол не застелешь. Надо думать, как состыковать два куска. Значит, для этого надо взять 10 п. м. от рулона шириной 1,5 м (или просите продавца отрезать два куска по 5 п. м., чтобы потом не резать самому). В этом случае стык будет проходить ровно посередине кухни. Линолеум можно класть не только в его длину, но и по ширине, таким образом, варьировать место шва и количество линолеума в зависимости от площади покрываемой поверхности.
Расчет для покупки тканей
Что касается тканей, то тут тоже есть свои нюансы, связанные с погонным метражом.
Допустим, вам надо купить тюль для занавеси на окно, спаренное с дверью, выходящей на балкон. Расчет будет такой: ширина рулона – это будет длина вашей занавеси, а для ширине занавеси мы должны взять двойную ширину окна (с учетом на фалды). Таким образом, при ширине окна с дверью в 3 м, вам надо купить 6 п. м. занавеси.
Расчет для покупки полиэтиленовой пленки для оборудования теплицы
Для того, чтобы купить полиэтиленовую пленку для оборудования теплицы, надо нарисовать на бумаге в правильном масштабе каждый фрагмент теплицы, который должен быть обтянут пленкой. Затем посчитать все их параметры: длины и ширины, сложить и рассчитать необходимое количество пленки. Не забывайте дополнительное количество на закрепление пленки к фрагментам теплицы
При покупке полиэтиленовой пленки надо обращать внимание на то, что пленка в рулоне, как правило, бывает двойная, значит, при покупке необходимая цифра должна быть поделена на 2
Расчет для покупки плинтусов и карнизов
Для покупки плинтусов или карнизов, надо сделать замер периметра пола и потолка с учетом на выступы балок, ниш и т. д. Суммировав все размеры можно определить сколько п. м. плинтусов или карнизов вам надо.
Расчет для покупки электропровода или кабеля
Допустим, вам надо посчитать сколько п. м. провода вам понадобится для прокладки электропроводки в дачном коттедже. Тут существует два способа:
- по готовой электрической схеме;
- по площади коттеджа.
Первый вариант более грамотный, так как в этом случае вы будете точно знать кабель какого сечения, к каким точкам и для каких целей будет подведен. Исходя из этого, можно точно подсчитать, сколько п. м. какого кабеля и, с каким сечением вам будет нужно. При этом надо помнить о запасе на монтаж. Обычно, к суммарному количеству требуемых п. м, надо прибавить не менее 2 м.
Второй вариант очень прост: надо определить общую площадь дома и умножить ее на два и прибавить на запас 2 м.
Кривизна стен и влажность
Прежде чем выбирать плинтус, нужно проверить, насколько стены в доме или квартире ровные. Почему? Всё просто. Некоторые рейки изготовлены из негнущихся материалов. Например, деревянный «багет» может треснуть, если зафиксировать его по краям, а в центре будет выступ.
Хорошо, если владелец помещения сам делал ремонт или выполнял строительные работы. Он может быть уверен в точности геометрических параметров. Но подрядчики при сдаче объекта могут слукавить, и кривизна останется незамеченной.
Поэтому нужно взять инструмент под названием прави́ло. Лучше не брать рейку короче 2 метров. Последовательность действий такая:
Приложить инструмент к стене на уровне плинтуса.
Один край прижать к углу, второй соединить с поверхностью.
Пройти весь периметр комнаты или помещения в целом.
Металлическая планка сразу покажет «косые» участки. Если их много, нужно задуматься о выборе гибкого плинтуса. Ещё один важный фактор — уровень влажности в помещении. Продемонстрируем это наглядно в таблице:
| Вид плинтуса | Ровные стены | Кривые стены | Влажность |
| Пластиковый | + | + | + |
| Деревянный | + | — | — |
| Из МДФ | + | — | + |
| Дюрополимерный | + | — | + |
| Металлический | + | — | + |
| Пробковый | + | + | + |
Как рассчитать погонный метр кухни
Здравствуйте друзья!
Предлагаю сегодня разобраться с погонным метром, рассмотреть, как можно его рассчитать, и что самое главное — как им можно пользоваться, для чего он вообще нужен.
Но для начала, давайте определимся, зачем он нужен?
А нужен он для случая, когда нужно быстро определиться с приблизительной стоимостью (или себестоимостью) кухонного гарнитура.
То есть, зная габаритные размеры гарнитура (обычно, его ширину), и материалы, из которого он сделан (обычно, это столешница и фасады) можно «с ходу» определить его приблизительную себестоимость. А, добавив к себестоимости свою «маржу» за труд – и общую, приблизительную стоимость.
В арсенале мебельщика могут быть несколько значений этой величины для кухонных гарнитуров, например:
- Для кухни, фасады которой выполнены из пленочного МДФ, столешница постформинг, наполнение фурнитурой – стандартное, ДСП – 16мм
- Для кухни с крашеными фасадами, столешница – искусственный камень, фурнитура «Блюм», наполнение фурнитурой – стандартное, ДСП – 18мм
- Для кухни с деревянными фасадами… ну, и так далее
Это – как один из вариантов, хотя, и не очень точный. Дело в том, что в зависимости от размеров кухонного гарнитура, на него может пойти, например, одна столешница постформинг, а, может пойти и две.
По этому, погонный метр лучше высчитывать без учета столешницы, а ее стоимость просто плюсовать к полученной при расчета цифре.
В этом случае, отсутствует вероятность ошибиться на один лист постформинга (столешницы).
Ну а стоимость этой величины каждый рассчитывает для себя индивидуально (учитывая себестоимость закупочных материалов и фурнитуры, ведь для всех они — разные).
Для его расчета, лучше взять несколько готовых проектов кухонных гарнитуров со средним наполнением. Что здесь подразумевается под наполнением:
Наполнение кухни – это наличие элементов, содержащих различную фурнитуру. Наглядный пример – модули с выдвижными ящиками. Стоимость такого модуля может в два раза превышать стоимость такого же модуля с обычными распашными фасадами.
Так вот, при расчете среднего значения погонного метра, нужно брать проекты, в которых присутствуют как те, так и другие модули в умеренном количестве (например, в кухонном гарнитуре, выполненном в стиле «хай-тек», большинство нижних модулей содержит выдвижные ящики, а большинство верхних модулей – фасады с подъемниками, и себестоимость такой кухни, разумеется, будет в разы выше себестоимости кухни, сделанной в обычном, классическом стиле.).
Более того, чтобы получить более-менее точное значение погонного метра кухонного гарнитура, сделанного из…, при его расчете, нужно, чтобы размеры верха и низа рассчитываемых кухонь совпадали (чтобы не было такого варианта, что, низ кухни прямой, и имеет габарит 2 метра, а верх – угловой, и имеет размер 3 метра).
Сам расчет довольно прост: Складываем себестоимости всех кухонных гарнитуров, выполненных в одном ценовом диапазоне, и, полученную сумму делим на количество кухонных гарнитуров, участвующих в расчете.
И, уже имея значение этой величины, можно, примерно, высчитать стоимость любой кухни. Даже кухни, у которой размеры верхней и нижней базы – разные.
Например, в случае, когда размер верха и низа разные – нужно понимать, что стоимость погонного метра низа, составляет, примерно, 60-70 процентов общей стоимости всего погонного метра кухни (опять-таки, у всех это значение может быть разное, поэтому, его нужно так же рассчитывать индивидуально).
Вот такой есть несложный инструмент, которым довольно легко пользоваться (хотя, значения, полученные при его помощи, будут, естественно, приблизительные, но, все же, приближенные к реальности).
На этом все, до встречи.
Сколько погонных метров тонне арматуры?
Рассчитывая количество арматуры для фундамента в погонных метрах. Мера количества арматуры – тонна. Поэтому нужно погонный метр перевести в тонны и уже тогда смотреть цену. А вот сколько в тонне содержится метров арматуры зависит от ее диаметра: чем тоньше арматуры, тем больше метров в тонне.
Допустим, Вам нужны пиломатериалы. В одном квадратном метре может быть разное количество погонных метров для разных материалов (доска обрезная, доска для пола, вагонка). Всё потому, что количество квадратных метров зависит еще от ширины материала.
Например:
Доска обрезная имеет параметры: 40х120, то есть ее толщина составляет 40 мм, а ширина – 120 мм. Рассчитывать необходимо следующим образом:
1 квадратный метр доски обрезной делим на 120 мм (ширина изделия), получаем значение – 8,33. Это и есть количество погонных метров.
1 кв.м./0,120 м = 8,33 п.м.
Подводные камни таких измерений
Однако при таком способе расчетов можно сильно ошибиться. Нередко клиенты, польстившись на невысокую цену, названную за погонный метр, бывают неприятно удивлены, когда менеджер мебельного салона проведет
Дело в том, что в этом случае изначально называется слишком приблизительная стоимость, исчисляемая из применения стандартной модификации мебели и самых дешевых материалов. В эту сумму никогда не входит стоимость стекол, столешниц, встроенной подсветки и даже обычной фурнитуры. Все эти опции подбираются индивидуально с учетом пожеланий клиента и значительно увеличивают окончательную сумму.

Таким образом, погонный метр в мебельной промышленности применяется только для определения самой низкой (стартовой) стоимости продукции, а покупателю лишь дает возможность ориентироваться на общий уровень ценовой политики фирмы.
В чем различия метровых понятий
С помощью погонной величины измеряют то, что можно свернуть в рулон. Она подразумевает только длину изделия, а ширина ее при этом не учитывается. С ее помощью облегчается расчет, уменьшается стоимость продукции
Ведь часто ширина строительного материала является стандартной величиной, и иногда нет смысла обращать на нее внимание
Эта величина также состоит из 100 см
В самом слове «погонный» прямо указывает на то, что во внимание принимается только длина. Ведь «гнать» — значит, разворачивать в одном направлении, строго по прямой линии. Можно представить, что сам материал, свернутый в рулон, является просто прямой линией
Можно представить, что сам материал, свернутый в рулон, является просто прямой линией.
На упаковках рулонов многих стройматериалов можно видеть ценник, где написано, сколько стоит линейная величина. Но есть и те, которые имеют цену за определенную площадь. В данном случае как раз учитывается не только длина, но уже и ширина изделия. Площадь, равную 1 м 2 , имеет квадратный участок с размерами каждой стороны – 1 м.
Чтобы рассчитать площадь прямоугольного участка или сырья для строительства, нужно длину умножить на ширину. Полученный результат — это и есть площадь, выраженная в м 2 . Линейный и квадратный метры имеют только одно сходство. Это длина 100 см. Во всем остальном они отличаются.
Линейным способом нельзя измерить площадь, он предназначен только для измерения длины. Но его можно легко перевести в квадратный метр, если известна ширина изделия, которую для расчета нужно перемножить с метрами.
Совет 1: Как вычислить погонный метр
Понятие «погонный метр » используется для облегчения расчетов количества продукции, например, линолеума или ткани для штор. При этом, принимается только длина изделия. Слово «погонный» означает, что ширина изделия стандартная для той или иной продукции. Это значительно упрощает проведение расчетов, а также отчасти удешевляет стоимость. Таким образом, погонный метр — это не длина изготовленной продукции, а величина продукции.
Измерьте длину и ширину комнаты, для которой вы хотите приобрети, например, напольное покрытие. Для измерения используйте рулетку или сантиметр овую ленту. Запишите на листочек полученные данные. Они пригодятся вам в магазине.
Обратившись в магазин, проконсультируйтесь у продавца-консультанта, какой ширины есть нужное вам напольное покрытие. Допустим, ваш коридор два метр а в ширину и 5 в длину. Вы можете выбрать материал шириной 2 метр а и купить 5 погонных метр ов, либо шириной 4 метр а, приобретя 2,5 погонных метр а. Во втором случае вам придется самостоятельно разрезать купленное напольное покрытие вдоль.
Перепроверьте расчеты до того, как вам отрежут нужное количество погонных метр ов. Помните, что вернуть в магазин (торговую точку) продукцию, которая продается на метр аж, невозможно. Данные об этом содержатся в Законе «О защите прав потребителей». Для упрощения расчетов можно перевести длину и ширину комнаты в квадратные метр ы. Аналогично поступите и с метр ажом материала, который вы покупаете. Быть может, это облегчит ваши расчеты.
Знайте, чем большее ширина изделия, тем дороже будет стоить погонный метр . Теперь умножьте цену за один погонный метр на длину полотна, которую вам отрезали. Это и будет сумма к оплате. Оплатите купленный товар на кассе.
Вернувшись домой, еще раз перепроверьте свои измерения. Не забудьте купить необходимое для стыковки краев, если это потребуется.
Понятие и отличительные черты погонного метра
Погонный метр имеет совершенно отличное от квадратного метра . Он измеряет длину, а квадратный метр — площадь. Эти две единицы не взаимосвязаны и перевести метры в квадратные нельзя без знания ширины изделия. Например, обрез ткани длиной 2 погонных метра и шириной — 3 метра будет иметь площадь 2*3=6 квадратных метров.
Многие люди задаются вопросом, сколько сантиметров содержится в погонных . Ответ достаточно прост — погонный метр ничем не отличается от обычного метра по длине, т.е. в нем 100 см. Но это своего рода длина без ширины. Для определения погонных метров необходимо обладать информацией исключительно о длине.
Погонными метрами измеряется длина изделия в том случае, когда его ширина (либо высота, ) не имеет значения, например, рулон ткани, ковровое покрытие или . В других случаях пользуются квадратными метрами, например, при измерении количества керамической плитки, ламината и пр.
Погонными метрами часто измеряют рулонные строительные материалы. Например, применительно к линолеуму цена часто устанавливается в погонных метрах. Это значит, что независимо от его ширины (она бывает 3 м, 4 м), покупатель будет платить только за необходимую ему длину. Дело в том, что в стоимость уже первоначально заложена ширина изделия. Но бывает, что стоимость линолеума указана в квадратных метрах. Тогда получается, чтобы купить 10 погонных метров линолеума шириной 4 м необходимо заплатить за 40 кв.м.
Для простоты расчетов в погонных метрах указывается стоимость мебели, например кухни. Она обозначает, что независимо от количества полочек и дверц покупатель заплатит только за длину. При этом речь идет о стандартном исполнении и стандартной фурнитуре.
Часто погонными метрами пользуются и строители при определении стоимости работ. Например, за укладку плитки на ступени, монтаж плинтуса или затирку швов в керамической плитке цена услуг зависит только от длины, а не от площади выполнения работ. Но большинство строительных работ рассчитывается на основании площади помещения (квадратных метров).
При осуществлении ремонта квартиры перед владельцем часто возникает потребность в расчете площади комнат для последующей закупки отделочного материала. Если допустить ошибку в расчетах, можно потратить лишние деньги на строительный материал или же не докупить его вовсе.
Вам понадобится
Калькулятор, рулетка, блокнот и ручка.
Инструкция
Замер помещений с окнами. Также как и в предыдущем случае, вам необходимо замерить длину каждой стены и сложить все показатели. После этого умножьте полученную сумму на высоту помещения. Отдельно замерив площадь дверных и окон, сложите показатели в общую сумму, которую необходимо вычесть из полученной всего помещения.
Разовый замер помещения. Наиболее простой способ замера помещения – воспользоваться длинной рулеткой. Начните замер от одного угла и продолжайте отмерять по пери у до тех пор, пока вновь не вернетесь к этому же углу. Полученные результаты умножаются на высоту помещения, после чего, из общей суммы, также вычитается площадь оконных и дверных проемов.При покупке отделочных материалов старайтесь покупать два-три метра на запас.
Видео по теме
Чтобы не было просчетов при приобретении строительных материалов и для грамотного и точного составления сметы, в которую вносятся все будущие расходы по планируемому ремонту, нужно знать, как правильно рассчитать размер помещения.
Вам понадобится
- — блокнот или тетрадь;
- — ручка;
- — электронный дальномер или рулетка.
Практически каждый человек обязательно слышал выражение «погонный метр». Для многих это определение остается достаточно сложным, так как совершенно не понятно, в чем отличие кв. м. от обыкновенного. О чем же идет разговор?
Один погонный метр равняется обычной длине одного метра. Он применяется для измерения товаров, имеющих определенную ширину, к примеру, линолеум. Сделать расчет стоимость товара, беря за основу погонные метры, гораздо проще, чем рассчитать стоимость квадратного.
К примеру, нужно в магазине приобрести ковровое покрытие, шириной 2,5 и определенной длиной. Сделать расчет 1 м2, такого отрезка не очень удобно. Для этого необходимо определить площадь товара. Затем поделить ее на квадраты. Другими словами надо выполнить непростые математические расчеты.
Намного проще поводить вычисления на основе погонного. Чтобы определить стоимость товара нужно будет перемножить длину отрезка ковра на количество метров.
Существует достаточно большой перечень товаров, в которых расчет стоимости ведется по количеству погонных метров. К ним относятся.
- Ткани.
- Линолеум.
- Ковролин.
- Отделочная пленка.
- Рулонный полиэтилен.
- Электрические провода.
- Всевозможные виды труб.
- Различные ограждения.
- Заборы.
Чем погонный метр отличается от квадратного
В квадратных метрах измеряют площадь какой-либо поверхности или материала. Чтобы рассчитать площадь материала, необходимо его длину, выраженную в метрах, умножить на ширину, также в метрах.

Перерасчет из погонных метров в квадратные может потребоваться в том случае, если по проекту измерения ведутся в погонных метрах, а цена материала указана за квадратные.
Пример расчета
По проекту необходимо купить 5,5 погонных метра материала шириной 240 см, цена материала выражена в квадратных метрах и составляет 300 руб. за м 2 . Необходимо рассчитать общую стоимость материала.
- Первым делом необходимо перевести сантиметры в метры. Для этого все значения в сантиметрах нужно разделить на 100. Ширина материала составит 240 / 100 = 2,4 м
. - Длину и ширину материала в метрах нужно перемножить. Площадь материала составит 5,5 х 2,4 = 13,2 квадратных метр
а. - Полученную площадь материала нужно умножить на цену материала: 13,2 х 300 = 3960 руб.
В квадратных метрах может измеряться не только материал, но и стоимость каких-либо отделочных работ – чистки, покраски, перетяжки мебели. В этом случае измеряют ширину и длину каждой из отделываемых поверхностей, перемножают их, а полученные результаты складывают.
Погонный метр. Это сколько?
Данной мерой длины измеряется то, что скручено в рулон: линолеум, профнастил, ткань, ковролин. Так же таким понятием оперируют для измерения количества материала, необходимого в строительстве или же означает объём работ, который предстоит проделать. Например, погонный метр кухни, трубы, плинтуса, забора, плитки, фундамента и так далее.
Допустим, комната, в которой необходимо постелить линолеум, 4,0 метра в ширину и 7,0 метров в длину. В магазине для начала выберите необходимый рисунок, цвет и материал
Обязательно обратите внимание на ширину рулона. Она может быть 1,5 метра, 2,0 метра и 2,5 метра

Ширина нашей комнаты 5,5 метра, поэтому придётся класть несколько кусков. Это может быть два куска по 2,0 (2,0м*2=4,0м) или один кусок 2,5 и один кусок 1,5 (2,5м+1,5м=4,0м). Можете выбрать любой из этих вариантов, главное чтобы длина куска соответствовала длине комнаты (7,0 метра).
Следовательно, чтобы застелить Вашу комнату линолеумом шириной в 2,0 метра, потребуется купить 14 погонных метров (7*2=14). Если остановили выбор на втором варианте, тогда погонных метров потребуется так же 14 – 7 метров шириной 2,5 и 6 метров шириной 1,5 (7+7=14).
Погонный метр забора и профнастила сколько это?
Кроме вышеперечисленных материалов, погонными метрами рассчитываются все материалы, которые требуют состыковки между собой. К таким относятся, например, трубы, карнизы и, конечно же, заборы из профнастила.
Чаще всего для заборов используют металлопрофиль. Он устойчив практически ко всем погодным условиям (снег, дождь, ветер и так далее). Сверху покрывается специальным полимерным материалом, который не выгорает и устойчив к перепадам температур. Такие заборы смогут служить Вам до 50 лет.
Что касается профнастила, то он лучше подойдёт для комбинированных заборов из кирпича, камня или с элементами ковки. Такие заборы смотрятся очень эффектно. При этом можно выбрать любую цветовую гамму или оттенок. Можно так же выбрать профлисты с любым рисунком.
Приблизительный подсчёт затрат на возведение забора из профлиста
Естественно, что каждый стремиться сэкономить. Поэтому перед тем как устанавливать забор знать, как правильно рассчитать количество необходимого материала и актуальными ценами на него.
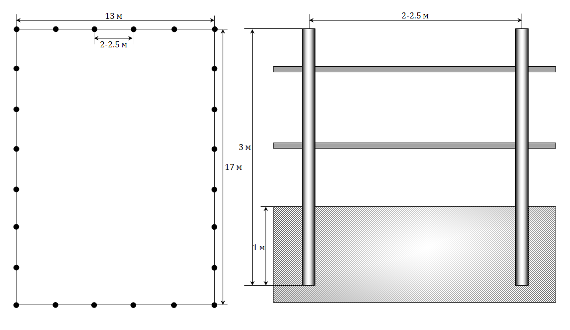
Обязательно при расчёте общей стоимости из металлопрофиля необходимо учесть длину и высоту ограждения и его тип (наличие фундамента, комбинированный или нет). Можно поставить забор и без фундамента под опорные столбики, но с ним надёжнее.
Допустим, Вы решили установить ограждение 2 метра в высоту и 100 погонных метров в длину. Плюс к этому потребуются опорные столбы, зацементированные в ямках и калитка. Возьмём хороший профиль, например, С20 с полимерным покрытием. По стандартам, при общей ширине листа в 1150 мм, его рабочая ширина составляет 1100 мм. Округляем до метра для удобства.
Значит при длине забора в 100 метров, площадь профнастила будет 200 метров квадратных (100 листов). Опорные столбы необходимо ставить через каждые два метра. И того 51 штука с высотой 2,8 метра (с учётом заглубления на 1 метр в бетон).
В дополнение ко всему потребуется по 2 лага на пролёт – 200 метров погонных. Саморезов – 8 штук на метр квадратный. И, конечно же, доставка так же оплачивается отдельно.
Погонный метр кухни это сколько и как рассчитать
Если Вы решили купить кухонную мебель, учтите, что она тоже продаётся в погонных метрах. Здесь всё не так сложно как кажется на первый взгляд. Необходимо будет только сложить длину всех стен, где будет установлена кухня, а потом только выбрать вариант по вкусу.
В общую стоимость погонного метра Вашей кухни будут входить различные полки, фасады, ящики, фурнитура. Это помимо стандартной ширины.
Чтобы уж точно не ошибиться, лучше нарисовать план комнаты или участка с указанными размерами. Удачи Вам в расчётах и хорошем выборе!
Часто задаваемые вопросы
Погонное значение для ограждений

Эта величина традиционного ограждения, полотном которого является профильный лист или дерево. Она будет равна простому метру, если высота одного листа также будет равна 1 м
Также как при расчете количества рулонного материала не учитывается ширина, поскольку она является стандартной, при возведении ограды не принимается во внимание и высота. Она также должна быть постоянной
Но следует иметь в виду, что высота забора не всегда совпадает с размерами листов стройматериала.
Если, например, сооружается изгородь метром в вышину, и используются при этом профлисты высотой 1 м, то линейная величина ограждения будет равна метру стройматериала. Но если забор будет выше, а профлисты или доски будут применяться те же, их уже потребуется больше. Поэтому перед покупкой сырья следует все правильно подсчитать.



































