Утепление
Наибольшие проблемы вызывается утепление. С одной стороны, гараж каким-то особым образом утеплять не обязательно. Он имеет смежную с домом стену, поэтому температура в нем всегда будет выше, чем на улице. Здесь намного важнее позаботиться о вентиляции.
Намного сложнее утеплить мансарду
Важно полностью предупредить появление сквозняков, проникновение холодного ветра. Также необходимо позаботиться о том, чтобы гидроизоляция находилась на должном уровне. Проникновение в помещение осадков отнюдь не будет способствовать благоприятному микроклимату
Проникновение в помещение осадков отнюдь не будет способствовать благоприятному микроклимату.
Пенопласт
Материал имеет легкий вес. Он продается в удобных плитах, за счет чего его без проблем можно транспортировать и укладывать. Пенопласт обладает отличными теплоизоляционными характеристиками. При прочих достоинствах, он имеет низкую цену, благодаря чему у вас получится значительно сэкономить на утеплении.
Недостатком является то, что материал имеет свойство со временем крошиться. Также он легко воспламеняется, из-за чего его нельзя использовать вблизи пожароопасных предметов (печей, газовых плит и т. д. ).
ДВП
Древесноволокнистые плиты являются оптимальным выбором в случаях, когда мансарда располагается сверху банного помещения или сауны. Работа с ДВП не вызывает особых сложностей. Здесь может справиться даже новичок. К тому же, материал обладает отличными теплоизоляционными свойствами и практически полностью скрадывает посторонние шумы. ДВП относится к разряду материалов эконом-класса.
Однако есть один недостаток, перечеркивающий все прочие достоинства материала. Со временем ДВП начинает выделять в атмосферу токсины, вредные для человека и животных. Поэтому применять утепление из ДВП в рамках жилых помещений нельзя. Им можно лишь обрабатывать побочные комнаты, например, ванную или кухню.
Стекловата
Этот дешевый материал также часто применяется для утепления мансард. Стекловата имеет больше минусов, чем плюсов. Работать с ней тяжело, поскольку в воздух выделяется опасная для здоровья стеклянная пыль, вдыхание которой чревато повреждением дыхательных путей. Требуется применение специализированных средств защиты, которые оберегают не только органы дыхания, но и кожу.
Преимущества материала заключаются в высокой степени теплоизоляции и устойчивости к горению.
Минеральная вата
Современный эквивалент стекловаты имеет все те же преимущества, но лишен недостатков более традиционного материала.
К тому же, данный вариант имеет дополнительные достоинства:
- Устойчивость к процессам жизнедеятельности микроорганизмов. Они просто здесь не появляются.
- Устойчивость в повышенной влажности при отличной паропроницаемости. Это значит, что минвата способствует испарению конденсата, который по ряду причин может скапливаться в мансарде.
- Пониженные теплопроводящие свойства. Материал препятствует полноценной циркуляции тепла между помещением и улицей. Зимой он сохраняет в доме тепло, а летом не дает горячему воздуху с улицы проникнуть в комнату.
- Экологичность. В отличие от стекловаты, минеральная вата полностью безопасна для человека.
Встроенный или пристроенный
Гараж может быть конструкционной частью здания или пристройкой к нему. Встроенные гаражи обычно проектируются в сложных по архитектуре коттеджах. Они являются неотъемлемой частью дома и поэтому их проще обустроить. Но пристроенный, стоящий под отдельной кровлей более безопасен для жилых помещений.
Гараж встроенный в конструкцию домаИсточник ruza-family-park.ru
Гараж-пристройку не обязательно возводить сразу. Его можно пристроить к уже готовому зданию в любой удобный момент. Так, если будущие домовладельцы имеют ограниченный бюджет, они могут построить сначала только дом и оставить место рядом с ним для пристройки. На этом месте можно временно установить навес.
Пристроенный к дому гаражИсточник yandex.ru
Интерьер дома с мансардой
При планировании интерьера мансарды есть только одно существенное ограничение – это ее конфигурация с учетом скатов и расположения окон. Если помещение небольшое, выбирай минималистичные стили – они смотрятся легче и воздушнее. Если у тебя большая и просторная мансарда с высоким потолком – креативно и интересно выглядит лофт с открытыми балками и коммуникациями.
Для интерьеров домов с мансардой словно созданы все стили, тяготеющие к натуральным материалам и светлой гамме. С деревянными стенами, потолочными балками и необычными окнами идеально гармонирует и прованс, и скандинавский стиль. А если ты ищешь ту самую тонкую грань между практичным функционализмом и классической эстетикой – в твоем распоряжении весь современный стиль (контемпорари).
Решение простых важных вопросов
С последним пунктом проще всего, санузел ставят на том этаже, где больше проводишь времени. Проще всего поставить на нижнем этаже, меньше проблем с разводкой канализации и больше свободного пространства на мансарде. Обойтись без туалета не получится, если внутри помещения гаража вы проводите подряд больше 10-12 часов, если в проекте свободное место, сделайте две точки, на первом этаже и мансарде.
С удобствами неразрывно связана главная головная боль проектов с мансардой, а именно — обустройство лестницы на второй этаж. Если мансарда для вас — всего лишь склад, то правильным будет сделать откидную лестницу пожарного типа, как на фото.
Для гаражей, у которых площадь мансарды достигает 30 и более метров, нужно делать лестницу винтом или в виде двух маршей змейкой. Такой проект лестницы можно использовать в любых вариантах гаражей, даже самых малогабаритных.
Если мансарда по проекту будет использоваться в качестве полноценного жилья, то есть смысл сделать наружную лестницу. Возможно, это не украшает постройку, но такое решение намного удобнее и практичнее внутренних переходов. Это безопаснее, с точки зрения пожарных, и не нужно вдыхать выхлопные газы.
Помещение бокса для автомобилей и пространство мансарды должны соединяться герметично закрываемой дверью, кроме того, на каждом этаже по проекту должна быть своя система принудительной вентиляции.
Интересные проекты гаража с мансардой
Для обустройства полноценного жилого варианта мансарды лучше всего подойдет проект гаража на два автомобиля с полезной площадью второго этажа 70 м2. Здание высотой почти в 8 м строится из пенобетона на ленточном фундаменте. Кровля из металлочерепицы настилается на наслонные стропила из бруса. Для утепления используется минволокно, перекрытия изготавливаются из пустотелых бетонных плит.
Особенностью проекта является наличие внешней лестницы для второго этажа мансарды. Вход в жилое помещение расположен на втором этаже, за счет использования ломаной крыши входная дверь находится на одном уровне с мансардой. В проекте есть крыльцо с навесом, опирающимся на стойки из бруса. По признанию специалистов, подобное оформление входа в мансарду является одним из самых удачных, как с точки зрения дизайна, так и технологии строительства.
Площадь мансарды разбивается на две спальни, гостиную, санузел, ванную и кухню. По сути, на втором этаже гаража по проекту хватает места, как для полноценного одноэтажного дома.
Наличие отдельного входа позволяет использовать первый этаж не только в роли гаража, но и для ремонта или обслуживания автомобилей на коммерческой основе.
Если предыдущий проект показался вам чересчур затратным, можно построить гараж меньших размеров в стиле деревенского дома. Такое решение больше подходит для гаража на загородном участке или даче.
По проекту коробка гаража строится из газобетона или пеноблоков на свайном или ленточном фундаменте. Перекрытие изготавливается из армированного бетона, что позволяет усилить верхний пояс коробки из пеноблоков. Благодаря использованию двух полувальм в конструкции крыши, здание смотрится более выразительно. Кроме того, такое решение позволяет снизить нагрузку на верхнюю часть фронтонов крыши. Используемый для стропил брус 100х100 мм, мощная обрешетка и большой угол наклона скатов в 38о дает возможность использовать керамическую либо цементно-песчаную черепицу.
По проекту размеры первого этажа 7х7м, общей площадью в 40 квадратов, позволяют поставить две легковые машины и прицеп. Жилое помещение мансарды занимает 19м2, что в принципе достаточно для дачного или загородного варианта гаража. Этажи соединяются полувинтовой лестницей из бруса и сосновой рейки. По проекту здание не отапливается, поэтому внутри помещения нет санузла или котельной.
Разумеется, конструкции гаражей с мансардой не ограничиваются только огромными постройками, размером в полноценный жилой дом. При желании можно найти проект и перестроить уже имеющийся гараж 5х6 м в постройку с мансардным этажом.
В этом случае размеры мансарды уменьшатся до 12 м2, при высоте потолков 180 см. Из-за этого скаты крыши приходится делать относительно покатыми, с углом наклона до 27о. Здание получилось очень компактным и удобным, но небольшие размеры мансардного помещения вряд ли позволят использовать его в качестве жилого. Скорее это будет склад или место хранения ненужных вещей.
Если коробка гаража первоначально возведена из кирпича, то мансарду можно достроить каркасно-щитовым способом или дополнительными рядами пеноблоков, стянутыми арматурой. Нижний этаж утепляют ЭППС, и всю постройку зашивают сайдинговыми панелями. Крышу и потолочное перекрытие изготавливают из бруса и плит ОСБ.
Как выглядит на фото многофункциональный гараж с мансардой: типовые решения

Один из путей универсализации гаражной постройки – возведение второго мансардного этажа. Такой проект не только грамотно распоряжается отнюдь не дешевой и, к тому же, далеко не всегда огромной площадью земельного участка, а и способствует увеличению полезной площади сооружения в целом. Рассматривая гараж с мансардой на фото, легко подметить особенность, объединяющую строительные проекты в данном направлении – наличие беспрепятственного доступа на второй этаж в обход гаражных ворот. Лестница может быть сооружена:
- снаружи;
- в специально отделенном от парковочной площадки тамбуре;
- непосредственно в гаражном помещении с дублированным доступом (через дверь).
При строительстве столь универсальных объектов, прежде всего, принимаются во внимание две вещи:
- количество автомобилей;
- цель использования мансардного этажа.
Анализируя различные фотоснимки и результаты распланировки второго этажа под серьезное жилое помещение, нетрудно заметить, что даже над одноместным гаражом можно воссоздать вполне просторную однокомнатную квартиру с необходимыми эксплуатационными помещениями. Нередко обеспеченные люди, нанимающие охрану и прочий обслуживающий персонал, предоставляют им в распоряжение именно такие автономные жилые коммуникации.
Впрочем, выполненный из пеноблоков или прочих современных строительных материалов гараж с мансардой нередко рассматривается как исключительно нежилое сооружение, когда второй этаж создан под:
- складское помещение или кладовку;
- мастерскую;
- спортивную комнату;
- временный рабочий кабинет.
Естественно при таком положении дел автоматически исключается необходимость в обустройстве отопительной, водопроводной и канализационной систем и организации эффективной вентиляции.
Зачастую конструкция верхнего этажа интерпретируется в эксклюзивное русло за счет примитивных архитектурных решений, например, обустройства балкона и террасы. Смоделировать будущий гараж с мансардой легче всего по уже существующим фото готовых проектов, на которых зачастую просматриваются нестандартные дизайнерские решения.
Проекты домов с гаражом
При выборе проекта дома с гаражом и мансардой следует принять во внимание его этажность. Если строение будет иметь два этажа, следует подумать о назначении комнат, которые будут находиться непосредственно над гаражом. Одноэтажные постройки больше подходят для маленьких семей
Одноэтажные постройки больше подходят для маленьких семей.
Проекты одноэтажных конструкций
Одноэтажные дома с гаражом представляют собой удобный вариант при небольшом количестве проживающих. Преимущества таких зданий неоспоримы:
- высокая экономичность;
- вход в гараж может осуществляться как с уличного пространства, так и напрямую;
- гараж и дом отапливаются общей системой;
- помещение для хранения автомобиля может использоваться как тренажерный зал.
В одноэтажных сооружениях все проемы и пролеты следует рассчитывать очень точно. Это позволяет создавать архитектуру дома более комфортабельной. Чтобы проект максимально отвечал потребностям хозяев, следует просмотреть фото готовых сооружений.
Проекты двухэтажных построек с гаражом
Дома с двумя этажами являются довольно популярными. Такие сооружения представляют собой комфортные жилища. Если сравнивать с одноэтажными домами, подобные проекты отличаются большей площадью. В них можно оптимально зонировать имеющееся пространство.
При постройке жилища в большом городе, постройка двухэтажного сооружения станет оптимальным решением. Здесь может разместиться даже большая семья. Обычно размеры таких построек равны до 15 м в ширину, и до 25 м в длину. Площадь таких домов равна 140-500 кв. м. Для небольшого домика эти показатели являются очень неплохими.
Возводятся двухэтажные дома с гаражом и мансардой из таких материалов:
- блоки газобетона;
- железобетонные плиты – одно из самых надежных решений при устройстве домов с двумя и более этажами;
- битумная черепица;
- монолитные плиты;
- природный камень.
Здесь все зависит от желаний хозяев дома.
Проект дома с подвалом
Обычно наличие цокольного этажа подразумевает создание безукоризненной конструкции основания. Это условие является важнейшим фактором безопасности дома. Такие здания наиболее устойчивы. Именно поэтому цокольный гараж представляет собой отличное решение.
Часто фундамент и стены основательных подвальных помещений возводятся из бетона. Иногда основание изготавливают из кирпича. Если грунт под основанием довольно слаб, нужно все блоки установить на железобетонную подушку. Последняя, в свою очередь, укладывается на песчаное основание.
Если грунт сухой, для создания стен можно выбирать изделия с пустотами внутри. Они способны обеспечить оптимальную прочность стен подвала.
Серьезные ошибки
Довольно часто при возведении дома с цокольным этажом владельцы земельных участков допускают серьезную ошибку, негативно влияющую на прочность всего сооружения. Нередко хозяева решают сэкономить на гидроизоляции цокольного этажа. Однако в условиях постоянной сырости будут разрушаться не только стены и другие конструктивные элементы подвала, но и предметы, которые в нем находятся.
Если излишне заботиться о прочности дома, сооружение цокольного этажа обойдется довольно дорого. Иногда его цена сопоставима со стоимостью постройки всех остальных элементов дома. Это финансово невыгодно.
Советы по строительству
Проект дома с цокольным этажом имеет некоторые особенности, которые должны быть учтены еще во время планирования. Профессиональные строители рекомендуют соблюдать такие требования:
Перед постройкой дома следует оценить качество грунта. Для этой цели вырывают траншею, в которой специалисты анализируют срез почвы.
Перед постройкой дома следует выкопать метровый котлован и заполнить его толстой стяжкой. По периметру конструкции укладывают блоки фундамента
Стоит обратить внимание на максимальную плотность стыковки бетонных элементов. Не стоит забывать про отверстия для труб коммуникаций.
Блоки основания скрепляются цементом.
Над цоколем следует установить армированный пояс
Для этой цели нужно связать арматуру всей постройки.
Стены сооружают из кирпичей
Не стоит забывать про отверстия для труб коммуникаций.
Блоки основания скрепляются цементом.
Над цоколем следует установить армированный пояс. Для этой цели нужно связать арматуру всей постройки.
Стены сооружают из кирпичей
Их тщательно гидроизолируют.
К дому нужно подвести коммуникации, а также провести монтаж окон и дверей.
Стоит ознакомиться с фото готовых домов с цокольным этажом.
Выбираем конфигурацию крыши
В доме с мансардой конструкция крыши имеет большое влияние, ведь именно от нее зависит, насколько большой станет полезная жилая площадь. Так, наиболее комфортно находиться в мансарде с высотой стен от 2,5 метров – это оптимальный вариант.
Если потолки сделать ниже – неудобно передвигаться, выше – увеличатся расходы при строительстве и последующем отоплении жилья.
Есть несколько вариантов обустройства кровли:
- остановившись на двускатной кровле, застройщик получит в полное распоряжение более 70% полезной площади мансарды;
- крыша с ломаной конструкцией обеспечивает уже намного больше площади – в распоряжении уже более 90%;
- для комфортного использования мансарды высоту крыши стоит приподнять примерно на полтора метра.
Почему отдают предпочтение гаражам с мансардой
Ключевое достоинство гаражей с мансардным этажом – наличие «бонусной» жилплощади, которую можно использовать по своему усмотрению. Помимо хранения автомобилей, такое сооружение может использоваться в качестве гардеробной, тренажерного зала, музыкальной студии, кухни или бильярдной. Мансарду можно отвести под игровую комнату для ребенка, художественную студию, временный склад, библиотеку или кладовую для хранения сезонных предметов и оборудования.
Для молодых семей надстройка над гаражом может стать удачной альтернативой проживанию с родственниками. Обустроив жилую комнату над гаражом, молодожены решат наболевший квартирный вопрос и получат возможность свить уютное семейное гнездышко.
Проект гаража с жилой мансардой привлекателен еще и тем, что строительство такого объекта обойдется не намного дороже стандартного гаража, в то время как возведение отдельно стоящего сооружения требует дополнительной площади и финансовых вложений.
Гараж с мансардой – это способ сэкономить на площади участка и на финансахИсточник assz.ru
Варианты проектов для создания больших построек
Сегодня существует множество вариаций готовых проектов домов и коттеджей с мансардой и гаражом. Все они отличаются габаритами и внутренним наполнением. Существуют варианты одноэтажных и двухэтажных строений, помещений с цокольным этажом, винным хранилищем или баней.

Для строения дома с мансардой и гаражом можно воспользоваться готовым проектом
Дома с площадью более 100 м² намного проще обустроить. Фото планов строений наглядно отображают множество различных вариаций, в том числе это проекты гаража и мансарды на 2 машины. Мансардный этаж будет более вместительным благодаря большой свободной площади. Здесь существует возможность организовать несколько жилых комнат, обустроить спортзал, поставить бильярдный стол или создать просторную гостиную. Гараж, который может иметь разные габариты, несложно пристроить с любой стороны сооружения. При этом в обязательном порядке следует учитывать эстетику дома, чтобы пристройка не искажала его пропорции.
Возведение габаритного строения можно осуществлять по проекту одноэтажного дома с гаражом на 2 машины. Особенно это актуально, когда в семье насчитывается два автомобиля. Над гаражом можно организовать зимний сад, домашний кинотеатр или игровую, что наглядно отображено на фото гаража на 2 машины с мансардой.
Можно придать строению стильность и оригинальность, заменив стандартные стены мансардного этажа стеклянными. Также владельцы двух и более автомобилей по достоинству оценят проект дома с гаражом под домом, расположенным на первом этаже. Жилые комнаты в этом случае находятся в мансардном помещении, которое планируется исходя из личных предпочтений хозяев дома. Различные варианты можно увидеть на фото проектов гаража с жилой мансардой.
Вариации проектов небольших домов: фото примеры
Проекты домов с мансардой до 100 м² требуют более внимательного подхода при обустройстве жилого помещения и гаража. Если дом вытянутый и узкий, гараж пристраивают с торца. В случае квадратного строения пристройку можно выполнить с любой стороны. Еще одним вариантом, который часто предусматривается в проекте дома 6 на 8 с мансардой, является оборудование цокольного этажа, где можно обустроить гараж. Такое решение позволит получить компактное, вместительное, многофункциональное и стильное строение на небольшой территории. По соседству с гаражом можно обустроить парную или баню.

Проектирование небольшого дома с мансардой требует более внимательного подхода
Мансарда в этом случае будет иметь меньшую площадь. Здесь возможно расположение всего одной комнаты
Поэтому, чтобы получить максимум свободного пространства, особое внимание следует уделить конструкции крыши, выбрав ломаный вариант. Для дачной версии мансардное помещение может быть использовано в качестве хозяйственного помещения. В этом случае рекомендуется обустроить двускатную крышу, вследствие чего удастся существенно сэкономить на строительстве
В этом случае рекомендуется обустроить двускатную крышу, вследствие чего удастся существенно сэкономить на строительстве.
При создании дизайна домов часто применяются дополнительные архитектурные элементы, благодаря которым создается не только презентабельный и стильный внешний вид строения, но и расширяется свободное пространство внутри дома. Одним из таких элементов является эркер. Фото домов с гаражом и мансардой наглядно демонстрируют множество вариаций его расположения.
Также можно использовать колонны, эксклюзивные окна. Дополнительное обустройство террасы или веранды облагородит строение, сделав его более уютным. Для комфортного летнего отдыха отнюдь нелишним будет создание балкона.

Если дом имеет прямоугольную форму, то гараж лучше расположить с торца
Внимания заслуживает проект дома с мансардой (фото это наглядно отображают), где гараж покрывает плоская крыша, которая является основанием террасы. Эстетичность и элегантность конструкции достигается умелым комбинированием отделочных материалов. Для большой семьи придется по душе просторный коттедж с мансардой, увенчанной ломаной крышей, что обеспечивает максимальное целевое использование мансардного этажа.
Прежде чем определиться с конкретным вариантом, следует подробно изучить различные проекты, где в плане дома с мансардой и гаражом представлены всевозможные вариации внутренней планировки помещений. Опытные специалисты адаптируют выбранную разработку под конкретный регион и внесут необходимые изменения, основываясь на пожеланиях заказчика.
Проекты домов с мансардой и гаражом: отличительные черты коттеджей
Дом с мансардой – фото наглядно отображают различные варианты – является наиболее рациональным решением для небольшого участка, позволяющим увеличить жилую площадь без сокращения земельных угодий. Наличие личного транспорта становится причиной еще одного популярного приема – строительства дома с гаражом.

Проект дома с мансардой и гаражом для одного автомобиля
Проекты коттеджей с гаражом и мансардой обладают рядом преимуществ:
- благодаря совмещению двух функциональных зон удается снизить затраты, связанные с разработкой проекта и выполнением строительных работ;
- смежное расположение жилой зоны и гаража создает комфортную обстановку в последнем, что приводит к снижению затрат, связанных с отоплением гаража;
- создание внутреннего прохода позволяет беспрепятственно перемещаться из комнаты в гараж, не выходя на улицу, что особенно удобно в период ненастья;
- создание мансардного помещения обеспечивает увеличение жилой площади, что особенно актуально для одноэтажных построек;
- компактное многофункциональное сооружение позволяет существенно сэкономить свободную площадь земельного участка;
- строительство мансарды обойдется значительно дешевле, чем возведение второго этажа;
- мансардный этаж позволяет дополнительно утеплить жилое помещение, избавив его от сквозняков;
- пристроенный гараж будет стоить намного меньше, чем отдельно стоящий элемент;
- строения имеют стильный и презентабельный внешний вид, заметно выделяющий их на фоне других построек.
Какой материал выбрать для строительства дома с гаражом
Для ответа на этот вопрос надо определится: гараж будет теплый или холодный?
- Теплый гараж – материал и пирог стены точно такой же, как и остальной дом. Это может быть кирпич с утеплением, пеноблок или газобетон. Возможны другие варианты стеновых блоков. Температура в гараже ниже, чем в жилых помещениях, поэтому утепление можно сделать меньше, но оно должно быть достаточным для избегания лишних теплопотерь.
- Холодный гараж – в этом случае подходит любой материал, имеющий достаточную несущую способность – блок, пустотелый или полнотелый кирпич, шлакоблок или из пеноблоков и пр. материалы. Утепляется только тепловой контур дома, со стороны гаража тоже.
Выбранные вами решения обязательно должны быть заложены в проект, проработаны соответствующие узлы.
Предлагаем вам дополнительно ознакомиться с другими проектами домов разной этажности с гаражом:
- Проекты одноэтажных домов с гаражом;
- Проекты двухэтажных домов с гаражом;
- Проекты трехэтажных домов с гаражом;
Мы готовы предложить вам индивидуальный проект дома с гаражом, если вы не нашли подходящий вариант в нашем каталоге проектов. Так же, мы вносим любые изменения в проекты, представленные в нашем каталоге. Например, можем добавить гараж (увеличить площадь существующего) к любому понравившемуся проекту из нашего каталога.
Удачи вам в выборе! Найдите подходящий вам проект!
Проекты одноэтажного дома с мансардой: чертежи и фото
В одноэтажных домах мансарда чаще всего выступает в качестве мастерской или кабинета. Нередко на этом уровне располагают спальню, что обусловлено комфортным расположением в помещении с невысокими потолками, а также дополнительной изоляцией и прекрасным видом на звездное небо из окон. Мы подобрали 10 лучших проектов домов с мансардой, ниже представлены бесплатные чертежи и фото, а также их описание.
Готовые проекты домов с мансардой 8 на 10
Проект №1. Проект этого дома предусматривает функциональное помещение на мансардном уровне, в котором размещена спальня, санузел и две дополнительные комнаты, которые по своему усмотрению можно обустроить под гостиные или детские. Уютный каркасный дом предполагает выполнение из кирпича и керамзитобетона. Большие окна делают внутреннее пространство дома хорошо освещенным. Здание полностью соответствует всем требованиям жилого дома.
Проект №2. Уютный коттедж в эко стиле с большой столовой-гостиной на первом этаже. Проект позволяет разместить на мансарде три комнаты, санузел и небольшой холл, а также выход на балкон. Предусмотрен удобный широкий лестничный узел. На первом этаже располагается также второй выход на веранду. Такой дом прекрасно подойдет большой семье для комфортного загородного отдыха.
Проекты домов с мансардой 9 на 9
Проект №3. Небольшой и в то же время функциональный одноэтажный дом с гостиной-столовой и кабинетом на первом этаже. Пространство мансарды занимает три смежные комнаты и санузел. В простую форму здания вносят разнообразие эркер в гостиной и мансардное окно с плоской кровлей. Дом отлично подойдет как для отдыха, так и для работы.
Проект №4. Компактный дом в деревенском стиле. На первом этаже расположены гостиная с обеденной зоной, кухня и туалет. На мансарду можно подняться по удобной широкой лестнице. Здесь предусмотрены три спальни и ванная комната.
Проект №5. Функциональный одноэтажный дом с мансардой подходит для большой семьи. Проект предусматривает просторную столовую, кабинет, санузел и кухню на первом этаже, а также три смежные комнаты и ванную на мансардном уровне. Форму дома дополняет эркер на первом этаже в гостиной-столовой и выход на балкон, а также окно с еще одним дополнительным балконом и двускатной крышей.
Проекты домов с мансардой 9 на 10
Проект №6. Бюджетный проект дома с мансардой отлично подойдет для жизни и отдыха. На первом этаже расположена большая вместительная гостиная (48,6 м2), которая может одновременно выступать и в роли столовой. На мансарде – три спальни, санузел и просторный балкон.
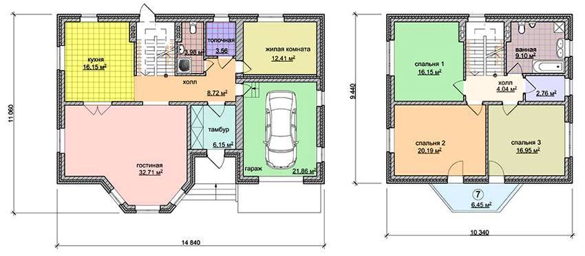
Проект №7. Простой одноэтажный дом с функциональной планировкой предназначен для семьи из пяти человек. Простая форма дополняется эркером и балконом. Вход через прихожую ведет в холл, где расположены лестница на мансарду и двери во все помещения первого этажа: гостиная, санузел, кухня и детская. На мансардном уровне – три спальни, просторная ванная комната, а также две гардеробные, одна из которых примыкает к большой спальне.
Выводы и рекомендации
Если Вы сделали проект крыши самостоятельно и, строить ее планируете своими руками, для начала все же посоветуйтесь со специалистом. В любом проекте могут быть допущены архитектурные или конструктивные просчеты, неправильно выбрана система утепления или вентиляция.
Еще одним просчетом может стать неверно составленная система водостоков, что может привести к разрушению крыши или допущена ошибка в расчете уклона.
При всех вышеперечисленных ошибках крыша может оказаться непрочной и ненадежной и, сэкономив на консультации специалиста, в скором времени придется потратиться на незапланированные ремонты.





































