Нормы строительства с учетом материалов
При создании проекта и определении места будущего здания на участке важно обратить внимание на материалы изготовления самой бани и окружающих ее строений. Основные требования:
- Между постройками из камня, блока, железобетонных изделий, а также зданиями, построенными по монолитной технологии, должно быть, минимум 6 метров.
- Расстояние между домом и баней, если первый построен по вышеописанным технологиям, но имеет перекрытия из дерева, составляет уже 8 метров.
- Между деревянными строениями — 15 м. Это требование действует как для зданий, расположенных на одном участке, так и на разных территориях. Иными словами, расстояние от бани до бани соседа, если оба объекта деревянные, должно быть, минимум 15 м.
- До каменного забора от бани с перекрытиями из дерева — 6 метров.
- Между забором на каркасе из дерева и каменной сауной должно быть хотя бы 6 метров.
- Если ограждение выполнено из дерева полностью или частично, а в бане есть деревянные перекрытия, между этими объектами должна соблюдаться дистанция в 8 м.
- Между оградой из дерева и деревянной сауной должно быть хотя бы 10 м. Это же требование актуально, если баня сделана из камня и имеет перекрытия из легковоспламеняемых материалов.
Расстояние от дачи до строений по СНиП
Разновидности ограждений
Забор используется для обозначения границ земельного участка, который находится в частной собственности, а также для предотвращения незаконного проникновения посторонних лиц на территорию.

Ограждающие конструкции могут быть представлены следующими видами:
- Щитовые заборы. Сборка ограждения выполняется из деревянных щитов, для которых доски монтируются в горизонтальном или вертикальном направлении. Вертикальные щитовые заборы считаются более практичными и долговечными. В длину собранный щит может достигать 185 см, но возможно изготовление более коротких секций. Дополнительная жесткость готовой конструкции обеспечивается за счет обвязки, когда каждый отдельный элемент прочно фиксируется к каркасным брусьям. Для изготовления щитовых заборов используются хвойные породы древесины – сосна и ель.
- Решетчатые заборы (шпалерные). Этот вид ограждений изготавливается из деревянных планок, которые при соединении создают геометрические конструкции – ячейки ромбовидной или квадратной формы. Решетчатые заборы относятся к декоративным ограждениям, а в силу своей невысокой износостойкости и прочности они не способны обеспечить надежную защиту территории от проникновения. Больше подходят для обустройства внутреннего ограждения, требуют частой покраски.
- Частокольные заборы. Этот вид ограждений давно утратил актуальность и востребованность, сегодня его можно увидеть в деревнях и отдаленных поселениях. Частокол отличается низкой прочностью и долговечностью, поэтому для усиления конструкции часто используют металлический каркас – проволоку, которая натягивается между отдельными кольями. Подобный забор имеет в большей мере декоративный характер, чем защитный.
- Заборы из сетки-рабицы. Это простой и доступный для обустройства тип ограждений. Подобная конструкция прочна, износостойка и доступна для самостоятельного монтажа. Сетка-рабица не имеет привлекательного внешнего вида, но обладает хорошими эксплуатационными характеристиками.
- Штакетные заборы. Ограждающие конструкции этого типа собирают из деревянных досок и металлических планок, которые фиксируют в вертикальном положении на горизонтальные брусья-слеги. Ограждения имеют разную высоту – от 10 см до 2 метров. Технически сложные штакетные заборы представлены сварными металлическими конструкциями, которые устанавливаются отдельными секциями.

Популярные и востребованные варианты ограждений – бетонные, кирпичные, каменные и металлические из листов профнастила.
Возведение бани – сложный процесс, требующий учета всевозможных технических моментов и нюансов. Строительные нормативы и государственные акты позволят определять, на каком расстоянии можно строить баню от ограждения, жилого дома или соседнего участка, чтобы избежать возможных проблем с соседями и городскими властями.
На каком расстоянии от забора можно строить баню: требования к постройке 2021 года, правила размещения бани на участке, нормы при строительстве
При строительстве функционального сооружения хозяин дома должен руководствоваться требованиями СНиП в редакции 2018 года. Это необходимо для того, чтобы знать, на каком расстоянии можно строить баню. В случае нарушений, судебная власть берёт за основу информацию из этого издания.
Требование к санитарным и противопожарным нормам
С их учётом владелец строения принимает во внимание мнение смежных собственников дворовых участков. На основании этого всегда соблюдается минимальное расстояние от бани до забора с учётом ИЖС (индивидуальное жилищное строительство).
Установленная граница между земельными участками представляет собой ориентир
При этом необходимо учитывать расположение строения по отношению к забору соседа. Это актуально, если у каждого из владельцев устроена личная изгородь собственного участка.
Регламент СНиП предусматривает строго 3 м от изгороди при возведении крайней стенки банного помещения. Если же на участке в качестве канализационного отвода от бани необходимо выкопать колодец, то для этого отступают ещё 5 метров от границы соседнего участка. Расстояние от забора до бани в деревне имеет некоторые отличия. Это зависит от площади населённого пункта.
Законом регулируется не только расстояние от границ земельного участка до построек (дома, бани, гаража, беседки, сарая и др.), но и расстояние до деревьев и кустарников. Поэтому, если вы только планируете посадки и постройки на своем участке, следует ознакомиться с нормами отступа от границ участка при строительстве в 2020 году, чтобы соблюсти минимальные отступы от границ земельного участка и избежать неприятностей в будущем.
В любом случае, сооружение, независимо от того, из каких материалов возведено, должно отличаться экологичностью и безопасностью. Все риски, в плане возгорания, стараются свести к минимуму. Поэтому избегать норм по размещению нерационально, особенно, если это касается вопроса, сколько отступать от забора при строительстве бани.
При возникновении судебных претензий знание положений строительных норм и правил для индивидуального жилищного строительства (ИЖС), для дачного некоммерческого товарищества (ДНТ) и некоммерческого садового товарищества (СНТ) поможет решить вопрос защиты личных интересов.
- до домостроений жилого назначения – 8 м;
- разрешается дистанция до уличной дороги 5 м;
- от объектов, при изготовлении которых были использованы негорючие материалы, в зависимости от сырья (кирпичный гараж или сарай), отступ 6–10 м;
- от древесных объектов с негорючими перекрытиями – 8–10 м;
- от легковоспламеняемых, полностью деревянных построек – 12–15 м;
- до леса, рощ и других мест массового размещения деревьев – 15 м;
- от озер, рек, прудов и подобного – 5 м;
- расстояние от высоких деревьев, даже если это собственный сад, – 4 м;
- среднерослых деревьев – 3 м;
- кустарниковой растительности – 1 м.
✅ Через сколько метров можно строить
Чтобы эксплуатация бани не создавала проблем для своего обладателя, еще на этапе планирования строительства нужно придерживаться нормативов, регламентирующих удаленность от объектов соседнего участка.
В качестве точки отсчета для измерения всех расстояний используется цокольная часть или стена строения. Но при наличии элементов, выступающих более, чем на 50 см (навеса, крыльца, козырька, навесных элементов второго этажа), все расчеты нужно проводить именно от этих частей или их проекций на земную поверхность.
Согласно требованиям нормативных документов, расстояния должны составлять:
От бани до забора
Прежде всего, важно соблюсти расстояние до границ земельного участка, чтобы исключить влияние постройки на соседнюю территорию. Минимальный отступ согласно СНиП составляет 1 м при условии разделения территории ограждением из негорючих материалов
При деревянном заборе отступ следует увеличить до 3 м.
Дополнительно следует учитывать следующие моменты:
- Расположение крыши. Скат крыши нужно организовать таким образом, чтобы вода и снег с нее падали только на собственный участок.
- Организация стоков. Для сбора и обработки сточных вод нужно использовать фильтровальные траншеи с гравийно-песчаной засыпкой или другие варианты очистных сооружений, которые должны быть расположены не ближе 4 м от соседнего участка.
Еще одна важная деталь – баня не должна затенять территорию соседа от солнечного света, что может препятствовать росту деревьев и растений. Оптимальный вариант, если расстояние от места ее расположения до границы соседнего участка будет не меньше, чем высота будущего строения. В таком случае его тень не будет падать на соседскую территорию, а, значит, соседи не будут выражать свое недовольство по этому поводу.
От бани до дома
Размещение бани на садовом участке будет верным, если учитывать дистанцию не только до границ смежного участка, но и до дома соседа. Согласно п. 6.8 СП 53.13330.2011 по санитарно-бытовым условиям минимальный отступ от жилой постройки должен составлять 8 м. Указанные параметры нужно соблюдать как в отношении построек, расположенных на своей, так и на соседней территории.
Для бань, располагаемых на территории объектов ИЖС, разрешается отступать от ее стен (или других выступающих точек) до окон жилого дома соседа не менее 6 м (п. 5.3.8 СП 30-102-99).
Дополнительно следует учитывать минимальные нормы удаленности, продиктованные требованиями пожарной безопасности. При этом СНиП 30-02-97 позволяет не придерживаться пожарных нормативов для строений своего участка. В отношении жилого дома и других построек на территории соседа (например, соседской бани) показатели будут зависеть от материала стен и кровли объектов, расстояние между которыми будет рассчитываться:
Используемые материалы | Минимальные расстояния | |||
|---|---|---|---|---|
1 | 2 | 3 | ||
1 | Негорючие (железобетон, бетон, кирпич, камень и пр.) | 6 | 8 | 10 |
2 | Материалы п.1 при наличии перекрытий, покрытий из древесины, если они защищены металлической черепицей, профнастилом и прочими трудногорючими или негорючими материалами | 8 | 10 | 12 |
3 | Деревянные конструкции (даже при условии обработки антипиренами), каркасные ограждающие конструкции из материалов разных групп горючести | 10 | 12 | 15 |
От бани до природного водоема
Нормативные акты запрещают располагать банные комплексы (как и любые другие хозяйственные постройки) непосредственно на берегу природных водоемов (рек, озер, лиманов). Последние согласно Водному кодексу относятся к категории мест общего пользования, доступ к которым не может быть каким-либо образом ограничен для других людей. Минимально допустимое расстояние – 20 м. Но в отношении небольших рек и ручьев (протяженностью не более 10 км) его можно сократить до 5 м (ст. 6 ВК РФ).
Подобные цифры обусловлены не только необходимостью соблюдать законодательные нормы, но и возможными проблемами, связанными с состоянием грунта в виде:
- Высокого уровня грунтовых вод. Для насыщенной влагой земли требуется сооружение свайного фундамента, что значительно увеличивает расходы на строительство. В случае экономии на основании грунт вместе с конструкцией однажды может «уплыть».
- Необходимости укрепления береговой линии. Почва на прибрежных территориях особенно подвержена эрозии, поэтому любые работы (в т. ч. сооружение свайного фундамента) могут спровоцировать обрушение грунта.
Правила планирования участка
Требования противопожарной безопасности
Повышенные требования к объектам с печным отоплением предъявляются обоснованно. Из-за нарушений правил пожарной безопасности происходят возгорания банных построек повсеместно, многие люди травятся угарным газом. Для предупреждения таких событий необходимо:
- На этапе проектирования предусмотреть соответствующее нормам СНиП расстояние между баней и постройками за границами участка. Также необходимо ознакомиться с дополнительными требованиями, которые может предъявлять садовое товарищество. Это предупредит распространение огня на соседский участок при возгорании объекта.
- Для возведения печи и организации дымохода пригласить опытного мастера – печника, который рассчитает необходимые для конкретного сооружения размеры топки, высоту трубы для отвода газа, а также предусмотрит возможность ограничения подъема пламени и вероятность обратной тяги.
- Перед топкой обязательно размещение металлического листа для предупреждения возгорания при выпадении из топки золы и горящих головешек.
- В месте прохождения трубы через перекрытие потолка должна организовываться термическая прокладка – прямой контакт чреват перегревом деревянных конструкций и их возгоранием.
- От организации системы вентиляции зависит эффективность освобождения помещения от угарного газа в случае критических ситуаций. Ее необходимо построить надежно, с использованием новых технологий.
Нормы и правила
Домашняя баня должна оборудоваться средствами пожаротушения в полном объеме. Принадлежности размещают в удобном, доступном для посетителей месте. В период прямого использования входная дверь запираться не должна.
Ответы на часто задаваемые вопросы
Некоторых тонкостей нельзя найти в санитарных и противопожарных нормах. Часто владельцы домов задают вопросы, связанные с проблемами или запретами, исходящими от органов местной власти. Постараемся ответить на них.
Если сооружение некапитальное, это не значит, что соблюдать расстояния до других построек не нужно ФОТО: sokurnso.ru
Нужно ли разрешение на строительство бани, кто его предоставляет
Доступ к строительству нужно иметь для возведения практически любой хозяйственной постройки, разумеется, если она является капитальной. Получить такое разрешение можно в органах местного самоуправления.
Все хозяйственные постройки должны находиться в зоне видимости из окна ФОТО: besedki7.ru
Для этого придётся собрать некоторый перечень документов. Может потребоваться проект будущего здания и бумаги, подтверждающие право собственности.
Можно ли изменять расстояние границ по договоренности с соседями
Мало, кто с восторгом воспримет новость о том, что вы планируете несколько сдвинуть межи для обустройства самостоятельных построек. По обоюдной договорённости такой вариант допустим, например, если сосед не проживает на участке или появляется здесь очень редко.
При договоре на словах не следует даже приступать к перенесению границ, суд может признать вас виновником ситуации ФОТО: zhuk-kop.ru
Тем не менее, словесного договора недостаточно, необходимо иметь подтверждающие документы, расписки и акты, заверенные нотариусом.
Если баня уже готова, то забор переносить недопустимо, даже если расстояние до него не соответствует нормативам ФОТО: gardenerschool.ruЗабор между соседями может иметь любую конструкцию ФОТО: myhomemontreal.com
Что грозит за несоблюдение нормативов
Если нет никакого соглашения и не соблюдены нормы того, на сколько метров от забора должна располагаться баня на участке, против нарушителя могут быть приняты следующие меры:
- компенсация за моральный ущерб, размеры взыскания устанавливает суд;
- требования сместить границы на прежнее место так, чтобы они соответствовали размеру участка;
- проведение межевых работ и смещение границ властями в принудительном порядке.
Забор из профнастила между соседями не разрешён ФОТО: ria56.ru
Во всех стальных случаях рекомендуется обратиться за помощью к юристу. Особенно, если все нормы учтены, и постройка выполнена по закону с соблюдением расстояния от дома до бани.
Watch this video on YouTube
Предыдущая БаняВ парилке должно быть тепло: секреты выбора фольги для бани
Следующая БаняКак изготовить полок и полки в бане своими руками – подробная инструкция
Удаление строений по материалу изготовления
Определенная нормативами дистанция между основными и вспомогательными домовыми постройками предупреждает перенос пламени на соседние здания при пожаре. При этом учитывается материал, из которого они сделаны, а также возможность подхода к ним по периметру. То есть на этапе проектирования исключаются любые факторы, препятствующие оказанию помощи при возникновении чрезвычайной ситуации.

Дачный участок
Какое расстояние должно быть между капитальными строениями на своем и соседских участках, указано в нижеприведенном списке:
- Между каменными, литыми бетонными, сборными железобетонными – 6 метров.
- Вышеуказанного типа, но с перекрытиями из деревянных или трудновоспламеняемых материалов – 8 метров.
- Деревянные каркасные здания с таким же ограждением можно делать на дистанции 15 метров.
- Между забором из камня и зданиями с деревянным перекрытием – 6 метров.
- От каменных ограждений (например, кирпичного, граничащего с каркасными зданиями) – 10 м.
- Граница между забором с деревянным каркасом и каменными зданиями – 6 м.
- От изгородей с деревянным каркасом до зданий с деревянным перекрытием отступ 8 м.
- Ограда с деревянным каркасом должна располагаться от зданий, полностью выполненных из древесины, в 10 м.
- До забора, граничащего со строениями из камня с древесным перекрытием, – 10 м.

Около леса
Общие условия размещения бани: требования экологической и пожарной безопасности
Если смотреть классификацию, баня относится к вспомогательным помещениям, и для её возведения следует руководствоваться всеми нормами, разработанными для такого типа построек. Знание положений, а также рекомендуемых расстояний от парной до забора ИЖС, поможет предупредить претензии и защитить личные интересы владельцев.
ФОТО: planvsem.ruДистанция от бани до строений
Расстояние от бани до забора соседей
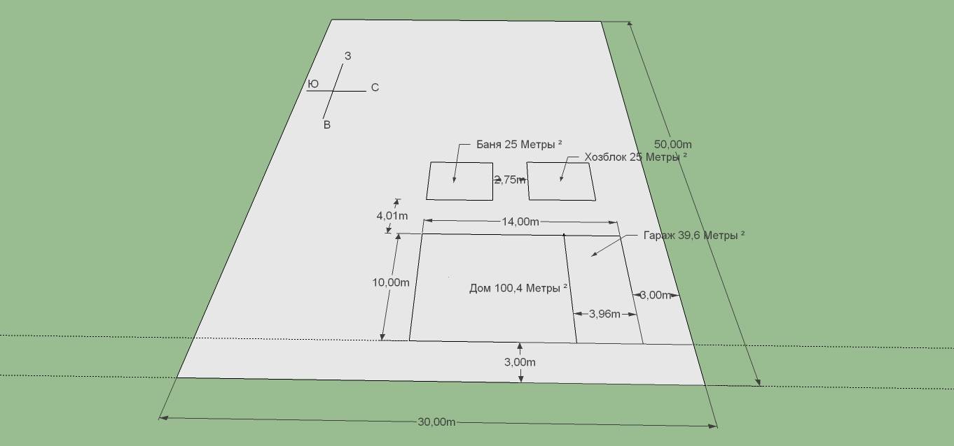
Для того, чтобы конструкция не притемняла соседский участок, а также с учётом пожарной безопасности, нужно заранее уточнить, можно ли строить баню возле забора, и сколько метров от межи необходимо отступать. Здесь руководствуются следующими нормами:
- минимальное расстояние от банного комплекса до соседского забора должно быть не менее трёх метров;
- если высота строения не превышает 3 м, оно оснащено центральной канализацией, и стена, смотрящая на соседский участок, не имеет оконных и дверных конструкций, расстояние может быть уменьшено до 1 м.
ФОТО: abmrsk.ruВладельцы должны заранее знать, в скольких метрах от забора допускается строительство бани на участке
Расстояние от бани до дома
Не многие владельцы понимают, зачем нормативными актами ограничено расстояние от банного комплекса до дома на соседнем участке. Кроме тени, здесь основной упор сделан на выделение продуктов горения, которые через двери и окна могут попасть внутрь жилого строения.
ФОТО: proekt-sam.ruРасстояния от бани до дома: пожарные нормы безопасности в зависимости от материалов
Если стены банного комплекса возведены из пожаростойких материалов, расстояние до жилого строения соседей сокращается до 6 метров. Точкой отсчёта будут выступающие более, чем на 50 см конструкции:
- цоколь;
- свес крыши;
- эркер.
ФОТО: planvsem.ruСтроительные требования к расположению бани на участке с учётом расстояний от границы
Расстояние от бани до соседской бани
Популярность строительства парных и саун в последнее время возросла в несколько раз. Поэтому сегодня для владельцев земельных участков актуален вопрос: на каком расстоянии можно возводить баню от соседской бани. Обратимся к законодательным актам: предельная дистанция должна быть не менее двух метров.
ФОТО: zaggo.ruМожно подобрать небольшой проект баньки, который гармонично впишется даже в шесть сосок
Прочие сооружения в пределах участка и баня
Перед строительством парной следует предусмотреть не только расстояние от бани до границы соседнего участка, но и следующие дистанции удалённости от иных объектов.
| Объект | Дистанция, м |
| До уличной дороги | 5 |
| До объектов, построенных из негорючих материалов | 6-10 |
| До объектов, возведённых из древесины с пожарозащитной пропиткой | 8-10 |
| До деревянных построек, в том числе и беседок | 12-15 |
| До высоких деревьев | 4 |
| До среднерослых деревьев | 3 |
| До кустарников | 1 |
ФОТО: planvsem.ruРекомендуемое расстояния от бани до других строений и насаждений, в том числе и до жилого дома
Статья по теме:
Нормы удалённости от природных водоёмов
Что может быть лучше, чем после парной окунуться в водоёме. Однако и здесь есть свои правила, которые гласят:
- возводить комплекс от озёр и рек можно на расстоянии не менее 20 метров;
- расстояние до небольших речушек протяжённостью до 10 км может быть сокращено до 5 м.
ФОТО: pl.grandgames.netБаньку можно строить только на берегу собственного небольшого искусственного прудика
Нормативы строительства дома на дачном участке
Что делать, если сосед нарушает строительные, санитарные и противопожарные нормы?
Если владелец соседнего участка нарушает строительные, санитарные и противопожарные нормы, то для начала нужно попробовать поговорить с ним. Вполне возможно, что он не знает о вашем недовольстве и вполне согласен пойти на уступки.
Если же сосед настаивает на своей правоте, стоит написать официальную жалобу и передать ее соседу. Сделать это легче всего по Почте. Тогда у заявителя будет подтверждение получения недобросовестным соседом письма. Далее нужно обратиться в инспекцию, которая следит за нарушенными владельцем соседнего участка нормами. Например, если человек не следует санитарным правилам, то заявление направляют в Роспотребнадзор.
Если после разбирательства ответственного ведомства ничего не изменилось и сосед по-прежнему нарушает действующие нормы, можно обратиться в суд.
Баня является пожароопасным объектом, и ее неправильное размещение может привести к неприятным, как для владельца, так и для соседей последствиям. Именно поэтому, как показывает практика, если все доводы истца находят подтверждения, то суд удовлетворяет его просьбу.
Нарушителя ждет административная ответственность. Также его обяжут снести неправильно возведенную конструкцию в отведенные на это сроки. В противном случае утилизацией объекта займутся специализированные органы.
Расстояние до забора
Как и любая постройка, баня — объемное сооружение, которое может затемнить соседний участок, также это источник повышенной пожарной безопасности.
Согласно СНиП, расстояние от бани до забора должно быть не менее 3-х метров, при этом важно, чтобы тень от строения не мешала соседям. Такая же удаленность должна соблюдаться для канализационной системы бани, если слив воды производится в сливную яму
Если есть капитальная дренажная траншея с фильтрующими компонентами, например, смеси графия с песком, это расстояние можно уменьшить до 1-го метра.
Расстояние до дома
Согласно нормативам, удаленность бани от дома, зависит от материалов, из которых она построена.
Минимальные показатели:
- 8 метров для кирпичной бани и капитального дома, как уже построенного, так и находящегося на стадии возведения;
- 6 метров — если баня деревянная, но имеет негорючую кровлю, а стены пропитаны противогорючными веществами;
- 10 метров — если баня полностью деревянная, а дом из кирпича или камня;
- 15 метров — если оба объекта возведены ил дерева.
При этом есть некоторые нюансы. Например, если на стороне соседского дома, выходящего на ваш участок, нет окон, вы можете уменьшить расстояние до него до 1-го метра. А если панируется топить баню дровами, удаленность от других построек должна быть максимальной, а дым не должен идти в сторону соседей.
Для замера расстояния берется выступ цоколя, а если его нет — стена. Любые выступающие конструкции более чем на 0,5 метров необходимо учитывать и использовать как точку отсчета. Это требование нужно соблюдать даже при расположении строений на одном участке.
Расстояние от бани до бани
Независимо от типа строения, действуют стандартные нормативы для определения расстояния между объектами. Это значит, что расстояние от бани до другой бани должно быть такое же, как до жилого дома — от 7 до 8 метров, а зависимости от материалов строительства.
Расстояние от красной линии
Наземные и подземные коммуникации, которые проходят рядом с участком, называются красной линией. Согласно санитарным нормам, баня, как и любые другие сооружения, должна быть удалена от нее не менее чем на 5 метров. Если красная линия не проходит близко к участку, можно сократить расстояние между баней и забором до 1-го метра, при условии, что сохранится дистанция в 5 метров между постройкой и линией прохождения коммуникаций.
Расстояние от естественных водоемов
Если рядом с участком находится река, канал или иной естественный водоем, нужно учитывать, что территории, примыкающие к береговой линии, являются водоохранными зонами (ч.1 ст. 65 Водного кодекса РФ).
Согласно ч.5 ст. 65 ВК, расстояние, на котором могут располагаться постройки, зависит от протяженности водоема:
- от 50 метров, если он его длина до 10 км;
- 100 метров, если от 10 до 50 км;
- 200 метров, если от 50 км и больше.
Если длина реки или ручья менее 10 км, водоохранной зоной является только прибрежная полоса.
Регламентирующая основа банного строительства
На первый взгляд кажется, что при постройке бани (да и других полезных сооружений) достаточно иметь подходящую площадь на дачном участке или возле дома и собственное желание. Однако нередко личные интересы после завершения строительства приходят в противоречие с интересами государства и соседей, что приводит к судебным тяжбам и штрафным санкциям. Для того чтобы не нарушались интересы всех сторон, а для предотвращения риска для экологии и здоровья самого хозяина, разработаны нормативные документы, регламентирующие выбор места для бани.
Прежде всего, нормы любого строительства на участке ИЖС, дачном или садовом участке должны соответствовать Градостроительному кодексу, который упорядочивает правила использования земельных участков и дает вообще право на соответствующее строительство. Полный перечень норм с учетом санитарной и пожарной безопасности для любых строений на садовых и приусадебных участках устанавливают СНиП 30-02-97. Порядок выполнения всех правил определяется Сводом правил СП 11-106-97. Если владелец участка не желает иметь проблем после возведения строения, то ему следует внимательно ознакомиться с этими документами.
Помимо обязательных норм, утвержденных на федеральном уровне, существуют, так называемые, неписаные правила – рекомендации специалистов. Любому строительству (в т.ч. и строительству бани) должен предшествовать детальный план-проект сооружения.
Выбирая место для стройки и расположение самого здание необходимо учитывать множество факторов: строение и характеристики грунта, климатические условия, рельеф участка и его размеры, удобство подхода, наличие водоемов и растительности, наличие других строений и зон, частота эксплуатации, общий дизайн и местные традиции. При строительстве частной бани следует учитывать рекомендации Инструкции по организации общественных бань, которые помогут разобраться с проблемами вентиляции и порядка массовой эксплуатации строения.
Как поставить баню на кадастровый учет
Итак, если ваша баня не относится к типу «кедровая бочка» или не стоит на мелкозаглубленном фундаменте, с которого ее легко снять и переставить в другое место без потери функциональности, то ее надо зарегистрировать в Росреестре, поставив на кадастровый учет.
Для этого вы должны сперва вызвать на участок кадастрового инженера. Он измерит вашу баню и составит ее технический план: где она размещена (с четкими геодезическими координатами), как расположены помещения внутри, как она ориентирована по сторонам света.
Затем, вооружившись этим техническим планом, паспортом и 350 рублями на уплату пошлины, собственник участка (и будущий счастливый обладатель бани) отправляется в МФЦ, где подает документы на регистрацию объекта в Росреестре. Дальше процедура будет проходить без участия собственника: если баня не выходит за границы участка, ее зарегистрируют, присвоят ей кадастровый номер и даже определят кадастровую стоимость.
И если вы соблюли все необходимые правила — ваша баня будет долгие годы вас радовать!
Людмила Губаева
Недвижимость Татарстан
Как узаконить постройку
Чтобы возведенная баня имела официальный статус постройки, она должна соответствовать всем установленным правилам пожарной безопасности, в том числе и санитарным нормам. Прежде всего нужно, чтобы здание располагалось на фундаментной основе и не использовалось в коммерческих целях в частном секторе или на дачном участке.
Интерьер строения на даче
В непременном порядке перед строительством бани необходимо оформить проект, получив для этого разрешения от соответствующих инстанций. В случае отсутствия документального подтверждения о возможности построить баню, она может быть признана самостроем, и тогда здание придется снести, причем за счет средств владельца.
Документы для получения разрешения
Перед тем как начинать строить баньку или парилку, следует спроектировать здание и передать проект на рассмотрение в градостроительные инстанции. В деревне обозначенным вопросом может заниматься местная администрация. Также требуется собрать все необходимые документы для получения соответствующего разрешения на строительство бани.
На дачном участке
Основными из них считаются:
- Заявление от собственника земельного надела, а также бумаги, удостоверяющие его личность.
- Подтверждение, что на обозначенном участке земли, огороженном забором, разрешается возводить здания.
- Топографическая карта, на которой отмечены данные об участке для строительства, расстояние, выдержанное от забора до сооружения и всех других построек.
- Кадастровый план с разметкой надела земли в квадратных метрах или сотках, причем в документе должна просматриваться привязка границ участка (межи, забора) к местности, где он располагается.
- Справка, в которой отмечена стоимость недвижимого имущества. Оценивание должно быть произведено БТИ.
Дополнительно нужен план расположения всех коммуникаций на территории надела земли, где предполагается постройка сауны (душа, бани). Также на чертеже должны быть видны места подсоединения к городским сетям (хозяйственного назначения).





































