Толщина – важный размер металлической двери
Несмотря на то, что толщина дверей не имеет четкого регламента по ГОСТ, эта величина остается очень важным параметром. Ведь именно от нее будет завесить устойчивость железных дверей к попыткам нежелательного проникновения в квартиры, а так же степень защиты помещения от пожара.
Ознакомиться с размерами и толщиной металлической двери с легкостью можно в интернете или в специализированном магазине
Однослойные стальные конструкции должны быть не тоньше 2 мм. Сваренные между собой металлические листы могут иметь толщину до 6 мм. Такие двери наиболее прочные и массивные, ими можно защитить даже сейф.
Каждая металлическая дверь состоит из нескольких листов стали. Между такими полотнами устанавливаются ребра жесткости, которые делают конструкцию крепче.
Интересно, что импортные конструкции обычно имеют меньшую толщину, нежели отечественные. Китайские же двери даже при больших габаритах, производятся из достаточно тонких стальных листов. Так если толщина одного листа российской двери достигает 6 см, то полотно китайского аналога не достигает и 4.
Основные правила выбора дверей
Следует знать, что оптимальными параметрами для проемов на входе являются: по высоте 220±20 и ширине 110±20. Уменьшать их нецелесообразно, так как это затруднит процесс обустройства жилья. Например, будет сложно занести в дом крупногабаритные бытовые приборы или мебель. И чрезмерно увеличивать не следует, так как жилое строение станет напоминать здание административное, производственное и тому подобное. Это желательно учитывать еще на этапе подготовки к строительству, и ориентироваться на стандартные размеры дверных проемов, рекомендуемые ГОСТ. Если отличия существенные, то комплект (рама + полотно) придется заказывать, а это обходится значительно дороже.
Размеры входных металлических и деревянных дверей с коробкой практически ничем не отличаются, если речь не идет о нестандартных решениях.
Толщина полотна ни одним документом (ГОСТ, СНиП или иное) не регламентируется. Выбор зависит от параметров торцевой части стены и короба, если рама и створка приобретаются отдельно. Хотя не стоит забывать о безопасности. В этом плане толщина стали входной двери металлической должна быть не менее 2 мм.
Все модели отличаются исполнением. При выборе изделий для установки на входе в жилой дом или квартиру следует ориентироваться на блочные конструкции с полотном, открывающимся наружу. Если створка распахивается внутрь, ее несложно выбить.
Металлические двери отличаются значительным весом. Крепление полотен массой более 200 кг производится минимум на 3 петли (согласно ГОСТ).
На входе в жилое строение устанавливаются двери трех модификаций.
Одностворчатые
Стандартное решение, но несколько однообразное. Добавить привлекательности несложно дополнительным оформлением проема (к примеру, оригинальными наличниками).
Двустворчатые
Наиболее популярные двери на входе жилого здания. Рабочая «зона» стандартная, но при необходимости проход можно расширить открыванием второй половинки. Как вариант – дверь-полуторка.
Модели с фрамугами
Эта остекленная конструкция совершенно независимая, и монтируется она отдельно, над коробом входной двери. Оптимальный выбор, если требуется повысить освещенность прихожей (холла, вестибюля) без использования эл/приборов.
Размеры короба должны быть несколько меньше габаритов проема. Они подбираются так, чтобы изделие легко помещалось по месту установки с небольшим зазором. По периметру производится заделка всех щелей наиболее приемлемым для собственника способом; герметизация монтажной пеной, укладка утеплителя. Поэтому выбирать входную дверь по размерам один в один с проемом не следует.
Все остальные критерии оценки блочной конструкции – прочность, особенность утепления полотна, надежность подвижных элементов и ряд других – отдельная тема. Перед тем, как посетить мебельный салон, нелишне изучить информацию о том, как отличить качественную продукцию от низкопробной.
Стандартные размеры дверей
Если ваш дверной блок спроектирован не по общепринятым стандартам, а по вашим личным эскизам, то и дверь для него придется делать на заказ. Однако типовые коробки, имеющие стандартные размеры, более удобны, так как для них можно приобрести уже готовую дверную конструкцию.
Существует две системы измерения дверей: метрическая и английская. Первая используется повсеместно, по ней габариты конструкции измеряются в сантиметрах. Английская система применяется очень редко и лишь для эксклюзивных дверей, в данном случае дверной блок измеряется в футах.
Конечно, изготовленная на заказ дверь выглядит оригинально и стильно, однако и конструкции, размеры которых регламентирует ГОСТ, имеют свои преимущества. Поэтому составляя проект будущего дверного проема, хорошенько подумайте, какой вариант вам ближе.
Достаточно популярными и востребованными на сегодняшний день являются входные двери со стандартными размерами
Преимущества использования дверей со стандартными размерами:
- Вы сможете купить в магазине любую понравившуюся вам дверь. В случае с индивидуальной планировкой вам придется ждать, пока выполнят ваш заказ.
- Стандарт дверей подобран таким образом, чтобы в дом легко было входить человеку с любой комплекцией.
- Обычно уже готовые двери идут в паре с коробкой. Также они имеют в своем комплекте всю необходимую фурнитуру.
- Типовые дверные конструкции обойдутся вам гораздо дешевле, чем изделия изготовленные лично для вас.
- В случае поломки одного из элементов типовой входной конструкции вы сможете легко и быстро найти нужную вам деталь. Если поломка произойдет на заказной двери, то сломавшуюся часть придется заказывать.
Для каждого типа здания существует свой стандарт размера дверей. Также данные могут разниться в зависимости от того, из какого материала сделано дверное полотно и коробка.
Стандартные размеры дверных блоков:
- Высота дверей для зданий, построенных в разное время, будет отличаться. Так в типовых новостройках дверная конструкция варьируется от 205 до 210 см. В хрущевке вертикальный размер двери составляет 250 метров, а в зданиях постарше высота двери может достигать 260 см.
- Ширина дверных конструкций также имеет разные параметры. Стандартом для новостроек считается дверь с горизонтальным размером 74-76 см. В кирпичных зданиях нормой считается ширина 88-92 см. Этот же показатель в старых зданиях с высокими дверями варьируется от 82 до 96 см. Для девятиэтажек характерен размер 128 см.
- Толщина двери не имеет четких стандартов. Однако по ГОСТ дверное полотно не должно быть тоньше 2 мм.
Вес дверных конструкций не регламентируется ГОСТ. Эта величина зависит от множества факторов, начиная от высоты двери и заканчивая ее наполнителем.
Размер входной двери стандарт: видео
Высота входной двери
По стандарту высота конструкции должна варьироваться в пределах 203-207 см. Поэтому перед покупкой полотна и коробки нужно делать измерение, чтобы не допустить ошибки. Проходы входных конструкций должны быть больше, чем межкомнатные. Ведь через них придется проносить крупную бытовую технику, мебель и прочие габаритные предметы.
Ширина входной двери
Рассматривая габариты дверных конструкций, надо знать, какой должна быть ширина проема. Есть несколько параметров. Если речь идет про одностворчатые полотна, то максимальная их ширина составляет 101 см, а, если про полуторные, — 131-151 см. Блоки, которые состоят из двух частей, должны по стандартам быть 191 или 195 см. Минимальное значение по общепринятым нормам – 90-91 см.
Толщина
В плане толщины государство не устанавливает жестких правил и норм. Зависит толщина от применяемого материала. Она влияет на защиту помещения от проникновения недоброжелателей. Чем этот параметр больше, тем надежнее считается полотно. Поэтому толщина подбирается в зависимости от поставленной задачи.
Как зависит размер входной двери от ее вида
Двери могут иметь самые разные размеры. Конечно, если вы являетесь владельцем нетиповой постройки, то для вас стандартные размеры дверей не актуальны. Обычно для таких зданий входные полотна изготавливаются на заказ.
Размеры входных дверей, как правило, зависят от их вида
Однако даже обладателям зданий, дверные проемы которых вписываются в стандарты, может быть сложно определиться с размером входной конструкции. Дело в том, что бывают разные виды входных наружных дверей, и все они характеризуются своими параметрами.
- Одностворчатые двери – это один из самых распространенных вариантов, который можно поставить в квартиру или в частный дом. Эта модель состоит из полотна с дверной коробкой. Размеры таких вариантов может варьироваться в зависимости от фирмы производителя, однако ширина одностворчатой двери не должна превышать 110 см.
- Двухстворчатые двери состоят из одной дверной коробки и двух полотен. Такой вариант зачастую используется в общественных зданиях, но приемлем и для частных домов. Данный тип дверей предполагает увеличение ширины дверных проемов, а вот на высоту данная конструкция не влияет.
- Полуторные двери имеют ту же высоту, что и одностворчатые, но обладают большей шириной. Полуторка зачастую имеет ширину 1200-1400 мм.
- Дверная конструкция с фрамугой отличается наличием прозрачной вставки. Такой вариант редко используют для входной пары квартиры или жилого дома. Однако такой вариант очень популярен в торговых центрах и других зданий общего пользования.
Данные варианты входных дверей отличаются по размерам. Прежде чем выбрать один из них, вы должны убедиться, что данная конструкция впишется в размер и дизайн вашего дома. В некоторых случаях вы сможете увеличить дверной проем, однако перед такими работами необходимо получить разрешение у жилищных служб.
Размеры согласно ГОСТ
Сейчас таких случаев встречается всё меньше, как правило, это происходит, если заказывать некачественную дверь с коробкой китайского производства. А ГОСТ 24698-81 определил стандартные размеры, согласно которым происходит расположение входного дверного проёма в строящихся домах.
Вот размеры входной дверной коробки по ГОСТу в миллиметрах:
- Высота: 2071, ширина: 671;
- Высота: 2071, ширина: 770;
- Высота: 2071, ширина: 870;
- Высота: 2071, ширина: 970;
- Высота: 2071, ширина: 1272;
- Высота: 2371, ширина: 970;
- Высота: 2371, ширина: 1472;
- Высота: 2371, ширина: 1872.
А это размеры входной металлической двери (полотна) по ГОСТу в миллиметрах:
- Высота: 2000, ширина: 600;
- Высота: 2000, ширина: 700;
- Высота: 2000, ширина: 800;
- Высота: 2000, ширина: 900;
- Высота: 2000, ширина: 1202;
- Высота: 2300, ширина: 900;
- Высота: 2300, ширина: 1402;
- Высота: 2300, ширина: 1802.
Размеры полотна и коробки соответствуют друг другу по номеру в столбцах.
Производители соблюдают эти размеры. Такие процессы проводят как отечественные, так и основная масса европейских компаний. Однако входные металлические двери китайского производства имеют гораздо больший ассортимент размеров.
Основные сведения о размерах дверей
Во времена советской застройки, входные двери в многоэтажных домах имели стандартный внешний вид и одинаковые размеры. О красоте и индивидуальности изделий в те годы никто особо не задумывался, а удобство было ощутимым – двери быстро устанавливались и легко менялись при необходимости. Конечно, не все двери имели единые габариты – существовало несколько производственных серий, для которых существовали собственные стандарты.
Изготовление дверей с отклонениями от общепринятых стандартов разрешалось исключительно при производстве изделий для исторических объектов или архитектурных памятников особой ценности. Поскольку и сегодня большинство граждан бывшего СССР проживает в домах советского периода – типовые двери не потеряют актуальность еще долгие годы.
Габариты дверей зависят и от особенностей их конструкции: одностворчатые, двустворчатые и полуторастворчатые модели с разными вариантами полотен, как правило, имеют разную высоту и ширину.
Дверные полотна бывают сплошными или со вставками из особо прочного стекла, щитовыми пустотелыми или заполненными деревянными (ДСП) брусками.
В принципе, стандартные двери можно устанавливать и на входы с проемами больших габаритов, однако тогда придется провести дополнительные работы по зашивке боков или верхней части специальными вставками: сплошными или с остеклением.
Отделка металлических дверей
Схема монтажа петель металлической двери.
Внешняя и внутренняя отделка металлических дверей может быть различной. Российские производители предлагают множество вариантов отделки, которая отличается высоким качеством:
- винилискожа российского и импортного производства;
- натуральная кожа;
- ламинированные панели под дерево;
- порошковое термонапыление;
- панели МДФ, покрытые пленкой ПВХ или шпоном либо крашенные в любой цвет, толщиной в 8 или 16 мм, с любым рисунком фрезеровки (даже по эскизу клиента);
- филенчатые (с отделкой ценными породами древесины);
- возможна установка стеклопакетов;
- возможно использование кованых элементов, чеканки, витражей, автоматической и ручной резьбы по дереву, инкрустации камнями, различных видов искусственного старения.
Декоративная отделка, применяемая при изготовлении, должна быть выполнена из качественных материалов и иметь прочное сцепление с основой. Облицовочные детали, изготовленные из древесины, должны быть полностью покрыты лаком или другим защитным материалом и иметь небольшую площадь соприкосновения с металлом.
Входная дверь: размеры и разновидности конструкций
В подавляющем большинстве случаев входная дверь имеет большую ширину, чем все остальные проемы в доме. Что же касается конструкции, то она может быть самой разнообразной, и в данном вопросе единственное ограничение – это фантазия производителя. Наиболее популярными материалами для изготовления входных дверей считаются металл, дерево и МДФ.

Какие двери выбрать: железные или деревянные зависит от общего внешнего вида дома и бюджета, который будет потрачен на обеспечение безопасности от взлома
Никакой взаимосвязи между материалом изготовления двери и ее размером нет, так что при выборе действуют совершенно одинаковые требования. Обязательно нужно учесть целый ряд конструкционных особенностей, которые, тем не менее, не связаны с материалом.
Проще всего разделить двери на группы в зависимости от того, какую конструкцию они имеют:
- одностворчатые двери – это всем привычный и можно даже сказать стандартный вариант, который представляет собой полотно, вставленное в раму. Обычно ширина такой двери не превышает 100-110 см. Одинарная дверь может быть самой обычной и простой, а может стать реализацией всех самых смелых дизайнерских задумок, по-настоящему украсив дом;
- двустворчатые обычно используют в частных домах, поскольку при стандартной высоте проема, ширина двери увеличивается примерно в 1,5-2 раза. Это, безусловно, более удобный вариант, однако, его реализация требует достаточно много свободного пространства по бокам дома;
- двери с фрамугой. Для подобного решения потребуется увеличить высоту дверного проема. При чем, полотно двери может остаться стандартным, а крепление верхней части конструкции производится отдельно, без нанесения вреда конструкции. В большинстве случаев для этой цели используют декоративные стеклянные вставки, поскольку они служат дополнительным источником света и позволяют визуально облегчить конструкцию двери.

Двери с фрамугой могут использоваться как дополнительный источник света, а также для проветривания помещения без сквозняка
ДОСТОИНСТВА ДВЕРНЫХ ПРОЕМОВ СО СТАНДАРТНЫМИ РАЗМЕРАМИ
Владельцы квартир и частных домов, апартаменты которых оснащены входными проемами, соответствующими принятым стандартам, могут рассчитывать на ряд преимуществ при выборе и покупке металлической двери. Речь идет о:
- богатом выборе товаров: как правило, производители представляют коллекции дверей, соответствующих или близко сочетающихся с действующими нормами, выдвигая широкий ассортимент всевозможных обшивок разных материалов, цветов, декоративных решений;
- финансовой выгоде, отсутствии необходимости индивидуального заказа металлической конструкции: стандартные двери обойдутся покупателю значительно дешевле;
- простоте установки: чем ближе имеющиеся габариты к стандартным значениям, тем легче и быстрее происходит процесс монтажа двери, ведь в данном случае не потребуется проведения дополнительных работ по декорированию щелей, установке доборных полотен и прочих операций.
Проблему нестандартных размеров входных проемов решает заказ двери по индивидуальным замерам.
Подводя итоги, стоит акцентировать на том, что при выборе входных металлических дверей особое внимание необходимо уделить актуальным ГОСТам и СНиПам, типам предлагаемых производителем полотен, материалам отделки двери, наличию усилителей и утеплителей. Если экспериментировать с дизайном и отделочными материалами вполне приемлемо, то рисковать с подбором габаритов крайне не рекомендуется
Преимущества использования стандартов
В настоящее время большинство заводов-производителей входных металлических дверей имеют широкий ассортимент продукции с размерной линейкой, максимально приближенной к стандартным габаритам проемов. При этом вариантов декоративной отделки для классических стандартных моделей намного больше, чем для продукции, изготавливаемой под заказ по индивидуальным меркам.
Стандартные двери имеют значительно меньшую стоимость по сравнению изделиями под заказ, несмотря на одинаковое оснащение конструкций. К тому же, процесс монтажа выполняется проще и не требует значительных затрат на подгонку зазоров. Также существенным преимуществом является экономия времени в процессе монтажа.
Входная дверь: размеры и разновидности конструкций
В подавляющем большинстве случаев входная дверь имеет большую ширину, чем все остальные проемы в доме. Что же касается конструкции, то она может быть самой разнообразной, и в данном вопросе единственное ограничение – это фантазия производителя. Наиболее популярными материалами для изготовления входных дверей считаются металл, дерево и МДФ.

Какие двери выбрать: железные или деревянные зависит от общего внешнего вида дома и бюджета, который будет потрачен на обеспечение безопасности от взлома
Никакой взаимосвязи между материалом изготовления двери и ее размером нет, так что при выборе действуют совершенно одинаковые требования. Обязательно нужно учесть целый ряд конструкционных особенностей, которые, тем не менее, не связаны с материалом.
Проще всего разделить двери на группы в зависимости от того, какую конструкцию они имеют:
- одностворчатые двери – это всем привычный и можно даже сказать стандартный вариант, который представляет собой полотно, вставленное в раму. Обычно ширина такой двери не превышает 100-110 см. Одинарная дверь может быть самой обычной и простой, а может стать реализацией всех самых смелых дизайнерских задумок, по-настоящему украсив дом;
- двустворчатые обычно используют в частных домах, поскольку при стандартной высоте проема, ширина двери увеличивается примерно в 1,5-2 раза. Это, безусловно, более удобный вариант, однако, его реализация требует достаточно много свободного пространства по бокам дома;
- двери с фрамугой. Для подобного решения потребуется увеличить высоту дверного проема. При чем, полотно двери может остаться стандартным, а крепление верхней части конструкции производится отдельно, без нанесения вреда конструкции. В большинстве случаев для этой цели используют декоративные стеклянные вставки, поскольку они служат дополнительным источником света и позволяют визуально облегчить конструкцию двери.

Двери с фрамугой могут использоваться как дополнительный источник света, а также для проветривания помещения без сквозняка
Какая ширина и высота дверного проема нужна под входную металлическую, пластиковую и деревянную дверь: соотношение размеров
Во многих домах и квартирах параметры дверных проемов соответствуют стандартам, которые были установлены еще во времена Советского Союза. Но тогда двери выполнялись исключительно из натурального дерева, а потому на рынке не было такого большого ассортимента изделий. Сегодня фирмы, выпускающие двери, стараются также следовать определенным условиям, где высота соотносится ширине. Но принцип выбора размеров непосредственно зависит от многих конструктивных и эстетических показателей.
Размеры дверей, которые выпускают отечественные компании, имеют такие соотношения с проемами:
| Параметры двери | Параметры проема | ||
| Ширина | Высота | Ширина | Высота |
| 55 см | 1 м 90 см | 63 см — 65 см | 1 м 94 см – 2 м 30 см |
| 60 см | 1 м 90 см | 66 см – 76 см | 1 м 94 см – 2 м 30 см |
| 60 см | 2 м | 66 см – 76 см | 2 м 4 см – 2 м 10 см |
| 70 см | 2 м | 77 см – 87 см | 2 м 4 см – 2 м 10 см |
| 80 см | 2 м | 88 см – 97 см | 2 м 4 см – 2 м 10 см |
| 90 см | 2 м | 98 см – 1 м 10 см | 2 м 4 см – 2 м 10 см |
| 1 м 20 см | 2 м | 1 м 28 см – 1 м 30 см | 2 м 4 см – 2 м 10 см |
| 1 м 40 см | 2 м | 1 м 48 см – 1 м 50 см | 2 м 4 см – 2 м 10 см |
| 1 м 50 см | 2 м | 1 м 58 см – 1 м 60 см | 2 м 4 см – 2 м 10 см |
Показатели массы: особенности, на что влияют
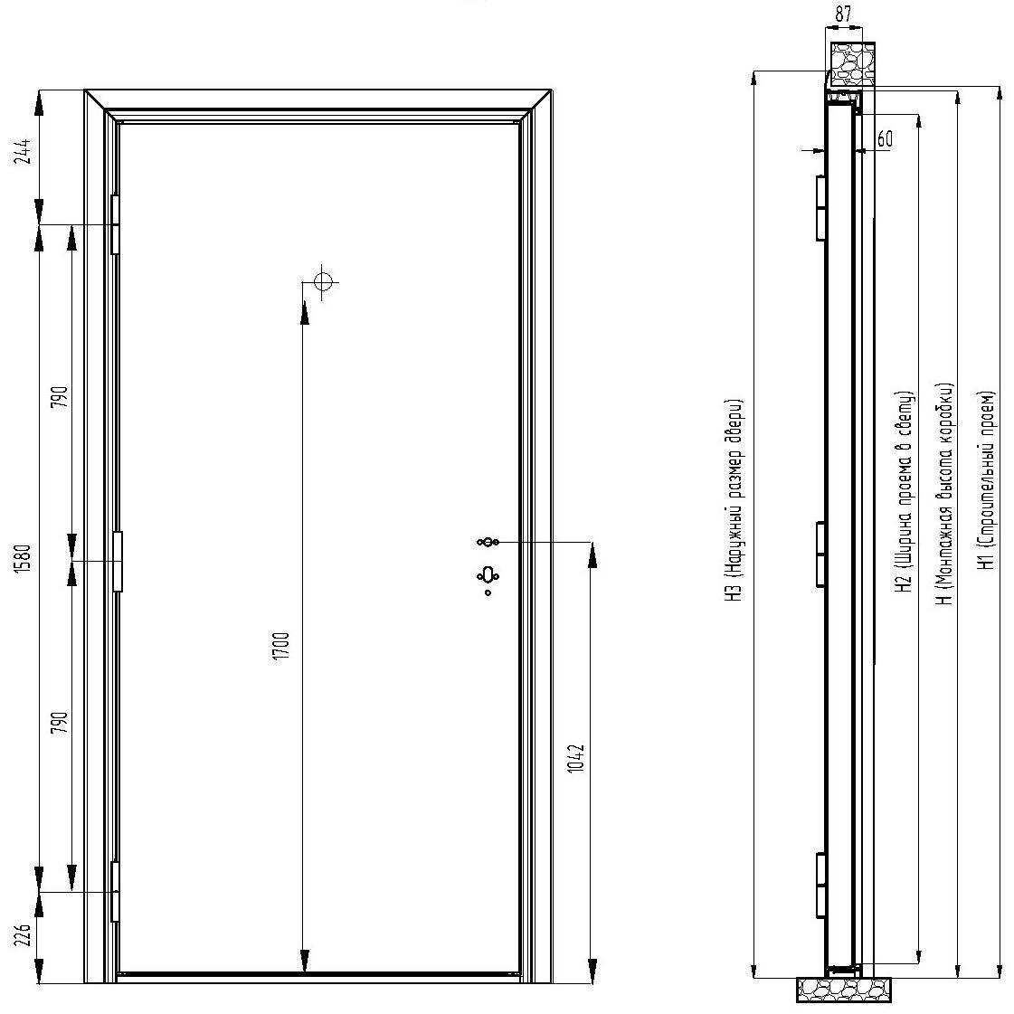
Немаловажно также обратить внимание на соответствие габаритов полотна с коробкой. Малейшие отклонения в линейных размерах могут привести к затруднениям в процессе эксплуатации или к полной замене входной группы. Так, например, используя нестандартные по высоте/ширине двери или приобретая их отдельно от коробки, существует риск того, что вес металлической двери деформирует вертикальные опорные стойки коробки
Так, например, используя нестандартные по высоте/ширине двери или приобретая их отдельно от коробки, существует риск того, что вес металлической двери деформирует вертикальные опорные стойки коробки.
В результате могут возникнуть:
- трудности при открывании/закрывании полотна;
- перекашивание дверной створки;
- образование щелей и сквозняков.
Чтобы этого не произошло необходимо придерживаться следующих правил:
- приобретать дверь с коробкой необходимо у одного изготовителя и в одном комплекте;
- толщина полотна, а также его высота и ширина должны соответствовать параметрам коробки;
- элементы фиксации к двери и крепежи коробки к проему должны использоваться в определенном количестве и подбираться с учетом характеристики массы полотна.
Показатели массы зависят от:
- толщины стали;
- кол-ва ребер жесткости:
- наличия наполнителя;
- типа обшивки.

Оптимальный вес металлической двери – 70-80 кг с коробкой. Такие характеристики как недостаточная толщина и масса (менее 50 кг), как правило, встречаются у китайских производителей и свидетельствуют о плохом качестве.
Более подробную информацию относительно выбора их габаритов можно узнать на видео.
Что говорит ГОСТ о стандартных дверных проходах
Можно ли использовать входные двери нестандартных размеров
Так что в частном доме можно использовать любые двери нестандартных размеров.
Согласовать размеры входной двери в дом со стандартными показателями, конечно же, придется, но точно сопоставлять показатели нет необходимости. Достаточно постараться выдержать соотношение элементов между собой, а все необходимые замеры можно произвести прямо на месте строительства.
Размер металлической входной двери или конструкции из дерева может достигать 900-2000 мм в ширину и 2000-2400 мм в высоту. Расширять дверной проем дальше не имеет смысла, разве что речь идет не о строительстве жилого дома, а об общественном заведении, например, небольшой гостинице, кафе или очень большого дома.





































