Перечень необходимых материалов и инструментов
Для изготовления гидравлического пресса потребуются:
- измерительный и чертежный инструменты;
- угловая шлифовальная машинка с набором абразивных кругов для резки;
- молоток и зубило для удаления окалины или облоя;
- электрическая дрель или сверлильный станок;
- сверла по металлу или коронки для получения крупных отверстий;
- сварочный аппарат (инверторный или полуавтомат);
- струбцины для временной фиксации элементов при сборке;
- наждачная бумага;
- антикоррозионный грунт для металла и краска в банке или аэрозольных баллонах.
Для сборки базовой модификации пресса необходимы профильная труба, обрезки швеллера и уголок (номенклатура и длина проката определяются выбранной схемой). Также понадобятся болты или электроды, возвратные пружины. Для модели с внешним насосом потребуются пластины для усиления конструкции рамы в точке крепления цилиндра. В конструкции с электродвигателем применяют угловой редуктор от старой шлифовальной машины, для сборки кривошипно–шатунного механизма понадобятся шарикоподшипники и дополнительные заготовки из стального профиля.
Для изготовления гидравлического пресса требуется угловая шлифовальная машинка.
Критерии выбора домкрата: на что обратить внимание
Для самодельного пресса подходит бутылочный гидравлический домкрат с плоской плитой в основании, позволяющей просверлить отверстия для крепления. При подборе следует учесть мощность прибора, от которой зависит усилие сжатия. Для бытового оборудования используют домкраты грузоподъемностью от 2 до 20 т. Другим критерием при подборе является высота подъема, от которой зависит рабочий ход пуансона пресса. Например, 10-тонный Gigant HBJ-10 обойдется владельцу в сумму около 2 тыс. руб. и обеспечит передвижение поперечной планки на 230 мм.
Кран гаражный гидравлический своими руками
На первом этапе
потребуется сварить раму из стальных труб прямоугольного сечения. Она должна быть очень крепкой, чтобы выдерживать серьезные нагрузки. Если требуется, чтобы в кране менялся угол стрелы, то в стойке и стреле высверливаются отверстия, а на их место в качестве втулок устанавливаются трубки. Конструкция соединяется стальным стержнем и простым болтом с гайкой. В основание рамы ляжет устойчивая крестовина, укрепленная отрезками труб или металлическими пластинами.
К нижней части рамы приделываются колеса с тормозами, чтобы при помощи крана можно было перевозить двигатель или другой груз. Колеса подобного типа устанавливают на современные пластиковые контейнеры для мусора, стоящие на улице.
Второй этап
– установка домкрата. Для этого готовятся специальные упоры на стойке и стреле. Они должны быть подвижными, тогда угол крана будет меняться во время работы. Домкрат устанавливается под углом от основания рамы к стреле, он будет принимать на себя основную нагрузку при подъеме тяжестей.
Третий этап
включает установку стрелы, состоящей из отрезка трубы меньшего диаметра, с несколькими отверстиями. Она вставляется внутрь верхней части рамы, соединенной домкратом с основанием крана, и выдвигается на необходимую длину. Затем стрела крепится к основной трубе болтом и гайкой, а на ее конец устанавливается цепь и мощный крюк.
После установки стрелы остается только покрасить кран и приступить к испытаниям. В идеале он должен свободно поднимать до 400-500 кг. При необходимости стойка и стрела укрепляются сильнее, чтобы выдерживать большие нагрузки.
Уважаемые посетители сайта «Лабуда блог
» из представленного материала вы узнаете, как самостоятельно собрать гаражный гидравлический кран гусь, рассмотрим чертежи, пошаговые фото сборки, а так же видео испытания самодельного крана для демонтажа двигателя.
Каждый автомобилист за свою практику эксплуатирования автомобиля наверняка сталкивался с поломками двигателя, а не редко и с его заменой или капитальным ремонтом, но чтоб извлечь ДВС с посадочного места потребуется надежная лебедка или кран. Покупка специального оборудования обойдется как минимум 10 К, а устанавливать лебедку на потолок гаража не у всех есть такая возможность, потому как гаражные перекрытия довольно слабые.
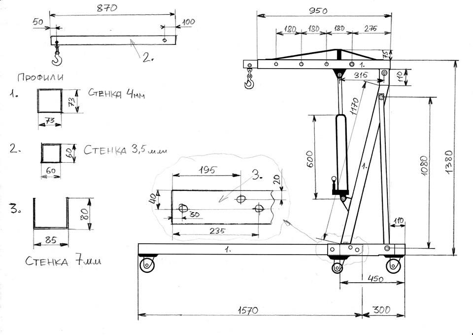
Сделать кран типа «гусь» с системой гидравлического поднятия стрелы вполне можно и самостоятельно, для чего понадобится 7 метров профиля 80х80 мм и 3 мм толщина стенки. Пара труб 89 по 700 мм и 76-900 мм. Домкрат пятитонник 5т, пластины толщиной 8 мм 4 шт. Автор в данном случае купил только колеса 2 шт обычных, 2 шт поворотных, 1 м шпильки М-14 В ходе испытаний самодельный кран спокойно поднимает 250-300 кг, так же перевозились бетонные бордюры общим весом 500 кг, все отлично.
Устройство и принцип действия
самодельного гидравлического крана «Гусь» по сути довольно простое, да и само название говорит само за себя) Состоит из опоры (разборная) с колесиками для передвижению по гаражу и подкату под автомобиль, вертикальной стойки с домкратом и непосредственно самой выдвижной стрелы с цепью и крюком.
Высота подъема короткой стрелы в нижней точке 90 см в верхней точке. Длинная стрела, низ 80 см, а в верхней 1800 мм и с выкрученным штоком домкрата низ 1400 мм и верх 2250 мм.
И так, давайте рассмотрим, что конкретно понадобится для сборки гаражного крана?
Материалы
- проф труба 80х80 длинной 7 м
- труба 89 мм по 700 мм 2 шт
- труба 76 длинна 900 мм
- колеса 6 шт, 2 поворотные, 2 обычных и 2 с тормозом
- металлические пластины 8 мм 4 шт
- домкрат 5 т
- цепь и крюк, шпилька М-14 длинна 1000 мм
Инструменты
- сварочный инвертор
- УШМ (болгарка)
- дрель
- набор гаечных ключей
Пошаговая инструкция по сборке гидравлического крана гусь своими руками.

Для начала следует ознакомиться с чертежами и схемами, а потом переходим к сборке.








Сначала изготавливается стыковая часть часть опоры, она же будет разборной.



Приваривается вертикальная стойка с распоркой в нижней опорной плоскости.

Установка и крепление домкрата.





Стрела на полный вылет.

Эксперимент в гараже, подъем скутера)

Вес мопеда 120 кг

Вот такой кран вполне можно сделать своими руками с минимальными затратами. Просто, бюджетно и компактно, потому как кран разборный.

Спасибо за внимание!
Обновлено: 04.03.2020
103583
Какими характеристиками должен обладать гаражный подъемник
Так как устройство будет использоваться в довольно стесненных условиях стандартного гаража, к нему выдвигаются определенные требования. Во-первых, оно не должно быть слишком большим — такой автомобильный подъемник, несмотря на высокую мощность, занимает много места, что очень нежелательно на такой небольшой площади. Во-вторых, рекомендуется отдавать предпочтение механизмам с небольшим вертикальным ходом, иначе вы рискуете упереться им в потолок.
Второе требование — грузоподъемность. Ее рассчитывают, отталкиваясь от видов работ, для которых разрабатывается автоподъемник. От предназначения зависят и габариты механизма. Если для обычной замены колеса подойдет и обычный домкрат, то для более масштабных работ понадобится автомобильный подъемник с платформой, хотя для таких ответственных действий рекомендуется прибегать к помощи профессиональной техники.
Виды подъемных механизмов
Прежде чем приступить к сборке гаражного крана своими руками, следует выбрать, какой механизм подойдет вам лучше всего
Машины для поднятия грузов относятся к довольно важной категории промышленного и бытового оборудования. Они предназначены для перемещения различных грузов в вертикальном или наклонном направлении
Полезная для автомобилистов функция — возможность двигать подвешенный на крюке груз в сторону, освобождая тем самым место для работы
Проектируя подъемник для авто, желательно дополнить его подобной опцией — так вы сможете расширить перечень действий, производимых в гараже
Полезная для автомобилистов функция — возможность двигать подвешенный на крюке груз в сторону, освобождая тем самым место для работы. Проектируя подъемник для авто, желательно дополнить его подобной опцией — так вы сможете расширить перечень действий, производимых в гараже.
Приобретение уже готового подъемника тянет за собой значительные финансовые расходы, так что многих владельцев гаражей интересует вопрос того, как самому сделать подобный механизм. Для начала следует разобраться, какие типы устройств существуют, чем они отличаются друг от друга, и какими функциями обладают. Классификацию производят по различным признакам: принципу действия, назначению, типу привода. Рассмотрим самые распространенные типы подъемных машин:
- Блоки — ручные механизмы, которые для поднятия груза используют только силу человеческих мускулов. Строение блока известно еще из школьной программы: он состоит из колеса с углублением вокруг, вращающегося вокруг неподвижной оси. Сквозь углубление проходит канат, веревка или металлическая цепь. Сила, необходимая для поднятия тяжестей, уменьшается в геометрической прогрессии вместе с увеличением количества блоков в системе.
- Домкрат — простое рычажное устройство, используемое для приподнимания одной стороны автомобиля. Домкраты могут быть как ручными, так и гидравлическими, пневматическими и электрическими.
- Таль — ручное или механизированное приспособление, состоящее из системы связанных между собой блоков. В зависимости от количества отдельных колес (шкивов), тали делят на двух-, трех-, четырехшкивные и т. д. Максимальное количество шкивов, которые используют подобные устройства — 12. Промышленная разновидность тали — полиспаст часто используется для перемещения грузов на кораблях.
Помимо стандартных подъемных устройств существуют специализированные установки:
- Тельфер являет собой усовершенствованную таль, оборудованную электрическим приводом. Благодаря такому дополнению, увеличивается мощность и грузоподъемность механизма, а при размещении тельфера на горизонтальной двутавровой балке появляется возможность передвижения грузов вдоль помещения.
- Журавль — элементарное приспособление, которое работает по принципу рычага. К одному концу рычага крепят крюк для подвешивания груза, а к противоположному — противовес. Высота поднятия грузов во многом зависит от положения самого механизма, так как длина хода рычага остается небольшой. При помощи журавля можно не только поднимать тяжести, но и перемещать их вдоль траектории, описываемой радиусом рычага. Часто журавль с успехом заменяет подъемный кран, но по причине больших габаритов использование его в гараже не практикуется.
Самодельный подъемник и мини-кран: недорого и эффективно
Строить дом в одиночку можно, но сложно. Особенно, если приходится класть каменные стены, поднимать на второй этаж кирпичи, или «закидывать» на перекрытие песок и мешки с цементом. Чтобы не надорваться. Сэкономить на заказе крана и, вообще, упростить себе задачу, многие пользователи FORUMHOUSE делают мини-краны и подъёмники. В этой статье мы расскажем о двух удачных конструкциях.
- Автоматический подъёмно-разгрузочный механизм для сыпучих материалов
- Самодельный кран на основе электротельфера для подъёма газобетона
Как сделать кран для подъёма шлака, опилок и песка
Я строю дом. Стараюсь обходиться без помощников. Хочу засыпать чердачное перекрытие утеплителем — 20 кубов опилок и 10 кубов шлака. Возраст уже не тот, чтобы бегать туда-сюда с вёдрами. Решил изготовить разборный автоматический подъёмник для сыпучих материалов. И вот, что у меня получилось.
Чтобы сделать самодельный подъёмник вам нужны:
- Электрический тельфер, мощностью 0.9 кВт с максимальной грузоподъёмностью 500 кг.
- Корыто или кузов от садовой тачки, грузоподъёмностью 250 кг.
- 12-я стальная двутавровая балка.
- 8 шт. подшипников для роликов.
- Электрический кабель.
Сначала изготовьте каретку. Как она устроена, видно на фото.
Закрепите балку, на торце которой приварена ограничительная пластина и кронштейн ролика движения каретки.
Внутренний ограничитель (упор для каретки на чердаке) разъемный. Тельфер в сборе с кареткой загоняется на двутавровую балку, после чего прикручивается ограничитель.
Важно! Балка установлена с уклоном 3 см на 1 погонный метр. За счёт этого каретка с грузом сама заезжает на чердак. Обратно на торец балки каретка вытягивается верёвкой, перекинутой через ролик
Эта же верёвка удерживает каретку, чтобы груз, после подъёма, бесконтрольно не поехал к месту разгрузки
Обратно на торец балки каретка вытягивается верёвкой, перекинутой через ролик. Эта же верёвка удерживает каретку, чтобы груз, после подъёма, бесконтрольно не поехал к месту разгрузки.
Тельфер ставится в горизонтальное положение. Уровень пользователь отрегулировал набором граверных шайб.
К балке приварены держатели струны, на которой закреплён электрический кабель.
Важно! Кабель подвижен. Подъёмник работает так:. Подъёмник работает так:
Подъёмник работает так:
- Загружаете корыто сыпучкой.
- Поднимете груз наверх.
- Загоняете корыто на место разгрузки.
- Для разгрузки, опустите корыто на перекрытие. Замки подъёмника автоматически отсоединяются.
- Произведите разгрузку.
- Вытяните каретку с помощью верёвки на торец двутавра.
- Опустите корыто вниз.
- Закрепите замки.
- Загрузите корыто.
- Повторите операцию.
Подъёмником я загрузил на чердак 12 кубов шлака. Устройство отработало на ура. Ни одной поломки. Разобрал и положил его для следующего строительства.
Подъёмник понравился участникам портала и у них появились вопросы к его создателю.
- Почему не использовали стандартную каретку? Ограничение по высоте?
- Насколько выгоден этот механизм? Не дешевле нанять пару разнорабочих. Сделать блок и поднять на второй этаж груз на верёвке? Думаю, дня за 3, управились бы. Опилки ещё легче. Можно и по лестнице в мешках потаскать.
Отвечаю по пунктам:
- В продаже не было нужной мне каретки. Те, чтобы были, дорогие и их нужно переделывать.
- Ограничение по высоте есть. От перекрытия до бруса всего 1.8 м. Пришлось вписать в эти параметры каретку с самосвальным корытом.
- Я строю не первый дом и, поднимать груз, через блок, вдвоём, то ещё удовольствие.
- С электрическим подъёмником работаешь один. Ни от кого не зависишь. Подъёмник пригодится для строительства бани, гаража, где он потом и останется.
М ини-кран, чтобы поднять блоки на второй этаж
И, в завершении статьи, самодельный подъёмник, который упростит вам строительство каменного дома.
Я возвожу дом из газосиликатных блоков. Когда дошли до второго этажа, блоки стало тяжело поднимать. Подумал и сделал вот такой кран из профильных труб и электрического тельфера.
Узлы крана крупным планом.
Высота мини-крана с поворотной стрелой наращивается. При необходимости, конструкция легко разбирается и перевозится в багажнике легкового автомобиля.
голоса
Рейтинг статьи
Как сделать кран-балку своими руками, материалы и инструменты, расчеты, сборка и установка
Использование гаража в качестве мастерской для выполнения ремонтных работ часто требует подъема тяжелых стройматериалов и автомобильных запчастей. Соорудив своими руками кран-балку, можно перемещать на автоматизированном механизме крупногабаритные предметы.
Необходимые инструменты и материалы
Для самостоятельной сборки конструкции необходимо предварительно подготовить набор инструментов и материалов. В частности, потребуются:
- трубы квадратного сечения для стоек;
- бесшовная труба сечением 100 мм для поперечной штанги;
- трубы сечением 110 мм для опор штанги;
- металлические уголки 100х100 мм;
- фиксирующие болты М16;
- тельфер;
- сварочный аппарат.
Проведение расчетов
Чтобы конструкция соответствовала размерам помещения и функционировала на необходимом рабочем пространстве, важно перед выполнением монтажных работ провести расчеты. Чертеж с указанием габаритов всех комплектующих можно подготовить самостоятельно либо воспользоваться специальным калькулятором. Стандартными параметрами в расчетах являются следующие:
Стандартными параметрами в расчетах являются следующие:
- высота не более 2,5 м для ремонта легковых автомобилей и проведения работ, требующих подъема и перемещения тяжелых предметов;
- грузоподъемность зависит от используемой разновидности тали и, как правило, составляет 800-1000 кг;
- ширина конструкции — от 4 м;
- размеры стоек — 120 см.
Если возникает необходимость работы с более габаритным оборудованием, грузоподъемный механизм можно дополнительно укомплектовать вертикальными стойками А-образной формы. Также по желанию допускается сделать конструкцию легко разбираемой, что актуально в условиях ограниченного пространства или в случае редкой необходимости подъема грузов.
Сборка кран-балки для гаража
Собирая своими руками грузоподъемный гаражный кран, необходимо последовательно выполнить ряд действий, согласно инструкции. Придерживаясь правил монтажа, удастся сделать конструкцию, которая исправно прослужит долгие годы. Ключевыми этапами сборки самодельного оборудования является подготовка каркаса и закрепление кран-балки для подъема, удержания и перемещения грузов.
Важно Конструктивные особенности стреловых пневмоколесных кранов
Как сделать каркас-основу подъемного механизма крана
Основная нагрузка приходится на стойки оборудования, поэтому для надежной фиксации конструкции требуется соорудить прочный каркас. Возведение элемента предполагает следующие действия:
Из металлических уголков при помощи сварочного аппарата делают ножки под кран и приваривают под углом 45 градусов с каждой стороны от трубы диаметром 110 мм. К стойкам привариваются металлические треугольники для создания распорок. Чтобы обеспечить движение конструкции к горизонтальному основанию, приваривают ролики по обе стороны стоек
Важно использовать ролики, предназначенные для металлических контейнеров, поскольку они способны выдерживать большой вес. Сверху конструкции располагают трубу, по которой передвигается подъемный механизм
Длина трубы зависит от размеров гаража и собственных требований к конструкции. Ролик для движения троса фиксируют на двутавр, которые предварительно приваривают по центру трубы. Для дополнительной устойчивости каркаса к балке приваривают трубу с квадратным сечением
Она располагается поверх балки таким образом, чтобы с каждой стороны оставался выступ 20 см. Поперечную трубу вставляют в трубу с квадратным сечением и делают сквозные проемы для фиксаторов с двух сторон. В отверстия вставляют крепежные болты и закручивают.
Установка грузоподъемного механизма
Главным элементом крана является подъемный механизм, который может быть ручным или автоматическим. Тефлер состоит из троса и лебедки, устанавливаемой сбоку стойки. Трос движется благодаря вращению роликов. Дополнительной фиксации элементов не требуется, достаточно закрепить подъемник на стойке.
Самостоятельно изготовленный кран можно оснастить подъемным оборудованием, которое применяется в лифтах. Подобные механизмы отличаются высокой надежностью и способностью выдерживать массивные предметы.
Чтобы упростить выполнение ремонтных работ, допускается подключить к грузоподъемному элементу электрический привод. Для автоматизации конструкции подойдет двигатель мощностью 300-500 Вт. Электропривод монтируется к основанию кран-балки.
Укомплектованная электрическим приводом конструкция находит широкое применение при масштабном ремонте гаража и разборе автомобиля на запчасти, когда требуется выполнить комплекс работ. По принципу действия ручной и автоматизированный краны не имеют существенных отличий.
Технология сборки крана своими руками
При наличии определенных навыков собрать механизм собственноручно не составит труда
Для этого важно составить предварительный чертеж конструкции, грамотно выбрать материалы и четко следовать инструкции сборки
Схемы и чертежи
Ниже представлены примерные чертежи гидравлического крана. Точные расчеты требуется производить самостоятельно, исходя из параметров конкретного гаража.
Выбор материала
Для самостоятельного построения гаражного подъемника рекомендуется сначала закупить весь требующийся материал:
- 3 стальных уголка с параметрами 7.5х7.5х0.8 сантиметров.
- «Червячный» редуктор, минимальная грузоподъемность которого начинается от 300 килограмм, а придаточный показатель – 60 килограмм.
- Крепкая стальная плита толщиной в один сантиметр. При наличии старого станка по металлу можно ее взять из него, посторонней помощи для этого не понадобится.
- Около 10 подходящих болтов.
- 2 плотных металлических цепи с диаметром от двух до трех сантиметров. Кран предназначается для работы с очень тяжелыми материалами – следует внимательно следить за качеством металла.
- Крюк.
- Стальной трос диаметром 5 миллиметров.
- 2 шпонки с разными параметрами в форме звездочки.
Пошаговая инструкция построения
Процесс сборки и установки самодельного гаражного крана не выглядит сложным:
- стальные уголки требуется установить на параллельных стенах;
- на них закрепить стальную плиту с помощью болтов «М8»;
- на плите зафиксировать «червячный» редуктор;
- установить шпонку большего размера на приводном вале;
- на заранее обозначенном месте просверлить дырку, провести в нее цепь и сомкнуть ее в кольцо;
- зафиксировать шпонку меньшего размера на выходном вале редуктора;
- просверлить в плите еще 2 отверстия;
- продеть через отверстия вторую цепь, где один конец окажется на маленькой шпонке, а на втором установлен крюк.
Самостоятельная установка крана имеет ряд важных преимуществ. Например, стоимость самодельного механизма почти в два раза ниже покупного.
Источник
Чтобы собрать модель этого вида, в первую очередь заготавливают основу. Для этого пластинки выбираются из стали. Их толщина должна быть не менее 2.2 мм. Затем, чтобы собрать подъёмник, необходимо закрепить боковые опоры. С этой целью струбцину применять необязательно.
Как пользоваться
Телескопическая стрела механизма может быть установлена в нескольких положениях. Гусь маневренный, им может управлять 1 человек. Оборудование поднимает достаточно тяжелые грузы за счет установленного домкрата, никаких дополнительных аксессуаров и устройств для перемещения тяжестей не нужно.
Для полноценного удобства использования собственного гаража иногда требуется оборудование для подъема тяжеловесных частей автомобиля. Оптимальным вариантом решения данной проблемы служит кран гидравлический. Уникальное строение позволяет совершать перестановку небольших грузов при незначительной затрате усилий автомеханика или владельца авто.
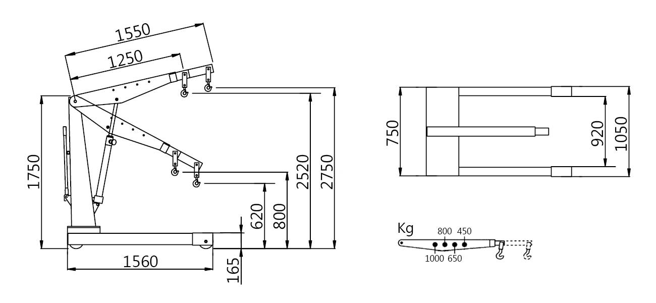
Гидравлический кран выполняется из прочного металла и характеризуется устойчивой конструкцией. Главный принцип строения механизма: устойчивая опора при небольшом собственном весе. Это помогает с легкостью поднимать грузы до трех тонн, но максимально – на два метра над землей.
Гаражный кран применяют для:
- снятия двигателя;
- подъема балок, мостов;
- перемещения габаритных узлов.
Кран содержит гидравлический привод и работает по системе сообщающихся сосудов. Метод позволяет сделать подъем плавным.
Стационарные
Стационарный кран устанавливается в больших автосервисах и надежно крепится к монолитному фундаменту. Механизм обладает стрелой с поворотной системой и оснащен ручным приводом. Позволяет проводить работы лишь с одним автомобилем неотрывно.
Переносные
Подкатной гидравлический кран обладает колесиками на основании. Опорой же выступают нижние металлические балки, от этого теряются показания грузоподъемности. Лучше выбирать кран с массивной треугольной опорой. По конструкции они подразделяются:
- на литые цельные опоры с ограниченным вылетом стрелы, но хорошими показателями грузоподъемности;
- на телескопические или складные – обладают увеличенным вылетом стрелы, но снижают грузоподъемность в разы.
Важно! Складные агрегаты нуждаются в четком следовании инструкции по поднятию разрешенного груза. Стрела не выдерживает и, при несоблюдении дозволенных норм, срывается
Установка грузоподъемного механизма
Главным элементом крана является подъемный механизм, который может быть ручным или автоматическим. Тефлер состоит из троса и лебедки, устанавливаемой сбоку стойки. Трос движется благодаря вращению роликов. Дополнительной фиксации элементов не требуется, достаточно закрепить подъемник на стойке.
Самостоятельно изготовленный кран можно оснастить подъемным оборудованием, которое применяется в лифтах. Подобные механизмы отличаются высокой надежностью и способностью выдерживать массивные предметы.
Чтобы упростить выполнение ремонтных работ, допускается подключить к грузоподъемному элементу электрический привод. Для автоматизации конструкции подойдет двигатель мощностью 300-500 Вт. Электропривод монтируется к основанию кран-балки.
Укомплектованная электрическим приводом конструкция находит широкое применение при масштабном ремонте гаража и разборе автомобиля на запчасти, когда требуется выполнить комплекс работ. По принципу действия ручной и автоматизированный краны не имеют существенных отличий.
Опытные автовладельцы говорят, что кран-балка в гараже нужен редко, но если уж потребовался, то заменить его нечем. Он используется для снятия и установки двигателя, реже – для перемещения других грузов. Покупные механизмы стоят дорого и занимают много места, поэтому оптимальный выход для частного мастера – кран балка своими руками из подручных материалов.
Для того чтобы сделать гаражный подъёмник своими руками, вам потребуется:
- Для стоек – труба сечением 100х100, длиной 2350 мм – 2 шт.
- Для поперечной штанги – круглая труба диаметром 100 мм и длиной 4150 мм.
- Для опор – труба круглая диаметром 110 мм и длиной 600 мм – 2 шт.
- Для оснований и диагональный опор – уголок 100х100 мм.
- Болты М 16 для крепления опор к штангам.
- Колёса (например, от складской тележки) – 4 шт.
- Ручная лебёдка грузоподъемностью до 1 т.
- Трос и ролики (например, от привода дверей лифта).
Кран-балка необходим для перемещения различных грузов
Устройство кран-балки
Механизм представляет собой П-образную конструкцию (мост) с подъемным механизмом. В крупных автомастерских обе части могут быть подвижными. Мост движется по рельсам, подъёмник – по пролётной балке. В гаражах для экономии места рельсы не прокладывают, а мост оснащают колёсами.
Устройство кран-балки состоит из опор, пролетной балки и подъемного механизма. Опоры свариваются из металлических труб и швеллера. В качестве грузоподъемного механизма используется ручная или, реже, электрическая лебедка.
Краны-балки относятся к типу «управляемая с пола» в отличие от тех, которыми манипулируют из кабины. Для облегчения труда механика гаражный кран может быть оборудован электрической лебёдкой
. Это увеличит расходы на изготовление и обслуживание, но при необходимости часто демонтировать двигатели и другие тяжёлые агрегаты, окупит себя. В сельской местности, где есть перебои с электричеством, недостаточная мощность или перепады напряжения, стоит отдать предпочтение ручной лебёдке. Особенно если речь идёт о личном гараже, а не частной мастерской.
Выше мы рассмотрели, из чего состоит кран-балка: опоры, пролётная балка и подъёмник. Изготовление проходит в несколько этапов:
- Сварить вертикальные опоры в виде перевёрнутой буквы Т с двумя диагональными опорами.
- Приварить пролётную трубу, чтобы получилась П-образная конструкция.
- Установить колёса.
- Приварить к одной из боковых опор лебёдку.
- Установить подъёмный механизм: зафиксировать ролики, протянуть трос и подвесить крюк.
Готовые чертежи можно найти в сети, но проще сделать самому, подогнав изделие под размеры гаража.
Важно Технические характеристики автомобильной крановой установки КС-3574 на базе Урал-5557
Чертеж крана
Если этот вид подъемника по каким-то причинам не подходит, можно изготовить гаражный кран гусь своими руками – это займёт даже меньше времени. Кран-гусь имеет Г-образную форму, где вертикальная стойка оснащена домкратом, а не лебёдкой. Его подкатывают под автомобиль спереди и поднимают двигатель, качая гидравлический домкрат. Стрела двигается вверх и поднимает груз.
Ещё одно интересное решение, которое поможет сэкономить место – подвесной кран-балка. В отличие от опорной конструкции, описанной выше, пролётная балка крепится к потолку посредством рельсы (двутавровой балки). Этот вариант требует достаточной высоты потолка и прочности постройки.
Все устройства должны быть испытаны с грузом, вес которого на 20 % превышает максимальную планируемую нагрузку.



































