Виды гаражных ворот
Для начала необходимо определить, какая именно модель будет использована для гаража. В наше время немало их видов, и хозяину нелегко определиться с выбором.
Секционные ворота
Представляют собой набор панелей (сдвижных секций), соединенных между собой петлями. Крепятся и передвигаются по специальным направляющим вверх. При открывании поднимаются одна за другой и заходят в нишу под потолком. Секционные ворота для гаража очень удобны.
Секционные складные ворота используются в частных домах, на фермах, паркингах.
Около частного дома
Большинство пользователей выбирает их за компактный размер.
Преимущества: удобство, защита от взлома, универсальны в использовании. Недостатки: высокая стоимость, складывающиеся конструкции подвержены порче.
Распашные ворота
Распашная модель – классическая гаражная конструкция, состоящая из двух створок, подвешенных на петлях к опорным столбам. Самая распространенная модель. Существует 2 вида: простые и автоматические ворота. Основными достоинствами считают простоту конструкции и надежность.
Недостаток – трудности, связанные с открыванием зимой: необходима чистка снега. Также требуется систематическая смазка петель. Хозяину несложно сделать своими руками именно такие ворота для гаража.
На фото представлен распашной вариант конструкции.
На загородном участке
Откатные ворота
Новая современная модель. Выглядят эстетично и просты в использовании. Принцип действия: внизу и вверху проема крепятся направляющие, по которым 2 створки съезжаются и разъезжаются. Бывает 2 вида открывания: автоматический и ручной. Преимущества: компактные, не занимают много места, долгий срок службы, надежность.
Недостаток – нужен систематический уход за роликовой системой: необходимо исключить попадание снега, воды, посторонних предметов.
Подъемно-поворотные ворота
Это наиболее практичные и удобные вертикальные конструкции. При открывании лист металла поднимается вверх и ложится горизонтально в виде козырька. Конструкция такого механизма несложная. Полотно крепится на раму и движется вокруг оси, меняя горизонтальное положение на вертикальное. Откидные ворота удобны в эксплуатации.
Чертеж подъемной конструкции
Достоинства: стойкость к коррозии и взлому, не требуют дополнительного места.
Недостатки подъемно-поворотных конструкций: высокая стоимость, подходят для проемов только прямоугольной формы, в открытом виде уменьшают высоту проема на 25 см. Сделать подъемные ворота для гаража на даче своими руками будет достаточно проблематично, так же, как и подъёмно-поворотные.
Разнообразие гаражных конструкций затрудняет выбор. Хозяин автомобиля прежде всего озабочен безопасностью своего транспорта. Только потом он учитывает остальные характеристики, такие, как удобство в эксплуатации, цена, габариты конструкции.
Таблица сравнения основных характеристик гаражных ворот.
Руководствуясь показателями в таблице, можно сказать, что выбор – только за покупателем. Все зависит от стоимости и надежности. Например, распашные и секционные модели хорошо ставить в домашнем гараже, но они не подойдут для гаражных кооперативов, так как имеют невысокую степень надежности.
Подъемно-поворотные ворота для гаража подойдут для любого строения, но их главный недостаток – высокая стоимость. Из-за невысокой цены для частного гаража подойдут распашные ворота. При необходимости их можно утеплить, автоматизировать и усилить дополнительным листом металла. К тому же несложно сварить ворота для гаража в домашних условиях.
В процессе установки
Плюсы и минусы профильной трубы как материала для ворот
Ворота из профтрубы могут быть изготовлены из проката различного сечения – квадратного, круглого, овального, прямоугольного. Для изготовления подходит оцинкованная, нержавеющая или углеродистая сталь, после монтажа рекомендуется окрашивание при помощи специальных антикоррозионных грунтовок и краски.

При выборе материала трубы надо учитывать запланированные нагрузки, к примеру, профилированная труба из нержавеющей стали больше подходит для облегченной конструкции, а вот оцинкованная или углеродистая используется для массивных распашных и откатных конструкций.
Также для сборки можно использовать профтрубы следующего типа:
- сварная горячекатаная труба предназначена для изготовления сварных конструкций, для которых не планируются серьезные нагрузки;
- сварная холоднокатаная труба применяется для изготовления каркаса калитки или небольшой створки;
- бесшовная труба является более надёжной и качественной, она применяется для устройства ворот.

бесшовная

горячекатная

холоднокатная Оптимальным вариантом при подборе материала будет горячекатаная труба с доступной стоимостью и прекрасными эксплуатационными свойствами. Она подходит для сварки каркасов и рам откатных и распашных конструкций, используется при монтаже автоматических систем открывания. Подобное ограждение будет смотреться стильно и солидно, обеспечивая необходимые требования, предъявляемые к безопасности.

Ворота из профтрубы: чем хороша данная конструкция для частного дома – преимущества
Когда планируется делать ворота из профтрубы, необходимо учитывать свойства материала, а также плюсы и минусы использования. Это позволит выбрать самый подходящий вариант. Что из положительных качеств отмечают:
- легкость работы с профтрубами;
- высокая прочность, способность выдерживать значительные нагрузки;
- приемлемая цена, что позволяет сократить затраты на строительство;
- аккуратность изделий, это обусловлено четкостью формы;
- появляется возможность выполнения монтажа самостоятельно благодаря сравнительно небольшому весу – профтрубы легко транспортируются, для этого необязательно привлекать помощников, при установке также можно работать самостоятельно.
Этапность выполнения работ
Выбираем размеры для будущих ворот. Тут хитростей нет. Смотрим здание и размер вашей машины.
Каркас для ворот. Для этого нам понадобится ровная и большая по размеру площадка. На ней не должно быть мусора и хлама. Можно, например, во дворе расположиться. Делаем подпорку из кирпичей, досок, бетонных блоков. Нам нужно приподнять труды над уровнем пола, для удобства проводимых работ.
Свариваем трубы, будьте особенно внимательны к перекосам.
Приступим к производству створ ворот. Створы гаражных ворот обязательно должны находиться в одной плоскости с рамой. Ради удобства работ со створами будем приваривать временные опоры снизу створок. Нужно будет взять 12 опор. И по 2 коротких пластины и по 4 длинных на трубах рамы.
Занимаемся сварочными работами и шлифуем тщательно углы.
Устанавливаем металлические листы. На ровной площадке отрезаем размеченный заранее лист. Потом лист надо приложить на своры и сварить с ними. Маленький лайфхак: положите листы на такой высоте, чтобы вам было удобно. Освободите подходы к листам.
Монтаж петель . Это заключительный этап работы со сварочным аппаратом. Привариваем петли по периметру вашей конструкции в тех местах, где будем прикреплять к стенам гаража.
Окрашивание и декорирование ворот. Один из любимых этапов большой семьи. Дети с радостью украсят ваши ворота различными рисунками. Если вы поклонник лаконичности и неброских цветов, можно окрасить в серебристый, черный цвет.
Изучите инструкцию производителя. Есть даже современные электронные замки. Сделайте навес над замком, поможет замку не заледенеть в суровую погоду зимы.
Утепляем дверь гаража. Климат, как сами знаете, суровый в России, бывают холодные зимы. А в некоторых районах температура постоянно держится на минус пятьдесят. Так что целесообразно утеплить ворота.
Чаще всего используют экономичный дешевый пенопласт. Есть специальные утеплители, много аналогов и заменителей. Есть даже вариант сделать теплые электрические двери.
Если есть время и силы сделать ворота самому, то делайте. Сейчас информации много имеется по любым видам работ. Пригласите друзей и семью поучаствовать в изготовлении. И потом каждый раз загоняя свой автомобиль в гараж, будете гордиться плодом своего творения.
Инструменты и материалы
Первое что необходимо сделать – приобрести инструменты и материалы для изготовления ворот.
В данный список входят:
- Уровень.
- Сварочный аппарат.
- Рулетка.
- Угловая шлифовальная машина с зачистными и отрезными кругами.
- Угольник.
- Профиль для изготовления створок. Оптимальный выбор – 25.
- Задвижка.Существуют различные системы, выбирайте оптимальную для себя.
- Петли.Здесь стоит выбирать, опираясь на два основных параметра – практичность и безопасность. Хороший выбор – внутренние петли на подшипниках, так как с ними не возникнет проблем в холодное время года.
- Обшивка.Здесь все зависит от вкуса владельца – профнастил, дерево, металлический лист – выбор достаточно обширен. Обычно используют листы металла толщиной от 2 миллиметров.
- Стальные уголки.Будут нужны для изготовления крепежной рамы. Советуем выбирать минимум 75 уголок, так как именно от уголка зависит прочность крепления створок, поэтому обвязка должна быть крепкой.
Сразу стоит определиться с местом, где будут свариваться ворота. Идеальный вариант – сварочный стол, но если к нему нет доступа, достаточно будет и ровной площадки. На ней укладывается швеллер, периметр которого должен быть не меньше самих ворот.
Установка дачных металлических распашных ворот своими руками (с фото)
Для установки металлических распашных ворот стойки сооружают на фундаменте, заложенном ниже глубины промерзания грунта. Обычно для установки столба бурят шурф глубиной 1,5—1,7 м. После того как застынет бетон, можно приварить к опорам петли и навесить створки.
В распашных металлических воротах для дачи створки навешивают на петли амбарного типа, которые крепят к воротным столбам по краям проема. В зависимости °т тяжести ворот к каждой стойке приваривают 2 или 3 петли. Створки Распахивают на улицу или во двор в зависимости от места крепления Петель и наличия свободного пространства перед забором или за ним.
Так как труба рамы имеет толщину стенки 1,5—2 мм, для усиления крепления под каждую нижнюю часть цилиндрической воротной петли нужно приварить отрезок уголка с полкой 25 мм. Такое же усиление потребуется и для стойки, если она сделана из профилированной трубы с толщиной стенки 2 мм.
Как показано на фото, для ворот из металла готовые створки приставляют к стойкам, опирая на кирпичи, выравнивают их по горизонтали и вертикали, фиксируют относительно стоек мягкой проволокой, после чего приваривают петли:
Для того чтобы стопорить ворота в закрытом, а при необходимости и в открытом положении, понадобятся задвижки в виде шпингалета — по одной на каждую створку (если у ворот не предусмотрена верхняя перемычка) или по две (если ворота сверху перекрыты). Задвижки можно купить готовые, а можно сделать самостоятельно, приварив к раме отрезки оцинкованной трубы 1\2 и вставив в нее стальной пруток диаметром 12 мм с загнутым концом. В землю в соответствующем месте нужно вбить или забетонировать другой отрезок трубы, для того чтобы шпингалет прочно фиксировал створку.
Обшивать рамы профлистом или листами поликарбоната можно как до монтажа, так и после, когда они уже будут стоять в проеме. Крепят эти материалы саморезами по металлу. Желательно так подобрать направление обшивки, чтобы листы не имели швов в пределах одной створки. Предварительно раму следует покрыть грунтом и краской. Если предполагается обшить створки листовой сталью или кровельным железом, то целесообразно вначале обшить раму листами с помощью сварки, а уже затем монтировать на ней навесы и задвижки. Разумеется, грунт и краску наносят после сварочных работ.
Для прохода людей в воротах из металла калитку делают небольшую, обычно из тех же материалов, что и забор.
Далее описано, как сделать металлические ворота на подвеске.
Подключение автоматики
Автоматика устанавливается по желанию владельцев, с целью упрощения контроля работы ворот.
При выборе модели внимание уделяется мощности электропривода, от которого будет зависеть скорость, срок эксплуатации автоматики. Привод представляет собой рычаг, который за счет редуктора контролируется двигателем
Привод представляет собой рычаг, который за счет редуктора контролируется двигателем.
Кроме привода в комплекте поставляются:
- сигнальная лампа;
- фотоэлементы;
- блок управления;
- замок (отвечает за разблокировку ключей).
По принципу работы электроприводы бывают:
- Линейными. Пользуются наибольшим спросом. Цена доступна. Просты в монтаже. Открываются наружу. Блок управления контролирует работу двигателя и в нужный момент замедляет, тем самым продлевая срок службы механизму.
- Гидравлическими. Механизм уступает по надежности линейному, электромеханическому. Принцип работы основан на гидравлическом насосе. Движение створок контролируют гидроцилиндры. Установленные датчики гарантируют безопасность.
- Электромеханическими. Комбинированный вариант автоматического и на случай отключения электроэнергии ручного открывания, закрывания створок.
- Рычажными. Движение рычагов позволяет створкам перемещаться. Этот тип привода обеспечивает максимально плавное открытие ворот и прочное закрытие. Для защиты от попадания влаги, замерзания воды в механизме допускается подземная установка электропривода. Пример фурнитуры, которая обеспечивает плавное открытие дверей, ‒ это петли с подшипниками торговой марки Rolling Center.
Большинство владельцев автомобилей выбирают линейный механизм. С его помощью возможно открытие створок наружу и внутрь помещения.
Дальше устанавливается приемник в разъем платы управления. Он отвечает за подачу, распознавание сигналов управления. Здесь же ставятся перемычки — для тестирования работы привода.
Последними на очереди к подключению идут фотоэлементы. К ним должна прилагаться отдельная перемычка. Фотоэлементы подсоединяются к плате согласно предложенной схемы. Они защищают автомобиль от удара при торможении в воротах. Высота крепежа ‒ от 50 до 70 см.
Следующий шаг ‒ выставление программы на пульте управления. Относительно этого этапа нет стандартных рекомендаций, поскольку у каждого производителя своя инструкция по программированию
Важно просто ее соблюдать
Популярными производителями ворот для гаражей, автоматики к ним считаются компании «Алютех» (Белоруссия) и «Дорхан» (Россия).
Разобраться подробнее с видами дверной автоматики, что есть в продаже, узнать о других нюансах работы механизмов, вы сможете из статьи про распашные ворота из профнастила, ссылка на которую приведена в разделе выше.
Подготовительный этап
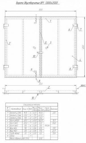
Перед тем, как сварить ворота, рисуется схема с соблюдением всех необходимых размеров будущего изделия. Первым делом подбирают соответствующие размеры высоты и ширины ворот. Минимально допустимой является та ширина, когда между дверцами автомобиля и рамой остается зазор равный 30 см. Обычная ширина гаражных ворот 2,5-3 м, реже до 5 м.
Также нужно учитывать расстояние между рамой и перпендикулярной стеной, оно должно составлять 80 см и более. Средняя высота равна от 2 до 2,5 м.
Затем выбирают, из чего будет выполнен каркас. Это может быть уголок или профильные трубы.
После этого подготавливают необходимые материалы и инструменты. Профтрубы и уголок нужно выбирать шириной не менее 2,5 см, иначе у конструкции не будет достаточной жесткости.
Отличный вариант для облицовки — использование металлических листов не тоньше 1,5 мм. В процессе работы так же пригодятся:
- обезжиривающее средство для металлической поверхности,
- краска для металла,
- грунтовка.
Из инструментов потребуется:
- сварочный аппарат,
- дисковая шлифовальная машина,
- ножницы для резки металла,
- строительный уровень.
Необходимые материалы и инструменты
Перед тем как сварить гаражные ворота, необходимо подготовить материалы и инструменты. Что касается первых, то нужно приобрести:
- стальной уголок 63 х 63 х 5 мм или профильную трубу 60 х 30 х 2 мм;
- профильную трубу 40 х 40 и 40 х 20 мм;
- листовой прокат толщиной от 1,5 до 3 мм;
- навесы;
- стальные прутья и трубки;
- материалы для антикоррозийной обработки, грунтования и покраски металла;
- замки.
Рисунок 1. Петли для гаражных ворот.
Еще могут понадобиться анкеры, если рама ворот будет крепиться к проему с их помощью.
Для ее изготовления можно использовать или уголок, или профильную трубу. Профтруба намного легче уголка, но после ее установки габариты проема будут несколько меньше, чем после монтажа коробки, сваренной из уголка. Каркасы створок можно сварить и из уголка 50 х 50 х 5 мм, но они будут тяжелее, чем сделанные из профтрубы. Для навешивания ворот нужно купить 6 навесов диаметром не менее 25 мм. Если в одной из створок будет установлена калитка, то для нее нужно приобрести еще 2 навеса. Все они должны быть оснащены или подшипниками, или шариками (рис. 1). Из трубок и прутьев будут изготовлены внутренние запоры. Для этого можно использовать стержни сечением 18 мм и трубы с внутренним диаметром 20 мм.
Для работы понадобятся следующие инструменты:
- сварочный аппарат и электроды;
- шлифмашинка с зачистными и отрезными кругами;
- рулетка;
- уровень;
- угольник;
- перфоратор (для сверления отверстий под анкеры);
- дрель со сверлами.
Для соединения заготовок из уголков и приваривания к ним воротных навесов можно пользоваться электродами толщиной 3 и 4 мм. Однако, сваривая профильные трубы и крепя к ним обшивку, лучше применять электроды не толще 2,5 мм, чтобы не прожечь стенки профтруб и листы.
Собирать ворота следует на абсолютно ровной поверхности. Если нет сварочного стола, то выровненный пол гаража вполне подойдет для работы (carextra.ru).
Из каких материалов можно сделать

Распашным воротам из профильной трубы при правильном изготовлении и эксплуатации гарантирована долгая жизнь
Несмотря на широкий выбор строительных материалов, надёжные распашные ворота можно сделать несколькими способами.
Вариант №1:
- Металлический уголок 50х50з3 мм – для изготовления каркаса створок и усиливающих его укосин либо поперечин.
- Листы холоднокатанного металла толщиной 2,5-3 мм. Крепятся к каркасу с выпуском в 3 см. Используется сварка.
- 4 петли сечением 25 мм, размеры 30х160 мм. Привариваются на листы металла через дополнительные металлические пластины.
Вариант №2:
- Труба прямоугольного сечения 40х40х2,5мм или 50-50-2,5 мм для каркаса створок и усиливающих элементов.
- Листы металла толщиной 1,5-2 мм, фиксируются к каркасу заклепками.
- 4-6 петель.
- 4 металлические пластины под петли.
Для устройства стоек ворот используются трубы 80х80х3 мм. Верхнюю балку, усиливающую проём, изготавливают из швеллера №16 (высота полок 160 мм) или №18, в зависимости от ширины ворот. Порог можно сделать из тех же материалов: профильной трубы или металлического уголка.
Наиболее надёжный способ устройства распашных ворот в гараже – смонтировать под них раму из швеллера №24 и установить её на этапе строительства стен и перекрытий. Если такой возможности нет, монтируют усиливающие проём элементы: верхнюю балку, порог и стойки для створок.
Справка! Предложенные варианты материалов для устройства распашных ворот в гараже универсальны и подходят для любых строений: кирпичных, бетонных, деревянных, из пено- и газоблоков. Единственное исключение – гараж из металлопрофиля. Для таких строений нужны облегчённые конструкции.
Для гаражей из металлопрофиля делают «гибкие» ворота, такие, чтобы каждую створку можно было с минимальными усилиями прижать к проёму. Каркас таких конструкций состоит из гнутого профиля открытого сечения (г- или п-образного). Створки устанавливаются на 4-6 петель.
Ворота с жёстким каркасом проектируют и изготавливают таким образом, чтобы створки подходили к проёму с минимальным зазором и сразу закрывались на предусмотренные запоры, без приложения дополнительных усилий. Точные данные о требуемых материалах в конкретном случае можно получить посредством вычислений.
Виды и типы ворот для гаража
В настоящее время для защиты гаража от проникновения посторонних лиц существует несколько типов самых разных ворот.
Следует отметить, что наиболее популярными и надежными считаются именно сварные распашные ворота, которые к тому же можно сделать своими руками.
Видео:
Достаточно редко на гаражах встречаются ворота откатного типа, схема работы которых подразумевает наличие дополнительно места под двигающуюся створку.
Несмотря на кажущуюся простоту их конструкции, все же сделать их своими руками достаточно сложно, так как требуется установка дополнительных элементов, которые будут обеспечивать их ход.
Такой тип ворот больше подходит для больший ангаров и загородных участков, а использование в качестве защиты пространства гаража нецелесообразно.
Конечно, они удобны в использовании, а кроме этого не занимают лишнего места, однако сделать их своими руками без специального оборудования и знаний не получится.
Также в качестве ворот для гаража некоторые водители используют подъемно-секционные и ролетные изделия.
Несмотря на свою простоту и удобство в использовании, такие ворота не всегда отличаются высокой практичностью и надежностью.
Если попытаться собрать их своими руками, то нельзя гарантировать, что они будут работать правильно и смогут обеспечить надежную защиту автомобилю.
Видео:
Если принято решение сделать ворота на гараж своими руками, то лучше всего остановить свой выбор на сварной металлической конструкции распашного типа.
В этом случае удастся самостоятельно спланировать не только их особенности конструкции, но и учесть размерные характеристики гаражного пространства.
Кроме этого, можно будет спланировать как ход работы, так и финансовые затраты на необходимый материал.
Расчёт
Произвести расчёт можно вручную, с использованием формул, либо с помощью специального калькулятора
Профессиональный расчёт прочностных характеристик и геометрических параметров материалов для изготовления гаражных ворот выполняют с помощью комплекса сложных математических формул. Учитывают следующие факторы:
- жёсткость проёма;
- депланирующие деформации при заданных размерах створок и использовании определённого материала;
- прочность на изгиб;
- скручивающие усилия (от напора ветра, весовой нагрузки, механических воздействий).
Для выполнения точных расчётов разработаны специализированные калькуляторы. При необходимости можно ими воспользоваться.
Предварительный этап работ
Перед тем, как приступить к непосредственной сборке сварных ворот для гаража своими руками, следует все тщательно спланировать и составить подробный чертеж каждого элемента конструкции.
Для начала необходимо провести замеры самого проема, на основании которых составить небольшой эскиз.
Также на этом этапе следует правильно рассчитать все необходимые материалы и подготовить весь инструмент, который может потребоваться в процессе сборки.

Важным моментом на данном этапе является правильный расчет высоты и ширины створок.
В этом случае следует учитывать то, что минимально допустимая ширина конструкции готового изделия должна находиться как с правой, так и с левой стороны на расстоянии от машины не менее чем в тридцати сантиметрах.
Также необходимо помнить, что расстояние от самой воротной рамы непосредственно до перпендикуляра стены должно составлять не менее восьмидесяти сантиметров.
Высоту ворот под обычный легковой автомобиль лучше всего взять со значением не менее двух метров. Под микроавтобус она должна составлять уже не менее двух с половиной метров.
Одним из основных элементов ворот для гаража является рама, которую рекомендуется сварить из стального уголка.
Видео:
https://youtube.com/watch?v=5WEpOnTbuao
Под каркас створок, помимо уголка, можно также использовать и профиль прямоугольной формы, который затем зашиваются листами металла.
Петли под створки рекомендуется выбирать усиленные с наружным открыванием.
Проведя все предварительные расчеты и подготовив необходимый материал с инструментом, можно приступать к сборке сварных ворот своими руками.
Рама под гаражные ворота
Рама под гаражные ворота изготавливается с использованием уголка 75 – 100 мм. Иногда пользуются профтрубой 60 на 40 мм. Можно пользоваться обеими вариантами, в зависимости о того, что вам удобнее.
Если для изготовления рамы вы используете профтрубу, то её сварка должна производиться в ребро (в этом случае, длина боковых стоек будет меньше высоты проема на 80 мм).
Если для изготовления рамы вы используете уголок, то сваривание концов должно производиться под 45°, чтобы сделать все точно, пользуйтесь стуслом или строительным уголком. Направление угла должно быть к проему.
Первым делом нужно произвести нарезку заготовок под раму. Это делается на ровной горизонтальной поверхности – бетонной стяжке, асфальтной площадке.
После выставления заготовок и состыковки концов, нужно провести проверку диагоналей. Их длина должна быть одинаковой.
Для начала нужно немного «прихватить» заготовки при помощи сварки, после чего, нужно опять провести проверку диагоналей и плоскости. Если все хорошо, детали свариваются окончательно.
Если произошел перекос рамы (бывает и так), она может быть вытянута при помощи ударов молотка, или пользуясь предварительно приваренным стальным прутом как рычагом.
После окончания работ по каркасу, он должен быть примерен к вашей постройке (во избежание неприятных сюрпризов в дальнейшем).
Должна быть произведена зачистка всех сварных швов при помощи болгарки.
Изготовление и монтаж створок
Есть только один способ, как правильно сварить гаражные ворота – надо чётко рассчитать будущие размеры конструкции и запасные зазоры, необходимые для чёткого закрывания и открывания дверей. Опытные строители рекомендуют отступать от пола 2-3 см, от потолка 1-2 см и по 5 см от боковых стен для крепления петель. По полученным расчётам отрезают профильные трубы и делают на их краях срез под углом в 45 градусов.
На сварочном столе или подготовленной поверхности раскладывают металлические трубы, подгоняют их по длине и сверяют углы. При помощи сварочного аппарата создают монолитный прямоугольник подходящей формы. Прежде чем приступать к зачистке швов, готовую конструкцию будущих дверей прикладывают к раме с наваренными на неё петлями.

Монтаж гаражных ворот Источник tildacdn.com
При совпадении размеров можно приступать к монтажу готовой конструкции. На трубах обозначают места крепления фурнитуры и приваривают её. Каркас ворот проверяют, надевая на петли рамы – если он встаёт как влитой, можно приступать к дальнейшему этапу. При помощи рулетки устанавливают середину горизонтальных поперечин. От неё отступают по 1 см и приваривают вертикальные поперечины, чтобы между ними было 2 см.
Полотно разрезают на 2 равные части, при помощи болгарки удаляют торчащие куски трубы. Для укрепления створок можно установить дополнительные горизонтальные или диагональные поперечины. Все сварочные швы зачищают, конструкцию красят и устанавливают на петли. Для предотвращения открывания дверей внутрь, к верхней части рамы наваривают контрольную профильную трубу, которая будет ограничивать их ход.
Обшивка створок металлическими листами
Недостаточно знать как сварить ворота на гараж из профильной трубы своими руками, важно и красиво обшить их, чтобы итоговый результат радовал глаз. Чаще всего для облицовки используют оцинкованные железные пластины толщиной в 2-3 мм
Их размечают и обрезают болгаркой, шлифуют края, удаляя металлические заусенцы и стружку. С боковых сторон листов также делают небольшие прорези под петли.

Гараж обшитый металлическими листами Источник nick-stroy.ru





































