Выбор места для строительства
Прежде чем начать проектировать гараж на две машины, необходимо определиться с его местоположением на загородном участке. Потребуется учесть следующие факторы:
- Подъездные пути. Они должны быть устроены так, чтобы при парковке автомобиль не мешал, в том числе при одновременном и поочередном въезде внутрь двух машин сразу.
- Место для распахивания створок. Если ворота в гаражное строение будут распашными, необходимо предусмотреть, чтобы они не задевали другие конструкции и не занимали много места.
- Рельеф, наклон почвы. Эти моменты важны при выборе системы фундамента и расчете затрат на материалы.
- Глубина подземных вод. Данный фактор необходимо знать, чтобы избежать риска подтопления здания в весеннее половодье.
- Наличие коммуникаций под землей. Если под выбранным местом пролегают, например, канализационные трубы, придется усиливать фундамент, при этом обустроить ремонтную яму при необходимости не удастся, поэтому лучше выбрать другой участок для строительства.
- Удаленность других объектов – дома, огорода, хозпостроек, источника водоснабжения.
После выбора места можно обозначить будущее строение на плане участка.
Индивидуальные параметры
Выбор ширины
Этот габарит является одним из важнейших при составлении плана постройки будущего гаража. От выбора ширины зависит всё – и количество строительных материалов, которые будут необходимы в процессе, и функциональность будущего строения.
Естественно, ширина гаража не должна равняться сумме ширины двух автомобилей. При подсчётах ширины необходимо учитывать: ширину автомобилей, расстояние между авто и прогал от машины до стены. Однако гараж часто используется как помещение для хранения колясок, саней, велосипедов. Тут может быть большое количество стеллажей для инструментов, запчастей и деталей.
При расчёте расстояния между стеной и автомобилем учитывается много факторов. При необходимости хранения велосипеда нужно оставить лишний метр ширины. Если автомобиль пятидверный, то до стены должно быть минимум 50-60 см, если автомобиль трёхдверный, то 70-90 см.
При наличии полок, стеллажей или шкафов в гараже необходимо учесть их ширину, а также оставить дополнительное место. Оно нужно для свободного подхода к ним и автомобилю. В среднем к ширине добавляют 40-70 см с той стороны, где будет большое количество полок.
Выбор длины
Многие владельцы железных коней располагают шкафы, стеллажи в дальней части гаража. В данном случае придётся увеличивать не ширину, а длину. На расчёт длины гаража влияют такие факторы, как:
- длина автомобилей;
- необходимо оставлять 90-110 см от автомобиля до ворот – это позволит удобно выходить из гаража;
- при наличии мастерской в задней части гаража необходимо оставить на ней 2-2,5 метра, помимо парковочных мест;
- при наличии задней двери во двор или в соседнее строение необходимо увеличить длину гаража на 50-60 см для удобного прохода.
Выбор высоты
Чаще всего высота легкового авто не превышает роста человека – около 180 см. Тогда расчёты ведутся так, чтобы водителю было комфортно перемещаться в помещении.
По техническим нормам высота гаража не должна быть ниже, чем 2 м. Однако данный показатель почти нигде не используется, ибо человеку ростом от 180 см просто неудобно перемещаться по гаражу. Высоту потолка рассчитывают, учитывая высоту автомобиля:
- прибавляют полметра для удобства открывания задней двери автомобиля;
- учитывается наличие освещения и прочих приборов на потолке;
- прибавляется высота, если есть раздвижной механизм;
- необходимость создания запаса.
Средние высоты гаражей для легковых авто – 240-260 см, для внедорожников – 3 метра и более. При установке в новом гараже подъёмника высота гаража увеличивается до 4,5 – 5 м.
Плюсы и минусы гаражей на 2 машины

Для подавляющего большинства автомобилистов гараж – и ремонтная база, и мастерская, и хранилище самых разных вещей. Поэтому реальный размер помещения часто не совпадает с желаемым и требуемым. Многие владельцы машин сходятся во мнении, что второе место для авто никогда не будет лишним. Даже если сейчас в наличии одна машина, всегда есть вероятность приобретения второй.
На заметку! Ширина одноместного гаража должна быть такой, чтобы в нём можно было свободно обойти авто со всеми открытыми дверцами. В такое помещение при желании можно поставить и вторую машину. Это один из бюджетных вариантов двухместного.
Исходя из этих и других соображений, можно сделать выводы о «плюсах» и «минусах» двухместных гаражей.
В числе их преимуществ отмечают:
- достаточный простор для выполнения ремонтных и иных работ;
- возможность сделать и смотровую яму, и погреб;
- можно установить солидное количество стеллажей и полок.
Но, несмотря на всю привлекательность таких построек, они имеют один существенный «минус» – затраты на их строительство во многом сопоставимы с расходами на возведение небольшого дома.
Проект гаража 6 на 6 метров
Итак, с размером определились, далее нужно разработать проект гаража 6 на 6. И начинать стоит с выбор материала. Строить его из кирпича я вам не советую. Дорого, нужен мощный ленточный фундамент, стены будут холодными, придется утеплять.
Пеноблоки – более рациональное решение. Конечно, гараж 6 на 6 из пеноблоков – тоже постройка недешевая, но тут уже будет хотя бы минимальная теплоизоляция. О том, сколько нужно пеноблоков на гараж 6 на 6, писать не буду. Мне-то нетрудно посчитать, но опять же, проект гаража 6 на 6 – понятие растяжимое. У кого-то он чуть больше, у кого-то – чуть меньше, кто-то потолок сделает трехметровый, а кто-то сделает пониже, лишь бы машина смогла заехать.

Гараж 6 на 6 метров позволяет легко расположить 2 автомобиля.
Деревянный гараж 6 на 6 привлекателен с точки зрения цены, особенно, если выбрать каркасный вариант. В этом случае можно ограничиться недорогим свайным фундаментом. Но нужно быть готовым к тому, что такой гараж требует постоянного ухода. Ежегодно придется что-то поправлять, подкрашивать. Дерево – материал красивый, экологичный, но чувствительный ко множеству факторов окружающей среды, в числе которых:
- Ультрафиолетовое излучение;
- Сырость;
- Микроорганизмы;
- Насекомые;
- Грызуны.
Можно использовать специальные пропитки, они замедляют процесс разрушения дерева. Но защитные покрытия нужно периодически обновлять. Можно, конечно, использовать породы дерева устойчивые к внешним воздействиям, например, лиственницу. Но тогда гараж будет далеко не бюджетным, особенно если речь идет не о каркаснике, а о гараже из бруса.

Каркасный гараж 6 на 6 метров на первый взгляд имеет довольно сложную конструкцию, но возводится он очень быстро.
Но существует прекрасная альтернатива дереву – металл. Вы можете построить каркасник, обшитый сэндвич панелями. Цена – как минимум раза в полтора дешевле, чем кирпичный. Каркасник из сэндича получится теплый, ремнотопригодный, не требующий особого ухода. Стальной каркас – практически вечный. Панели можно заменять. И есть еще один интересный нюанс.
Проекты домов из бруса 6 х 6 с мансардой: чертежи и внутренняя планировка
Когда встает вопрос о планировке дома с площадью 6 на 6, следует учитывать, для каких целей он строится. Если это домик для летнего загородного отдыха, то основную часть дома отводят для комнат жилого назначения, а для отдыха оставляют минимальное количество места. Как правило, зону отдыха в дачных домах обустраивают на террасе или рядом с домом на специальной площадке.

Правильное расположение комнат с террасой для отдыхаИсточник Skpomestie.ru
А вот если дом предназначен для проживания в нем круглый год, то площадь для жилых комнат остается небольшая. Ведь нужно место для общих помещений, таких как кладовая или гардеробная, которые помогут содержать дом в чистоте и порядке.

Рациональное расположение комнат с площадью для технического помещения или гардеробнойИсточник Domostroev.com
При планировании двухэтажного дома с такой площадью есть один существенный недостаток. Места для лестницы на второй этаж или мансарду остается очень мало. Как итог – она будет очень крутой, что значительно затруднит по ней подъем пожилых людей и детей.
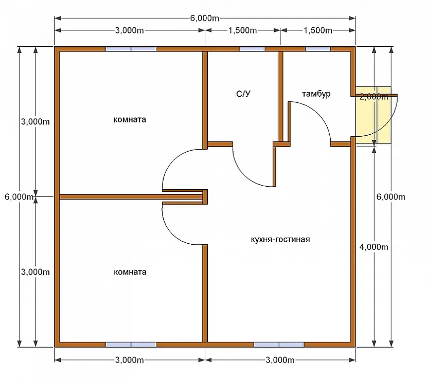
Для одноэтажного дома
Одноэтажный дом площадью 6х6 имеет не так много вариантов планировки, как двухэтажные дома. Ведь на одной площади необходимо расположить все необходимые помещения и разделить их тонкими перегородками.
Если в доме будет проживать семья из двух человек, то можно сделать просторную кухню, спальню и санузел. Тогда каждое из помещений будет иметь достаточную площадь для комфортного проживания.

Планировка дома для семьи из двух человекИсточник Ooo-skp.ru
Когда строительство планирует семья с ребенком, то необходимо будет оборудовать детскую комнату. Для нее следует отнимать площадь от кухни и родительской спальни.

Планировка дома площадью 6х6 с двумя изолированными комнатами для родителей и ребенкаИсточник Dobrodom75.ru
Не стоит забывать и об обогреве дома. При планировании одноэтажного проекта предусматривается установка печи посередине дома. Такое расположение позволит одинаково обогревать все помещения, а так же разделит кухню и помещения для отдыха.
Для двухэтажного дома
Если предусматривается планировка дома 6х6 с мансардой, то жилая площадь будет уже не 36 кв.м, а 40-44 кв.м. При выборе крыши стоит заранее определиться с количеством спален на чердаке. Если будет одна большая спальня, то крышу можно сделать двухскатную.

Правильное расположение комнат в доме с мансардой и одной комнатойИсточник Daromdoma.ru
А когда в плане указывается две или три небольших комнаты, то стоит остановить выбор на вальмовой крыше. Под такой крышей можно сделать дополнительные помещения, например, гардеробную.

Расположение комнат на первом и втором этаже с отведением места для гардеробнойИсточник Domikbani.ru
На первом этаже здания располагаются кухня, гостиная, санузел и прихожая. А так же уделяется место и для лестницы. А в мансарде уже обустраиваются спальные комнаты.
Планировка такого дома имеет значительные преимущества. Спальные комнаты закрыты от посторонних людей, так как располагаются этажом выше. К тому же расширение жилой площади за счет строительства мансарды позволяет поставить дом для небольшой семьи в ограниченном пространстве.
Чтобы получить дополнительное пространство для отдыха, то следует на втором этаже сделать небольшой балкон или лоджию. Там можно поставить пару кресел и стол, и таким образом получить дополнительное помещение.

Рациональное расположение комнат дома с мансардой и отведением места для оборудования балконаИсточник Banivsem.ru
Специалисты рекомендуют проводить строительство домов такой площади именно с мансардой. Тогда само строение будет выглядеть пропорциональным, а на несущую конструкцию не будет создаваться большая нагрузка, а это защитит от сильной усадки.
При планировании места установки лестницы стоит помнить, что ее минимальная ширина составляет 1 метр. Тогда по ней можно будет безопасно передвигаться и избежать травм.
Для санузла отводится небольшое помещение, в нем лучше располагать не ванную, а душевую кабину: тогда места понадобится меньше.

Рациональная планировка санузла на первом этаже дома с мансардойИсточник Autogear.ru
Если один из членов семьи имеет надомную работу, то на первом этаже можно расположить изолированный кабинет в дальнем углу дома.
Материалы для строительства
Сегодня гаражи возводят из следующих материалов:
- кирпича;
- бетонных камней;
- керамических камней;
- бетонов;
- стеновых панелей.
Кирпич является одним из самых популярных стройматериалов. Многие отдают предпочтение облегченным блокам. Сегодня также востребованы каркасные конструкции.
У кирпичного сооружения большой вес, и на первом этапе сооружается ленточный фундамент. Его глубина варьируется в пределах: 0,6 – 1,2 м, при этом ширина ленты равняется 0,4 м. Чтобы сделать фундамент более прочным, используют дополнительно бутовый камень или арматуру.
Бетонная смесь полностью затвердеет через 3 недели. Ускорить процесс высыхания позволяет добавление различных присадок. Чтобы избежать появления трещин, фундамент время от времени смачивают и накрывают брезентом. Основание необходимо утеплить и гидроизолировать. Применяя сходную технологию, над поверхностью грунта делают цоколь.
Для кладки стен лучше выбирать толщину в полтора кирпича. Кубатура одной стены рассчитывается по следующей формуле: высота*ширина*толщина. Необходимо прибавить все плоскости. Далее полученное значение следует поделить на объем стандартного кирпича (0,00195 м3). В результате получается число блоков, необходимое для строительства.
ВАЖНО! Толщина шва для кладки из обычного кирпича должна быть не меньше 10 мм. Каждые 4 или 5 рядов стена усиливается стальными арматурными прутьями, которые закладываются в горизонтальные швы
Углы с выступами укрепляются с помощью вертикальной арматуры.
Гаражные ворота устанавливаются перед кладкой стен. Надежное крепление обеспечивает приваривание металлических стержней к раме. Правильность расположения ворот помогает проверить строительный уровень.
Крышей гаража обычно служит двускатная кровля. Она хорошо защищает от атмосферных осадков, а пространство под ней часто используют для хранения сена или стройматериалов.
Оптимальный гараж на 2 машины из строительных блоков – быстровозводимое сооружение. Строительный материал отличается легким весом. Один блок по объему равен шести кирпичам. Проект обойдется владельцу намного дешевле предыдущего: нет необходимости заливать основательный фундамент, для постройки подходит облегченный вариант.
Каркасный гараж на 2 машины — сооружение, способное защитить авто от непогоды и злоумышленников. К его преимуществам относятся следующие:
- использование экологичных природных материалов;
- простота возведения;
- скорость строительства;
- возможность выполнения работ в любой сезон.
Схема внизу подскажет Вам, как подобрать размеры гаража для 2 машин:
Если Вы правильно подберете размер гаража под две машины, то такое строительство не требует огромных капитальных вложений. Можно заказать индивидуальный проект в строительной компании. Тогда будет точно известно, какое количество стройматериалов понадобится приобрести и какие должны быть размеры двойного гаража.
Читайте, как построить гараж из сэндвич-панелей.
А также статья здесь о том, что такое гараж-тент и где его можно применять.
Совместное использование постройки
Сарай же подразумевает минимальное освещение и отсутствие любых специфических конструкций. Главным критерием подобных построек является надежность и прочность, отсутствие малейших щелей и течей. Сохранность инвентаря, элементов садового интерьера или любых других деталей выходит на первый план в аналогичных строениях. Общим критерием, объединяющим обе разновидности построек, является применение полок, которые пригодятся при любом характере использования гаража.
Нередки случаи, когда проект просторного гаража 6х6 или 6х4 сочетает оба эти направления. Указанные размеры таких построек позволяют выполнить комбинирование наиболее эффективно, отдав одну часть постройки под стоянку машину и используя другую для нужд сохранности всех требующих хранения мелочей. Те же, кто располагает в своем распоряжении двумя машинами, вряд ли ограничатся постройкой объектов указанных размеров, поскольку для их нужд требуются гораздо более просторные постройки.
Особенности проектирования и строительства деревянных домов 6х8
Деревянные дома 6х8 удачно совмещают в себе малые затраты, высокое качество и прочность постройки, а также следующие параметры:
- экономичность строительства и дальнейшей эксплуатации;
- минимальные сроки возведения;
- бытовая практичность;
- незначительные затраты на отопление.
Дома из натурального массива прекрасно гармонируют с окружающей средой, красноречиво говорят об отменном вкусе владельцев. Конструкции обладают несомненными преимуществами, среди которых:
- использование качественных материалов для стен и перекрытий;
- комфортное проживание;
- немаленькая общая площадь;
- применение современных кровельных и изоляционных материалов.
Современный дом 6 на 8Источник museblog.ru
Гараж с хозпомещением или мастерской
Если есть необходимость в дополнительном месте для хранения садового инвентаря, детских велосипедов, колясок и прочих габаритных предметов, или просто есть желание обустроить свое личное рабочее пространство, обратите внимание на проект гаража с дополнительной зоной посредине. Общая площадь гаража составит чуть больше 68 кв.м
При этом под стоянку каждого автомобиля отводиться по 26 кв.м., а под дополнительное помещение – чуть более 16 кв.м.
- Тип стен – кирпич;
- Наружная отделка – клинкерная плитка;
- Кровельный материал крыши – металлочерепица.
Преимуществом проекта является наличие оконных проемов как в месте парковки, так и в хозпомещении. Также для удобства имеются двери в обоих отсеках для автомобилей, ведущие в кладовую, и дверь, ведущая из среднего помещения на улицу. Входная дверь предусмотрительно расположена под навесом.
К недостаткам можно отнести разве что отсутствие выхода сразу на улицу.
Особенности проектирования
Стандартный процесс проектирования состоит из нескольких этапов:
Проект можно купить готовый, заказать оригинальный или рассчитать самому.
Размеры
Определяют размеры для каждого помещения исходя из необходимого полезного объема. Вот приблизительный перечень факторов, которые влияют на размеры гаража:
Чтобы рассчитать размеры хозблока, надо определить его назначение.
Если это просто складское помещение, то оценивают объем предметов, и в зависимости от их характера выбирают систему хранения. Для мастерской задача чуть сложнее:
- составляют перечень оборудования, инструментов и оснастки;
- выбирают размер верстака, стеллажей и шкафов;
- компонуют оборудование и мебель сообразно требованиям эргономики и безопасной работы;
- смотрят сколько места займет мастерская по площади и высоте.
Аналогично поступают для расчета размеров других видов подсобных помещений.
Можно еще рассмотреть случаи, когда совмещают гараж и баню (а заодно комнату отдыха). Но это уже не хозблок, и там свои особенности проектирования.
После того как определили размеры гаража и хозблока, компонуют их вместе, и смотрят можно ли такое строение разместить в соответствии с требованиями СНиП относительно дома, коммуникаций и границ участка. Не забывая про подъездной путь от ворот и пешеходную дорожку к дому.
Выбор материалов
С точки зрения ландшафтного дизайна дом и гараж с хозблоком лучше делать из одних материалов. В первую очередь это касается стен и кровли.
У каждого материала есть особенности, которые влияют на конструкцию в целом и на отдельные компоненты:
- Кирпич. Один из наиболее долговечных и прочных. Но керамический требует обязательной облицовки снаружи и изнутри, а у силикатного блока хуже теплоизоляционные свойства. Строения из кирпича тяжелые, создают значительные нагрузки на грунт, что обуславливает закладку мощного фундамента. Из-за небольшого размера стандартного блока уходит много времени на кладку стен.
- Строительные блоки из бетонных ячеистых блоков. Наиболее распространены для малоэтажного строительства материалы средней плотности (относятся к конструктивно-теплоизоляционным). Их можно использовать для несущих и самонесущих стен при условии армирования каждого 3-4 ряда. При толщине стены 300-400 мм (стандартный размер блоков D400-D600) утепление фасада уже не требуется. Кладка стен проходит быстрее, особенно если выбирают газобетон с системой соединения по тычковой стороне «шип-паз» (хотя для этого нужен уже не цементный раствор, а специальный клей). Единственный недостаток — намокает от осадков, и облицовка обязательна.
Облицовка фасада кирпичом закончена
- Шлакоблок. Один из наиболее недорогих строительных материалов. Строительство проходит быстрее, чем из кирпича. Хотя и для него нужна облицовка.
- Дерево. Брус или оцилиндрованное бревно выбирают, когда дом сделан из таких же материалов. Главный недостаток — усадочные процессы.При использовании материалов естественной влажности стройка может затянуться на год. У сухого и клееного бруса усадка небольшая, стройку можно закончить за один сезон, но и стоят эти материалы дороже.Есть нюансы при прокладке электропроводки — по требованиям ПУЭ6 проводку по горючим основаниям делают или открытой, или скрытой, но уже в металлических трубах или лотках с расчетной толщиной стенок. Безопасней и проще стены сделать из кирпича/строительных блоков, а снаружи обшить деревом.
- Каркасные конструкции. Обойдутся дешевле «чисто» деревянных, а при одинаковой толщине стен они будут даже теплее. Для улучшения антивандальных свойств внешние стены и обшивку деревянных ворот можно выполнить из профлиста.
Каркасный гараж обшитый сайдингом
Другие необходимые приспособления
Обустройство гаража на два автомобиля невозможно себе представить без дополнительных удобств. Обычно все зависит от предпочтений автовладельца, а также свободного места на участке. Чтобы вам не пришлось переносить уже возведенное строение, нелишним будет узнать и основные параметры расположения построек на собственном земельном участке по отношению к другим строениям и соседним зданиям и забору.
Что также необходимо предусмотреть для комфортной эксплуатации:
- Смотровую яму. Закладка этого сооружения происходит еще на этапе заливки фундамента. Можно немного сэкономить, предусмотрев только одно место, но в этом случае будут некоторые неудобства с маневрами.
- Погреб или подвал под гаражом. В нем можно хранить не только традиционные зимние заготовки, но также отдать под чисто технические нужды, например, сделать склад горюче — смазочных материалов. Не забудьте предусмотреть хорошую вытяжную систему в обоих помещениях.
- Навес для машины. Это пригодится на случай временной парковки, а также создаст максимально удобные условия для гостевых машин или некоторых хозяйственных нужд. Если планируется гараж на два автомобиля, то и место надо оставить «двойное».
- Внутренняя разметка гаражного пространства поможет значительно облегчить парковку и избежать негативных ситуаций. Это может быть разметка стояночного места при помощи цветных линий, наклеек и даже вымощенное место цветной плиткой.
- Хозяйственная дополнительная пристройка, например, баня или место для содержания животных также не помешают. Это значительно сэкономит место на участке, строительные материалы и время. Вместе с тем, обязательно необходимо предусмотреть два отдельных входа с разных частей здания, чтобы внутрь хоз. блока не попадали выхлопы и испарения «автомобильных» веществ.
- Просторная крыша — мансарда вполне может служить отдельным помещением для складирования вещей или других бытовых нужд. Постройка такого элемента здания будет немногим трудней, чем стандартный односкатный козырек, а вот затраты окупятся полезной дополнительной площадью.
- Забетонированный въезд в гараж. Эта площадка может использоваться как дополнительное место стоянки и ремонта в теплое время года. Кроме того, на таком отстое можно выгодно разместить необходимые для ремонта приспособления. Въезд должен расширяться по сторонам, чтобы иметь возможность подъехать в обеих сторон и одновременно на двух автомобилях.
- Отдельный вход для хозяина. Это позволит дольше прослужить механизму открытия ворот, уменьшить потери тепла и просто комфортней использовать пространство.
- Место для хранения сезонных покрышек. В случае обустройства гаража на 2 машины это увеличенное вдвое количество, а это реальная проблема свободного места. Помочь обустройству такого складского места можно при грамотном выборе возможных систем хранения.
Гараж 6 на 6 метров – универсальный размер
Если позволяет площадь участка, гараж 6 на 6 метров представляет собой очень привлекательный вариант. Если речь идет только о хранении автомобилей – их в нем поместится два. Если же автомобиль нужно обслуживать и серьезно ремонтировать – то размеры гаража 6 на 6 метров для этих целей подойдут идеально.

Гараж 6 на 6 метров – это золотая середина между минимальным размером гаража на 2 машины и большим гаражом, построенным так, чтобы площади хватило с запасом.
Конечно, если взглянуть на любой проект гаража 6 на 6, станет очевидно, что это вариант «без излишеств», сочетающий хорошую функциональность, сравнительно небольшую стоимость и занимающий минимальную площадь.
Проект № 2 – стандартный с двумя въездами
Более привычным размещением автомобилей в двухместном гараже является взаимопараллельное. Однако, если для квадратной постройки места на участке недостаточно, либо участок имеет вытянутую прямоугольную форму, лучше выбрать проект гаража, предполагающий последовательное размещение машин.
Общая площадь постройки 53 кв.м.
- Тип стен – комбинированные на столбчатом фундаменте;
- Наружная отделка – сайдинг;
- Кровельный материал крыши – металлочерепица.
Преимуществам данного проекта является наличие двух отдельных ворот и дополнительного выхода с невысоким крыльцом и навесом.
К недостаткам можно отнести отсутствие дополнительного места для размещения стеллажей и внушительную длину – более 10 м.
Устройство вентиляции и электропитания в надстройке
После устройства гаража в два этажа самое время перейти к оснащению пристроенного помещения лестницей и устройства напольной поверхности. Помещение изнутри ошпаклевывается, а стены окрашиваются в любой понравившийся цвет.
Возможны и другие варианты внутренней отделки, но большая часть из них влечет за собой увеличение нагрузки на фундамент и стены нижестоящего помещения. А это, в свою очередь, может привести к расхождению стен и проседанию фундамента, что негативно отразится на долговечности возводимого сооружения и на его прочностных характеристиках.
В принципе, даже в случае оборудования надстройки под проживание в ней, об этих коммуникациях также стоит позаботиться. А вот в случае, если помещение будет использоваться только для хранения инструментов и рабочего инвентаря, то в коммуникациях нет никакой необходимости.

Существует несколько вариантов устройства вентиляции в помещениях такого рода:
- Установка клапанов на двери и окна помещения.
- Устройство вытяжки под потолком.
Материалы для строительства
Выбор материалов обусловлен не только бюджетом, но и тем, о какой части строения идет речь:
- Фундамент. Чаще всего его делают плитным, поскольку такое основание выдержит вес двух транспортных средств и другие нагрузки. Расчет фундамента нужно делать с запасом, проектируя гараж на две машины; размеры плиты должны быть на 20-40 см больше периметра по стенам. Для заливки используют бетонную смесь на основе цемента марки не ниже М-400, армирование осуществляется с помощью арматуры.
- Стены и перегородки. Несущие части конструкции могут быть сделаны из газоблока, керамзитного блока, кирпича, а внутренние стенки – из полублока либо стеновых панелей.
- Перекрытия. Если гараж имеет мансардный или полноценный жилой этаж, для этой цели могут использоваться плиты ЖБИ.
- Кровля. Стропильная система делается из бруса и досок, на обрешетку из реек укладывается пирог из гидро- и теплоизоляции, а сверху устанавливают внешнее покрытие. В зависимости от бюджета и предпочтений это может быть металлочерепица, профлист, мягкая кровля или иной материал. Форма чаще всего односкатная, но если сверху устроен второй этаж, обычно делают двускатную кровлю.
- Внешняя отделка. С этой целью может использоваться фасадная штукатурка, сайдинг, облицовочный кирпич и т.д.
Возможно ли узаконить надстройку над гаражом?
Итак, как построить второй этаж в гараже, мы уже разобрались. Теперь рассмотрим правовой аспект данного вопроса.

В настоящее время каждое изменение уже возведенного здания необходимо легализовывать. То есть, в случае расширения площади помещения и проведения прочих действий, касающихся изменения конфигурации и площади здания, нужно иметь законное разрешение на ведение подробного плана работ.
Как показывает юридическая практика, сегодня добиться разрешения на дооборудование гаража вторым этажом крайне сложно. Даже имея в наличии все необходимые документы, подтверждающие права собственности на сооружение и земельный участок, не всегда удается узаконить его переоборудование.
В большинстве случаев достройка второго этажа над гаражом проходит все этапы узаконивания в ходе судебного рассмотрения дела после того, как надстройка уже будет возведена.
Как выбрать оптимальные размеры гаража на две машины с хозблоком
Подъёмник автоматически прибавляет два метра к высоте
Автомобили имеют самую различную геометрию кузова и, следовательно, разные размеры. Кроме того, на хозблок нужно будет прибавить ещё метра три. В зависимости от габаритов, подбирается и проект, например:
- 7 х 6;
- 7 х 7;
- 8 х 7;
- 8 х 8;
- 9,5 х 6;
Размеры гаража для каждого случая определяются таким образом:
- Нужно приехать на место будущей постройки. Оно должно быть достаточно ровным и просторным.
- Фиксируют на земле углы прямоугольника, в который вмещается машина при условии открытых дверей.
- К длине добавляют 0,8-1 м. Этот параметр увеличивают, чтобы автомобиль не упирался в стену или ворота.
- Затем отмечают, где будет располагаться верстак, стеллажи, хозблок, зона отдыха, если она нужна.
- Измеряют рулеткой чертёж на грунте или асфальте и переносят его на бумагу.
- После этого добавляют ширину второй машины с открытой дверцей и хозблока.
Таким образом, получается план с размерами гаража на две машины с хозблоком, выполненный самостоятельно.
Кроме ширины и длины, необходимо определить и высоту. Стандартная величина составляет 2,5 метра.
При установке подъёмника прибавляют ещё 2 метра. На высоту влияет и модель ворот: если они будут подъёмно-повортными, то потребуется включение дополнительного пространства под потолком для подъёмного механизма.
Дом 6 на 6 – 25 интересных идей
Садовый двухэтажный домик с несимметричной крышей
Одноэтажный деревянный домик с открытой верандой
Одноэтажный деревянный дом с лесенкой
Двухэтажный садовый дом с верандой
Двухэтажный дом с террасой
Вариант планировки двухэтажного дома с верандой
Пример планировки двухэтажного дома с одной спальней на мансардном этаже
Планировка двухэтажного дома с двумя спальнями на мансардном этаже
Вариант планировки двухэтажного дома с пристроенной террасой
Интерьер уютной гостиной в загородном доме
Оригинальный дизайн гостиной в деревянном доме
Интерьер маленькой гостиной, в которой подоконник переоборудован в удобный диванчик
Небольшая гостиная с камином, выполненная в светлых тонах
Дизайн гостиной, объединенной с кухней
Маленькая гостиная, обустроенная на мансардном этаже
Уютная кухня со стеклянной дверью
Интерьер кухни с барной стойкой и стильной деревянной мебелью
Множество полочек на стене этой оригинальной гостиной студии позволяет экономить пространство
Интерьер кухни с камином, большими окнами и деревянной резной мебелью
Лаконичный дизайн кухни в загородном доме
Раздвижные двери помогают сэкономить пространство в маленькой комнате
Пример оформления подростковой комнаты на мансардном этаже
Интерьер спальни в светлых тонах, расположенной на втором этаже дома
Интерьер спальни в темных тонах, расположенной на мансардном этаже
Оригинальный дизайн спальни с резными деревянными перегородками.
Мансарда над гаражом или коробчатая надстройка?

У нас принято считать, что мансардная пристройка дешевле, нежели коробчатая надстройка. В то же время строители, основываясь на практике, утверждают об обратном, поскольку современные расходники для утепления подобного рода сооружения обходятся достаточно дорого.
В некоторых случаях добротная жилая мансардная надстройка выходит по финансам дороже 4-угольного короба с наплавляемой крышей.
Выбирая проект двухэтажного гаража, следует руководствоваться такими критериями:
- Эстетика. В сравнении с коробчатой надстройкой мансарда будет иметь более гармоничный и привлекательный вид.
- Функционал. Мансардная пристройка может использоваться как в качестве дополнительного места для хранения инструментов, так и для проживания. Правда, в последнем случае придется потратиться на утепление возводимого сооружения, что может потянуть немалые затраты. Поэтому целесообразно в качестве жилья использовать коробчатую конструкцию.
Выбор типа надстройки зависит от финансовых возможностей, специфики возводимого сооружения и его назначения.




































